
3
• On Counterflow Installations, the air conditioning coil
must be downstream from the heat exchanger of the
furnace.
•Counterflow Installation over a noncombustible floor.
Before setting the furnace over the plenum opening,
insure the surface around the opening is smooth and
level. A tight seal should be made between the furnace
base and floor by using a silicone rubber caulking
compound or cement grout.
•Counterflow Installation over a combustible floor. If
installation over a combustible floor becomes neces-
sary, use an accessory subbase as shown on the
Specification Sheet. Follow the instructions with the
subbase for proper installation. Do not install the fur-
nace directly on carpeting, tile, or other combustible
material other than wood flooring. (Note: The subbase
will not be required if an air conditioning coil is installed
between the supply air opening on the furnace and the
floor.)
• The furnace must be level. If the furnace is to be set on
a floor that may become wet or damp at times, the
furnace should be supported above the floor on a
concrete base sized approximately 1-1/2" larger than
the base of the furnace.
ADDITIONAL LOCATION CONSIDERATIONS
• The furnace should be as centralized as is practical
with respect to the air distribution system.
• Do not install the furnace directly on carpeting, tile, or
combustible material other than wood flooring.
• When suspending the furnace from rafters or joists,
use 3/8" threaded rod and 2” x 2” x 3/8” angle as shown
on the Specification Sheet. The length of the rod will
depend on the application and clearance necessary.
• When installed in a residential garage, the furnace
must be positioned so the burners and ignition source
are located not less than 18 inches (457 mm) above the
floor and protected from physical damage by vehicles.
II. General Information
WARNING
Possible death, personal injury or property
damage due to fire, explosion, smoke, soot,
condensation, electrical shock or carbon
monoxide may result from improper
installation, repair, operation, or
maintenance on this product.
To ensure the furnace operates safely and efficiently, it
must be installed, operated and maintained in accordance
with these installation and operating instructions, all local
building codes and ordinances, or, in their absence, with
the latest edition of the National Fuel Gas Code NFPA 54/
ANSI Z223.1*, and/or CAN/CSA B149.1 and CAN/CSA
B149.2 Installation Codes.
CAUTION
This unit must not be used as a
“construction heater” during the finishing
phases of construction on a new structure.
This type of use may result in premature
failure of the unit due to extremely low
return air temperatures and exposure to
corrosive or very dirty atmospheres.
WARNING
To prevent possible death, personal injury
or property damage, do not install this unit
in a mobile home, trailer or recreational
vehicle.
ADDITIONAL SAFETY CONSIDERATIONS
• This furnace is approved for Category I Venting only.
• When the furnace is heating, the temperature of the
return air entering the furnace must be between 55°F
and 100°F.
• Do not install the furnace where the combustion air is
exposed to the following substances: permanent wave
solutions, chlorinated waxes or cleaners, chlorine based
swimming pool chemicals, water softening chemicals,
deicing salts or chemicals, carbon tetrachloride, halo-
gen type refrigerants, cleaning solutions (such as per-
chloroethylene), printing inks, paint removers, var-
nishes, hydrochloric acid, cements and glues, anti-
static fabric softeners for clothes dryers, and masonry
acid washing materials. If the furnace is installed near
an area which will be frequently contaminated by these
substances, the furnace should be sealed from this
area so that little contaminated air can reach the
furnace. The furnace must still have an adequate
supply of combustion air, either from a nearby uncon-
taminated room or from outdoors. For details, see “AIR
REQUIREMENTS” Section III.
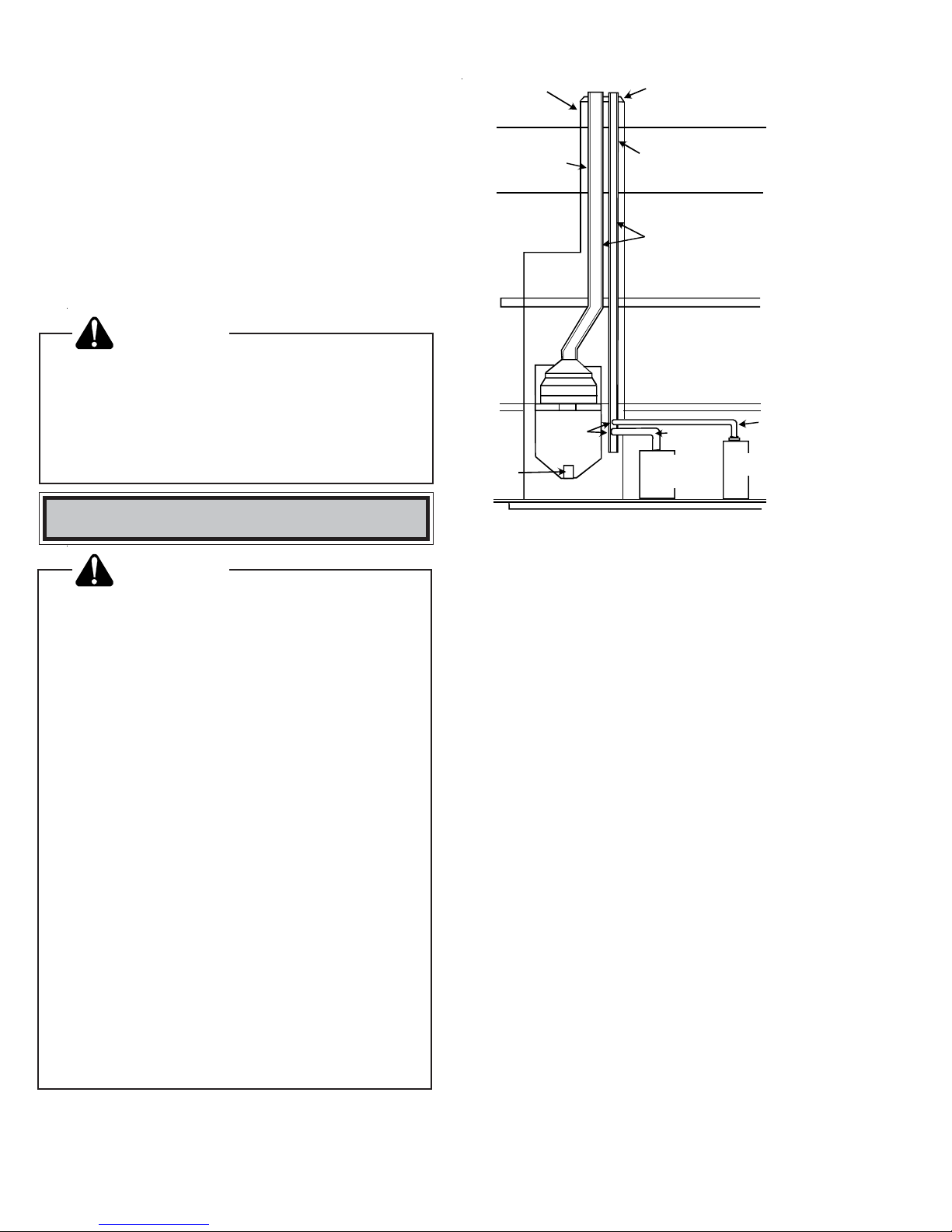
• Provisions must be made for venting combustion prod-
ucts outdoors through a proper venting system. The
length of flue pipe could be a limiting factor in locating
the furnace.
• When installed horizontally, the furnace must be in-
stalled with the access doors vertical so that the burn-
ers fire horizontally into the heat exchanger. The unit
cannot be installed with the access doors on top or
bottom. (See Specification Sheet)
• Allow clearances from the enclosure as shown on
Specification Sheet for fire protection, proper opera-
tion, and service access. These clearances must be
permanently maintained. The combustion and ventilat-
ing air openings in the front and top panels of the
furnace must never be obstructed.
• This furnace shall not be connected to a chimney flue
serving a separate appliance designed to burn solid
fuel.
• When the furnace is used in connection with a cooling
unit, the furnace must be upstream of, or in parallel
with, the cooling unit. For details see Section VIlI.