THESE PRODUCTS ARE INTENDED FOR SALE
TO AND INSTALLATION BY QUALIFIED
PROFESSIONALS. CARRIER FIRE &
SECURITY CANNOT PROVIDE ANY
ASSURANCE THAT ANY PERSON OR ENTITY
BUYING ITS PRODUCTS, INCLUDING ANY
“AUTHORIZED DEALER” OR “AUTHORIZED
RESELLER”, IS PROPERLY TRAINED OR
EXPERIENCED TO CORRECTLY INSTALL FIRE
AND SECURITY RELATED PRODUCTS.
For more information on warranty disclaimers and
product safety information, please check
https://firesecurityproducts.com/policy/product-
warning/ or scan the QR code.
Contact information
www.firesecurityproducts.com or www.aritech.com
For customer support, see www.firesecurityproducts.com
DE: Installationsanleitung
Anwendungsbereich
Das ATS7200N ermöglicht die Ereignisübertragung durch
Wiedergabe von zuvor aufgezeichneten Meldungen an 1, 2, 3
oder 4 verscheidene Rufnummern (Wachdiensten). Die
Sprachübertragung findet mithilfe des eingebauten Wählgeräts
der Einbruchmeldezentrale (PSTN) oder über das optionale
ISDN-Modul statt.
Einzelne und mehrere
Sprachmodulmeldungen
Maximal 2 Sprachmodule können installiert werden. Jedes
Modul verfügt über 8 Meldungen: die Einleitungsmeldung, die
Adressmeldung und 6 Alarmmeldungen. Wenn ein zweites
Modul installiert wird, handelt es sich bei allen 8 Meldungen für
das zweite Modul um Alarmmeldungen (siehe Tabelle 2 auf
Seite 6).
Montage
Das ATS7200N muss im Gehäuse einer ATS-
Einbruchmeldezentrale montiert werden.
WARNUNG: Schalten Sie die Netzspannung ab, bevor Sie das
Gehäuse öffnen. Ziehen Sie den Netzstecker aus der
Wandsteckdose, oder unterbrechen Sie die
Spannungsversorgung mit dem zugehörigen
Sicherungsautomaten. Unterbrechen Sie die Zuleitung zu der
Batterie (falls zutreffend).
Befestigen des Moduls
Befestigen des ATS7200N in der Einbruchmeldezentrale
ATS1000A-SM, ATS2000A-SM, ATS4000, ATS2300,
ATS3300
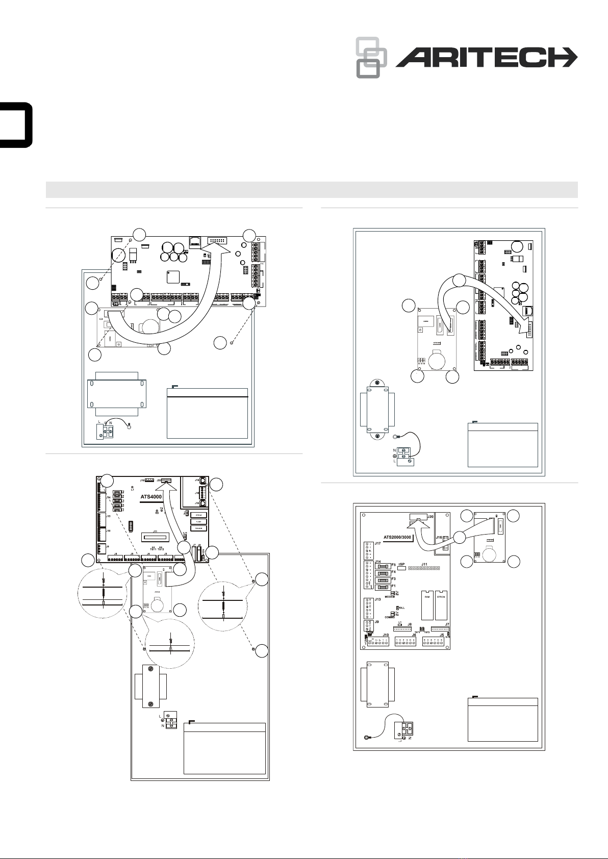
Siehe Abbildung 1 und 4.
1. Entfernen Sie die Schrauben (Position 1), und heben Sie
die Einbruchmeldezentralen-Platine an.
2. Platzieren Sie die Erweiterungsstützen mit den
Kunststoffringen oben auf den vorhandenen Stützen
(Position 3).
3. Platzieren Sie die Klammern in den rechteckigen
Löchern (Position 4).
4. Befestigen Sie das ATS7200N mithilfe der Schrauben und
der Erweiterungsstützen (Position 5).
5. Platzieren Sie die ATS-Einbruchmeldezentralen-Platine
wieder an ihrer ursprünglichen Position.
Befestigen des ATS7200N in der Einbruchmeldezentrale
ATS1000A-MM, ATS2000A-MM, ATS2000, ATS3000,
ATS4500
Siehe Abbildung 2 und 3.
1. Platzieren Sie die Klammern in den rechteckigen Löchern
(Position 4). Verwenden Sie Metallpfosten, falls verfügbar.
2. Befestigen Sie das ATS7200N mithilfe von Schrauben.
Anschließen des Sprachmoduls
1. Schließen Sie das Flachbandkabel (Abbildung 1–4,
Position 2) zwischen der Einbruchmeldezentrale
(Anschluss J20 oder MI) und dem ATS7200N (Anschluss
CON1 oder CON2) an.
2. Schließen Sie die Telefonleitung an die
Einbruchmeldezentrale oder das ISDN-Modul an.
Beschreibung des ATS7200N
Abbildung 6