
- 3 -
Sincronismo ottico (senza filo di SINC)
A prima alimentazione, il trasmettitore elabora un codice e lo trasmette attraverso i gruppi ottici al
ricevitore, il quale lo riceve convalidando la successiva sincronizzazione. L’interruzione o la ma-
nomissione di questo ciclo, mette in allarme la barriera.
Sincronismo seriale (con filo di SINC)
A prima alimentazione, il trasmettitore elabora un codice e lo trasmette attraverso i gruppi ottici al
ricevitore, il quale lo riceve e lo ritrasmette tramite il filo seriale morsetto (SINC) dove, solo dopo
essere stato comparato viene rielaborato per la successiva trasmissione. L’interruzione o la ma-
nomissione di questo ciclo, mette in allarme la barriera.
Evitare
•di verniciare l’apparecchiatura frontalmente
•che i gruppi ottici siano direttamente colpiti dalla luce solare
•di rimuovere i cappucci che proteggono i gruppi ottici presenti all’interno delle colonne
•il diretto contatto con getti d’acqua o con la pioggia
•di flettere assolutamente il circuito se si tenta di estrarlo completamente dal contenitore
Usare
•alimentatori lineari stabilizzati a 13,8 V , non switching.
Figura 1
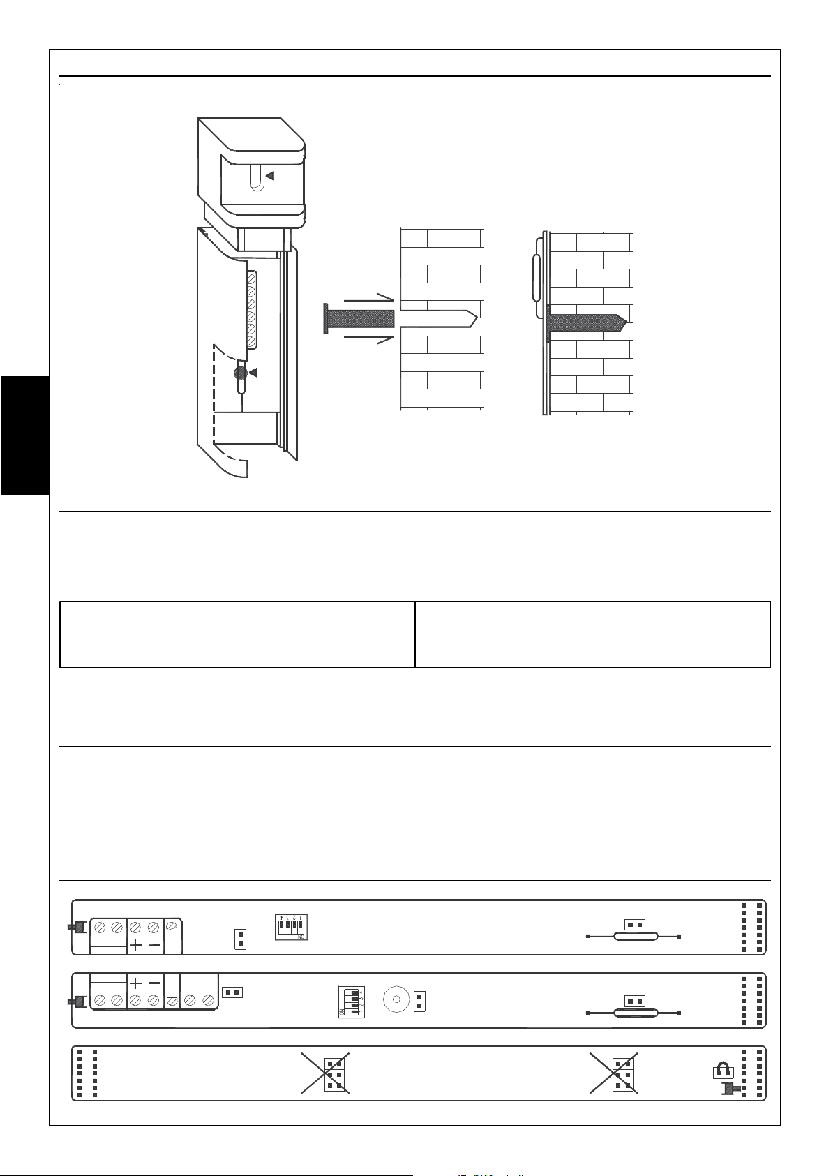
Installazione
Esempio di installazione con morsettiere verso l’alto:
•Forare la parete, in corrispondenza dei fori di fissaggio A (figura 2) della colonna, riservati ai
tasselli;
•Sfilare dall’estremità superiore della barriera l’apposito terminale ed il vetrino di protezione;
•Forare la parete, in corrispondenza del contatto “REED” B (figura 2), per l’inserimento del
magnete;
•Sfilare, quanto basta il circuito, per posizionare i microinterruttori e per la cablatura dei cavi;
•Abilitare la funzione BUZZER per il test sonoro della barriera (se necessario);
•Reinserire il circuito, senza fletterlo;
•Chiudere le estremità della barriera con gli appositi terminali plastici (si fa presente che il
tappo da inserire nella parte inferiore della barriera, ha dei fori per permettere l’uscita
dell’eventuale condensa) facendo attenzione al contatto dei microinterrutori;
•Fissare saldamente la barriera con gli appositi tasselli;
•Alimentare le barriere ed attendere la tacitazione del buzzer a conferma dell’allineamento.