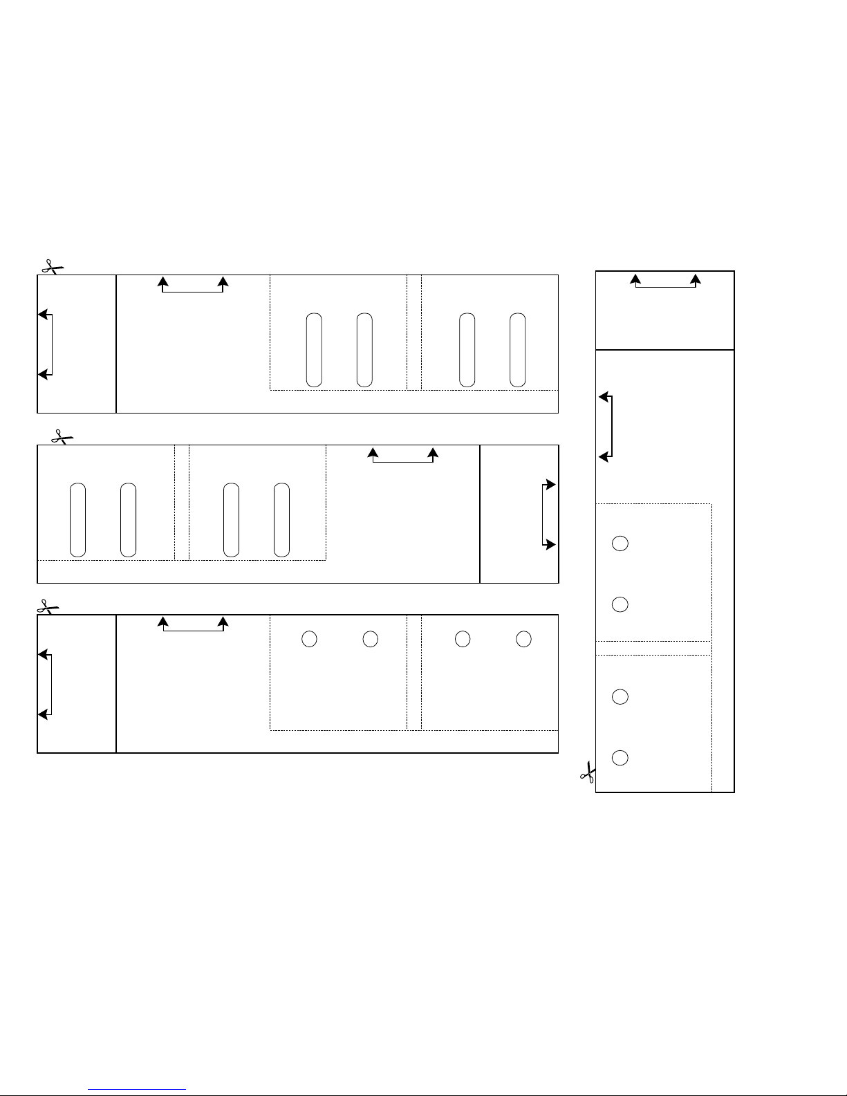
For blinds OVER 2015⁄16" wide.
Para persianas de MAS DE 53,2 cm de ancho.
Pour les stores dont la largeur est SUPÉRIEURE à 53,2 cm.
Front edge of headrail
Borde frontal del cabezal
Bord avant du boîtier
Introduzca un tornillo en estas áreas (X)
para marcar el marco de la ventana
Poke screw in these areas
(X) to mark window frame. Tapoter la vis dans cette zone (X) pour
marquer l’encadrement de la fenêtre
LEFT
IZQUIERDA
GAUCHE
Align with left edge
of window frame.
Ponga en Línea con
el borde izquierdo
del marco de la
ventana
Aligner avec le
bord gauche de
l’encadrement de
la fenêtre
For blinds 137⁄8" to 2015⁄16" wide and ½" slat blinds 12" wide and OVER or blinds
with same-side control locations.
Para persianas de entre 35.2 cm y 53.2 cm de ancho, y persianas de 30.5 cm de
ancho o MÁS con tiras de 1.3 cm o persianas con controles del mismo lado.
Pour les stores de 35,2 à 53,2 cm de largeur et les stores à lamelles de 1,3 cm
de 30,5 cm de largeur et PLUS ou les stores dont les commandes se trouvent
du même côté.
XXXX
RIGHT
DERECHA
DROIT
Align with right
edge of window
frame.
Ponga en Línea con
el borde
derecho del marco
de la ventana
Aligner avec le bord
droit de
l’encadrement de
la fenêtre
For blinds 137⁄8" to 2015⁄16" wide and ½" slat blinds 12" wide and OVER or blinds
with same-side control locations.
Para persianas de entre 35.2 cm y 53.2 cm de ancho, y persianas de 30.5 cm de
ancho o MÁS con tiras de 1.3 cm o persianas con controles del mismo lado.
Pour les stores de 35,2 à 53,2 cm de largeur et les stores à lamelles de 1,3 cm
de 30,5 cm de largeur et PLUS ou les stores dont les commandes se trouvent
du même côté.
For blinds OVER 2015⁄16" wide.
Para persianas de MAS DE 53,2 cm de ancho.
Pour les stores dont la largeur est SUPÉRIEURE à 53,2 cm.
Introduzca un tornillo en estas áreas (X)
para marcar el marco de la ventana
Poke screw in these areas
(X) to mark window frame. Tapoter la vis dans cette zone (X) pour
marquer l’encadrement de la fenêtre
Front edge of headrail
Borde frontal del cabezal
Bord avant du boîtier
XXXX
Wall Mount
Montaje de Pared • Pose au Fond
Wall Mount
Montaje de Pared • Pose au Fond
Note: For ½" slat blinds under 12" wide and for blinds under 137⁄8" wide, and
all same-side control blinds, brackets must be positioned directly over the
blind internal tilting components.
Nota: Para las persianas con tiras de 1.3 cm de menos de 30.5 cm de ancho
y para las persianas de menos de 35.2 cm, así como para todas las persianas
con control del mismo lado, los soportes deben ubicarse directamente sobre
los componentes de inclinación internos de la persiana.
Remarque : pour les stores à lamelles de 1,3 cm de moins de 30,5 cm de
largeur et pour les stores de moins de 35,2 cm de largeur, et pour tous les
stores dont les commandes se trouvent du même côté, les supports doivent être
placés directement sur les composants d'inclinaison internes ¬du store.
Note: For ½" slat blinds under 12" wide and for blinds under 137⁄8" wide, and
all same-side control blinds, brackets must be positioned directly over the
blind internal tilting components.
Nota: Para las persianas con tiras de 1.3 cm de menos de 30.5 cm de ancho
y para las persianas de menos de 35.2 cm, así como para todas las persianas
con control del mismo lado, los soportes deben ubicarse directamente sobre
los componentes de inclinación internos de la persiana.
Remarque : pour les stores à lamelles de 1,3 cm de moins de 30,5 cm de
largeur et pour les stores de moins de 35,2 cm de largeur, et pour tous les
stores dont les commandes se trouvent du même côté, les supports doivent être
placés directement sur les composants d'inclinaison internes ¬du store.
For blinds OVER 2015⁄16" wide.
Para persianas de MAS DE 53,2 cm de ancho.
Pour les stores dont la largeur est SUPÉRIEURE à 53,2 cm.
Note: For ½" slat blinds under 12" wide and for blinds under 137⁄8" wide, and
all same-side control blinds, brackets must be positioned directly over the
blind internal tilting components.
Nota: Para las persianas con tiras de 1.3 cm de menos de 30.5 cm de ancho
y para las persianas de menos de 35.2 cm, así como para todas las persianas
con control del mismo lado, los soportes deben ubicarse directamente sobre
los componentes de inclinación internos de la persiana.
Remarque : pour les stores à lamelles de 1,3 cm de moins de 30,5 cm de
largeur et pour les stores de moins de 35,2 cm de largeur, et pour tous les
stores dont les commandes se trouvent du même côté, les supports doivent être
placés directement sur les composants d'inclinaison internes ¬du store.
Front edge of headrail
Borde frontal del cabezal
Bord avant du boîtier
X X
Introduzca un tornillo en estas áreas (X)
para marcar el marco de la ventana
Poke screw in these areas
(X) to mark window frame. Tapoter la vis dans cette zone (X) pour
marquer l’encadrement de la fenêtre
LEFT
IZQUIERDA
GAUCHE
Align with left edge
of window frame.
Ponga en Línea con
el borde izquierdo
del marco de la
ventana
Aligner avec le
bord gauche de
l’encadrement de
la fenêtre
For blinds 137⁄8" to 2015⁄16" wide and ½" slat blinds 12" wide and OVER or blinds with
same-side control locations.
Para persianas de entre 35.2 cm y 53.2 cm de ancho, y persianas de 30.5 cm de
ancho o MÁS con tiras de 1.3 cm o persianas con controles del mismo lado.
Pour les stores de 35,2 à 53,2 cm de largeur et les stores à lamelles de 1,3 cm
de 30,5 cm de largeur et PLUS ou les stores dont les commandes se trouvent du
même côté.
X X
Ceiling Mount
Montaje Superior • Montage au Lafond
For blinds 137⁄8" to 2015⁄16" wide and ½" slat blinds 12" wide and OVER or blinds with
same-side control locations.
Para persianas de entre 35.2 cm y 53.2 cm de ancho, y persianas de 30.5 cm de
ancho o MÁS con tiras de 1.3 cm o persianas con controles del mismo lado.
Pour les stores de 35,2 à 53,2 cm de largeur et les stores à lamelles de 1,3 cm
de 30,5 cm de largeur et PLUS ou les stores dont les commandes se trouvent du
même côté.
For blinds OVER 2015⁄16" wide.
Para persianas de MAS DE 53,2 cm de ancho.
Pour les stores dont la largeur est SUPÉRIEURE à 53,2 cm.
Introduzca un tornillo en estas áreas (X)
para marcar el marco de la ventana
Poke screw in these areas
(X) to mark window frame. Tapoter la vis dans cette zone (X) pour
marquer l’encadrement de la fenêtre
Front edge of headrail
Borde frontal del cabezal
Bord avant du boîtier
XX X X
Ceiling Mount
Montaje Superior • Pose en Haut
Note: For ½" slat blinds under 12" wide and for blinds under 137⁄8" wide, and
all same-side control blinds, brackets must be positioned directly over the
blind internal tilting components.
Nota: Para las persianas con tiras de 1.3 cm de menos de 30.5 cm de ancho
y para las persianas de menos de 35.2 cm, así como para todas las persianas
con control del mismo lado, los soportes deben ubicarse directamente sobre
los componentes de inclinación internos de la persiana.
Remarque : pour les stores à lamelles de 1,3 cm de moins de 30,5 cm de
largeur et pour les stores de moins de 35,2 cm de largeur, et pour tous les
stores dont les commandes se trouvent du même côté, les supports doivent être
placés directement sur les composants d'inclinaison internes ¬du store.
RIGHT
DERECHA
DROIT
Align with right
edge of window
frame.
Ponga en Línea con
el borde
derecho del marco
de la ventana
Aligner avec le bord
droit de
l’encadrement de
la fenêtre