
When an overcurrent condition occurs on a PTC protected output, the PTC
device will heat and its resistance will increase, thus limiting current ow.
When tripped, though current will be reduced, the circuit is not open (like it is
with a blown fuse), and a digital meter on the output will likely and normally
indicate some voltage and current ow, which is necessary to maintain the
tripped condition of the PTC. Trip time may vary from milliseconds to even
minutes depending on the nature of the overcurrent condition.
Limited Warranty
The DAC8 / DAC8R is warranted by BASE Electronics against manufacturing defects in materials and
workmanship for a period of 2 years from date of purchase. During this period, any warranty repair required
will be made at no charge for parts or labor. This warranty does not apply to any work or materials provided
by any outside persons or technicians involved in the installation, unauthorized repair, connection, or testing
of this product. This warranty does not cover any damage or failure caused by or attributable to Acts of
God, abuse, misuse, improper or abnormal usage, faulty or improper installation or maintenance, neglect or
accident. BASE Electronics is not responsible or liable for any special, consequential or indirect damages
resulting from or in connection with the use or performance of this product as pertaining to economic loss,
property loss, costs for removal or installation, or loss of revenues or prot. Except as provided herein,
BASE Electronics makes no expressed or implied warranties. The duration of product performance for its
intended purpose is limited to the duration set forth herein.
For Warranty or other repair, send the product postage prepaid to BASE Electronics and include Sender’s
name, company, address, phone and brief problem description. BASE Electronics will notify sender of any
required repair costs not covered under this warranty prior to making such repairs.
This Warranty gives you specic legal rights. You may have other rights that vary from state to state.
The information in this manual is believed to be accurate in all respects. However, BASE Electronics cannot assume respon-
sibility for any consequences resulting from the use thereof. The information contained herein is subject to change and BASE
Electronics may issue a revision to incorporate such changes at any time.
BASE
BASE Electronics, Inc. • 2856-C Janitell Road • Colorado Springs, CO 80906 • (719) 540-9697 Fax (719) 540-9698
© Copyright 2022 BASE Electronics, Inc.
PC Board Footprint
www.baseelectronics.com
Understanding PTC Resettable Fuses
Find other Power System Design Guides and Tech Tips at...
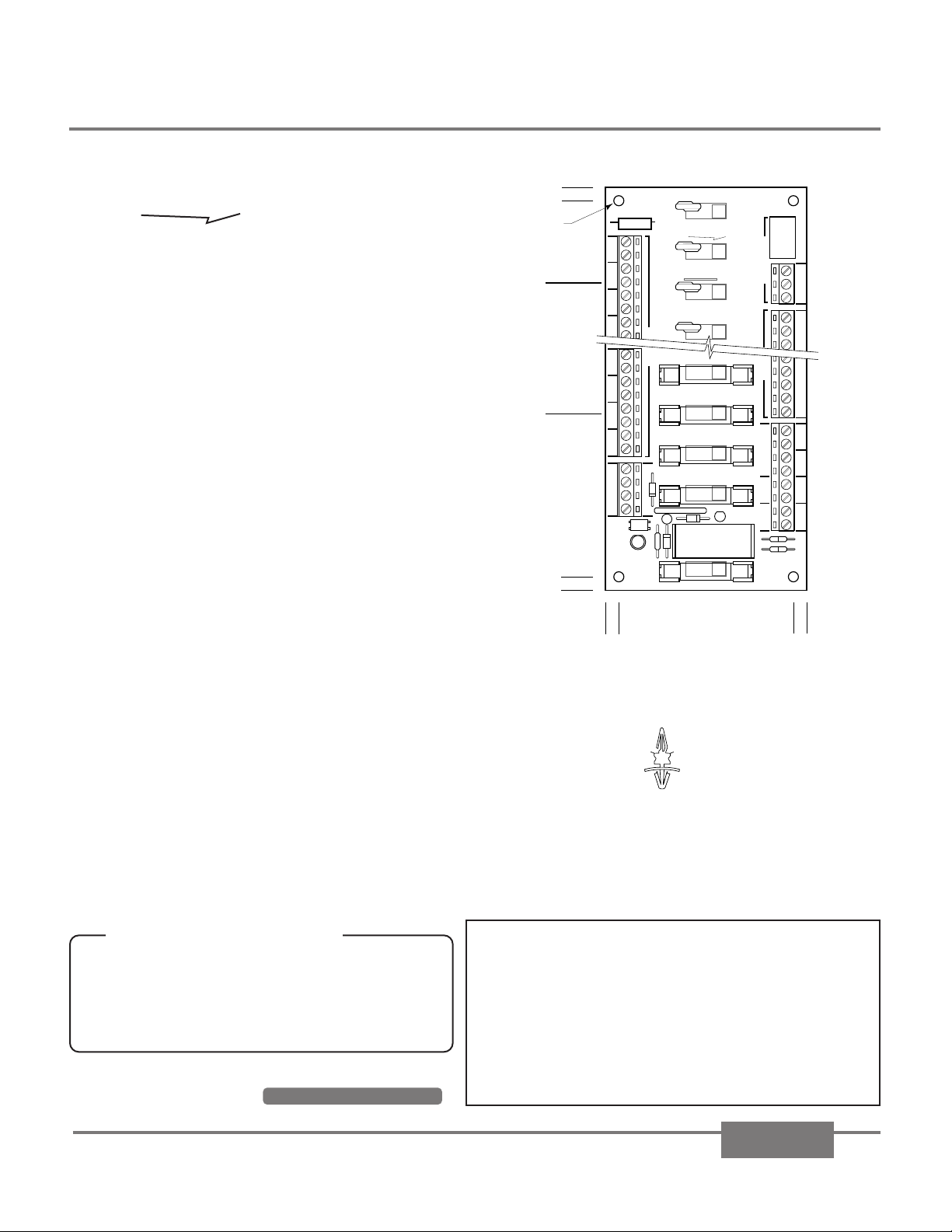
DAC8 / DAC8R Direct Access Controller
DAC8 / DAC8R Specications
• Indoor Temperature Range: 0° C. to +49°C.
• Electrical
Maximum Main Power Input Voltage AC/DC: 30V
Maximum Total Output Current: 8A
Maximum Recommended Current per Output: 2.5A
Disconnect Relay Power Input: 12 or 24VDC (-10%, +30%)
Disconnect Relay Power Input Fuse: 1A fuse or PTC
FACP Interface Maximum Current Draw: 10 mA
Maximum Current Draw of Disconnect Relay Power Input: 70 mA
Connections: Captive Screw Terminals for 14-22AWG Wire
PTC Outputs: 2.5A PTC Resettable Devices included (DAC8R)
Fuse Outputs: 2.0A 3AG-type Fuses included (DAC8)
• Other Features
Fail-Safe or Fail-Secure selectable per output
Outputs and Relay Control power can be common or separately powered
Red LED indicator for Disconnect Relay status
Disconnect Aux Relay terminals for alarm monitoring
• Size: 3.00 (76.20) wide by 6.00 (152.40) [ inches (mm) ]
• Mounting: (4) 1/4 inch high nylon standos included
• Models (Use these part numbers when ordering)
for 12VDC Disconnect Relay Power Input
DAC8-12 Includes 8 replaceable 2.0A fuses, 12VDC relays
DAC8R-12 Includes 8 PTC resettable 2.5A fuses, 12VDC relays
for 24VDC Disconnect Relay Power Input
DAC8-24 Includes 8 replaceable 2.0A fuses, 24VDC relays
DAC8R-24 Includes 8 PTC resettable 2.5A fuses, 24VDC relays
• Other related BASE products
PM8 / PM8R Power Distribution Module
MAC8 / MAC8R Multi Access Controller
LVPC Custom Prewired Power Cabinet Assemblies
NYLON MOUNTING ST ANDOFF
(4 INCLUDED WITH DAC8 / DAC8R )
PC BOARD SIDE
(FOR 0.150 HOLE IN BOARD )
MOUNTING SURFACE SID E
DRILL OR PUNCH
0.187 HOLE (4.76mm)
Micro-Series
Page 4 of 4
C
1
2
3
4
5
6
7
8
OUTPUTS
1+
1-
2+
2-
3+
3-
4+
4-
Micro-Series
BASE
0.00
0.20 (5.08mm)
5.80 (147.32mm)
0.00
0.20 (5.08mm)
2.80 (71.12mm)
3.00 (76.20mm)
0.15 (3.81mm) DIA HOLE
4 PLACES
5+
5-
6+
6-
7+
7-
8+
8-
C-
F-
F+
C+
MODEL DAC8R
(with Resettable PTC Devices)
MODEL DAC8
(with Standard 3AG Fuses)
DAC
8
D
irect
A
ccess
C
ontroller
CONTROLS
1+
2+
3+
4+
5+
6+
7+
8+
D
D
C
C
+
-
+
-
NO
NC
C
DISC AUX RELAY
CONTROL
OPTIONS
MAIN
POWER
DIS RLY
POWER
COMMON
POWER
JUMPERS
DISC
RELAY
+
-
F
AC
P
CONTROL POWER
FACP INTERFACE
PTC4
2.5A
PTC1
2.5A
PTC2
2.5A
PTC3
2.5A
R
INPUT MAX.
30VAC/DC, 8A, 60Hz
FUSE 1.0 A ONLY
www.baseelectronics.com
WARNING - TO REDUCE THE RISK OF FIRE, REPLACE
ONLY WITH SAME TYPE AND RATING OF FUSE.
FUSE 2.0 A
FUSE 2.0 A
FUSE 2.0 A
FUSE 2.0 A
FUSE 2.0 A
FUSE 2.0 A
FUSE 2.0 A
FUSE 2.0 A