
5
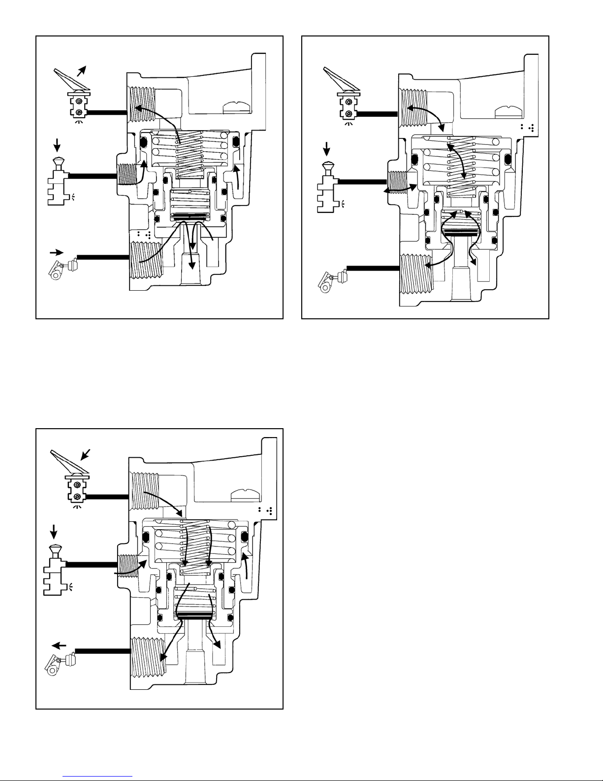
bobtailmode.Uponbrakevalverelease,deliveryairpressure
flowsback through the LQ-5™valve,to thebrakevalve and
outto atmosphere.Airfrom the actuatorsexhauststhrough
thequick releasevalve.
WARNING! PLEASE READ AND FOLLOW
THESE INSTRUCTIONS TO AVOID
PERSONAL INJURYOR DEATH:
When working on or around a vehicle, the following
general precautions should be observed at all times.
1. Park the vehicle on a level surface, apply the
parking brakes, and always block the wheels.
Always wear safety glasses.
2. Stop the engine and remove ignition key when
working under or around the vehicle. When
working in the engine compartment, the engine
should be shut off and the ignition key should be
removed. Where circumstances require that the
enginebe in operation, EXTREME CAUTIONshould
be used to prevent personal injury resulting from
contact with moving, rotating, leaking, heated or
electrically charged components.
3. Do not attempt to install, remove, disassemble or
assemble a component until you have read and
thoroughly understand the recommended
procedures. Useonly theproper tools and observe
all precautions pertaining to use of those tools.
4. If the work is being performed on the vehicle’s air
brake system, or any auxiliary pressurized air
systems,makecertain to drain theairpressure from
all reservoirs before beginning ANY work on the
vehicle. If the vehicle is equipped with an AD-IS™
air dryer system or a dryer reservoir module, be
sure to drain the purge reservoir.
5. Following the vehicle manufacturer’s
recommendedprocedures, deactivate theelectrical
system in a manner that safely removes all
electrical power from the vehicle.
6. Never exceed manufacturer’s recommended
pressures.
7. Never connect or disconnect a hose or line
containing pressure; it may whip. Never remove a
component or plug unless you are certain all
system pressure has been depleted.
8. Use only genuine Bendix®replacement parts,
components and kits. Replacement hardware,
tubing, hose, fittings, etc. must be of equivalent
size, type and strength as original equipment and
be designed specifically for such applications and
systems.
9. Components with stripped threads or damaged
parts should be replaced rather than repaired. Do
not attempt repairs requiring machining or welding
unless specifically stated and approved by the
vehicle and component manufacturer.
10. Prior to returning the vehicle to service, make
certainallcomponentsandsystemsarerestoredto
their proper operating condition.
PREVENTIVE MAINTENANCE
GENERAL
Performthefollowingtests andinspectionsat theprescribed
intervals.If theLQ-5™valvefails to functionas described or
if leakage is excessive, repair the valve or replace it with a
neworgenuineBendixremanufactured unit,availableatany
authorizedparts outlet.
Important: Review the Bendix Warranty Policy before
performinganyintrusivemaintenanceprocedures.Awarranty
maybe voidedif intrusive maintenanceis performedduring
thewarranty period.
No two vehicles operate under identical conditions, as a
result, maintenance intervals may vary. Experience is a
valuableguideindeterminingthe bestmaintenance interval
for air brake system components.At a minimum, the valve
shouldbeinspectedevery6monthsor1500operatinghours,
whichevercomesfirst,forproperoperation.Shouldthevalve
notmeet the elements of theoperationaltests noted in this
document,furtherinvestigation andserviceof thevalvemay
berequired.
OPERATION & LEAKAGE TESTS
OPERATION TEST
ToproperlytesttheLQ-5™valve, usea pairoftest gaugesor
gaugesof known accuracy.
1. With the trailer supply valve pushed in (tractor-trailer
mode), install two air gauges in the front axle service
system: one between the brake valve and the LQ-5™
valveand one atafront axle actuator.
2 Buildsystem pressure to governor cut-out setting.
3. Makea servicebrake applicationwith thefoot valveand
have someone observe the gauges. When the gauge
betweenthe footvalveand theLQ-5™valvereaches 40
psi, the actuator gauge should read approximately 20
psi (±5 psi).
4. Makeafullservicebrakeapplication.Bothgaugesshould
readthe same pressure.
5. With the trailer supply valve pulled out (bobtail mode),
makea30-40psiservicebrakeapplication.Bothgauges
shouldread the same pressure.
6. Removethe test gauges.
LEAKAGE TEST
1. Buildsystempressuretogovernorcut-out.Withthetrailer
supplyvalvepushedin(tractor-trailermode),applyasoap
solution to the LQ-5™valve exhaust port. The leakage
should not exceed a 1" bubble in less than 3 seconds.