
Page: 3/3
CanProx One Installation Instructions August 2010 Rev 2.6
Introduction
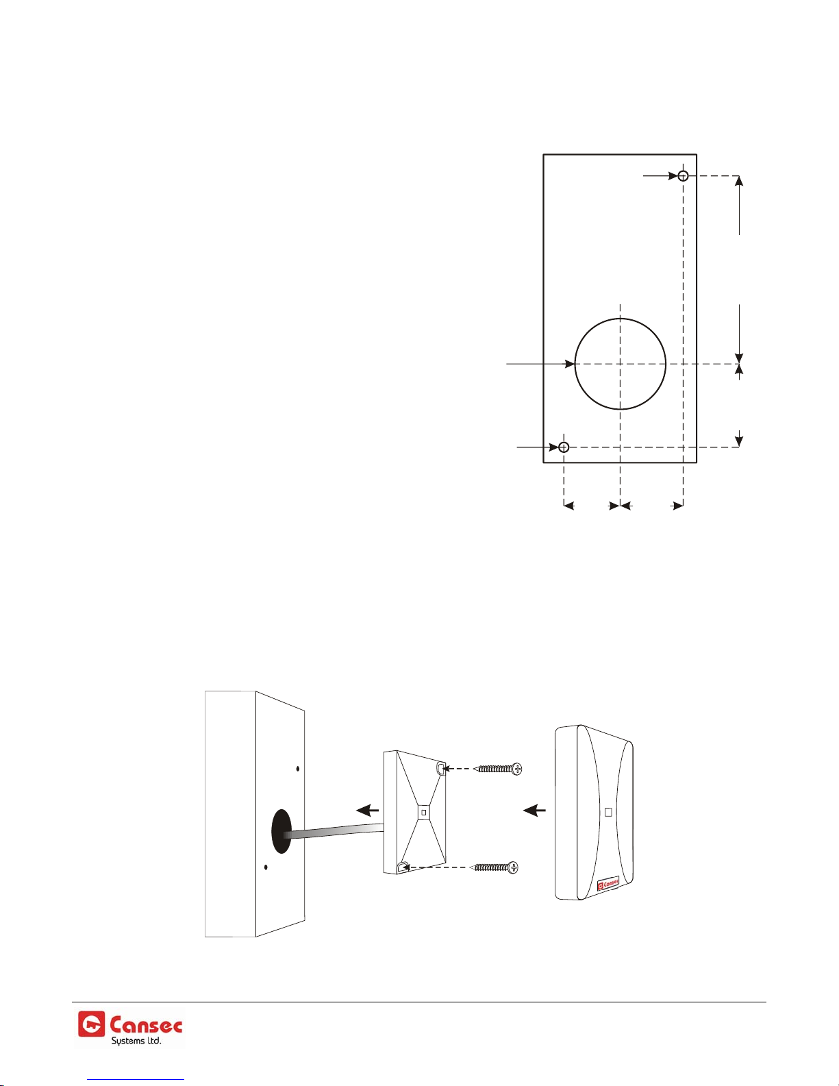
The CanProx One proximity reader is mullion mountable and includes an adapter plate for wall mounting. Readers
have 26-bit and 37-bit Weigand output capability. Credentials for the Cansec/AWID-compatible reader (CA-CPIR)
include a standard, clamshell-style proximity card, ISO-thin proximity card – standard and magnetic stripe, Cansec’s
CanProx One proximity key fob, and the CanProx One dual-technology RF transmitter. (NOTE: the dual-
technology RF transmitter only works as a proximity credential with the CanProx One Reader.) Credentials for the
HID-compatible reader (CA-CP1RHID) include HID clamshell and graphics cards and the HID proximity key fob.
Read range varies between credentials and with input voltage.
Specifications*
Description: ...............................................................................................CanProx One multi-mount proximity reader
Available in AWID- and HID-compatible versions
Warranty: ........................................................Limited lifetime warranty against defects in material and workmanship
Operating Voltage: ....................................................................................................................................... 5 to 14 VDC
Current Draw: ...................................................................................................5 mA min., 45 mA typical, 80 mA max.
Output Format: ..........................................................................................................................26-bit & 37-bit Wiegand
Frequency: ........................................................................................................................................................... 125 KHz
Range: ............................................................................................up to 5” (varies with reader voltage and credentials)
Operating Temp: ......................................................................................................... -40 °C to 65 °C (-40 °F to 149 °F)
Dimensions:
Wall Mount: .....................................70mm (w) x 115mm (h) x 23mm (d) [2.8 in (w) x 4.5 in (h) x 1.0 in (d)]
Mullion Mount: .................................40mm (w) x 98 mm (h) x 17mm (d) [1.6 in (w) x 3.9 in (h) x 0.7 in (d)]
Weight: ................................................................................................................................................ approx. 85 g (3 oz)
Colour: ................................................................................................................................................................ Flat black
Housing: ................................................................................................................................................. High impact ABS
Mounting: ................................................................................................................................................ Wall or mullion
Environment: .......................................................................................................................................... Indoor/outdoor
Rated IP 67: ...........................................................................Sealed against dust; protection against powerful water jet
LED: ......................................................................................................................... Four-state (red, green, amber, off)
Beeper: ................................................................................................................................................................. Standard
Cable: .......................................... up to 7 conductors, 22 AWG, stranded, overall shield; 150 m (500 ft) max length