
Carson Manufacturing Co., Inc.
5451 North Rural Street
Indianapolis, IN 46220
Phone: (888) 577-6877 Fax: (317) 254-2667
www.carson-mfg.com
CSP-100B LOUDSPEAKER
INSTALLATION INSTRUCTIONS
Sound Hazard - Sound level from loudspeaker (>120dBA @ 10 feet) may cause hearing damage.
Do not operate system without adequate hearing protection for you and anyone in immediate vicinity.
(Ref. OSHA 1910.95 for occupational noise exposure guidelines)
SPECIFICATIONS
Power Handling 100W
Impedance 11 ohm nominal
Frequency Range 400 Hz to 3500 Hz
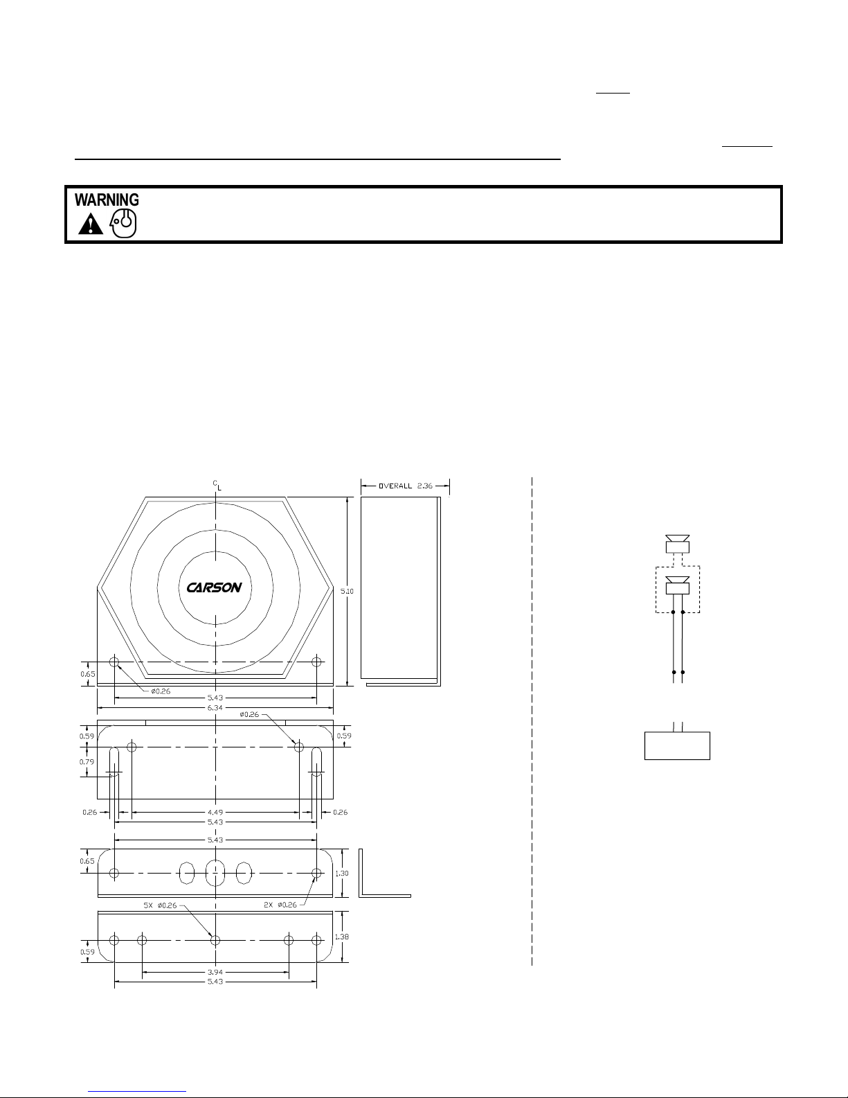
Size 6.34" W x 5.10" H x 2.36" D
Weight 6 LBS.
NOTICE
Due to continuous product improvements, we must reserve the right to change any specifications and information, contained in this manual at
any time without notice. Carson Manufacturing Co., Inc. makes no warranty of any kind with regard to this manual, including, but not limited to,
the implied warranties of merchantability and fitness for a particular purpose. Carson Manufacturing Co., Inc. shall not be liable for errors
contained herein or for incidental or consequential damages in connection with the furnishing, performance, or use of this manual.
RETURN
If you have any questions concerning this or any other Carson product, please contact our Technical Service Department at
(888)
577-6877.
Many
issues
can
be
handled
over
t
he phone. We can also be reached via e-mail at [email protected]
If a product must be returned for any reason, please contact our Technical Service Department to obtain a Returned Merchandise
Authorization number (RMA#) before you ship the product to Carson. Please write the RMA# clearly on the package near the mailing label.
Be sure to provide a return address, contact and phone number, along with a brief description of the problem.
Carson is a trademark of Carson Manufacturing Company, Inc.
CSP-100B
100W 11 OHM
LIMITED WARRANTY
Carson Manufacturing Company, Inc. warrants this new product to be free from defects in material and workmanship, under normal use and service, for a period of one (1) year from the
date of delivery to the first user-purchaser.
During this warranty period the obligation of Carson Manufacturing is limited to repairing or replacing, as Carson Manufacturing may elect, any part or parts of such product which after
examination by Carson Manufacturing is determined to be defective in material and/or workmanship. This warranty does not cover labor charges for removal or re-installation of the
product. Fuses and lamps are not covered under this warranty. This warranty does not extend to any unit that has been subjected to abuse, misuse, improper installation or which has
not been adequately maintained, nor to units which have problems related to service or modification at any facility other than the manufacturer.
THERE ARE NO OTHER WARRANTIES, EXPRESSED OR IMPLIED, INCLUDING BUT NOT LIMITED TO, ANY IMPLIED WARRANTIES OF MERCHANTABILITY OR FITNESS FOR A
PARTICULAR PURPOSE. IN NO EVENT SHALL CARSON MANUFACTURING COMPANY, INC. BE LIABLE FOR ANY LOSS OF PROFITS OR ANY INDIRECT OR
CONSEQUENTIAL DAMAGES ARISING OUT OF ANY SUCH DEFECT IN MATERIALS OR WORKMANSHIP.