CDVI DG502U/A Bedienungsanleitung

Edition 12/2005
Terminal
Description
B
Request-to-Exit input 1
E
Request-to-Exit input 2
M
Common REX inputs
R
N/C Contact door
C
Common
T
N/O Contact door
V1,V2
Varistor
ST1
Jumper for reset
S,S
Tamper Switch output
N O T I C E D E M O N T A G E E T D ’ U T I L I S A T I O N
This device comes with a varistor.
The varistor must be connected to the strike terminal
(electromagnet…) operated by the device.
If this product works with many strikes, each of them
should have a varistor.
The varistor controls the overload produced by the strike
coil – self-effect.
If you are using a « Shear Lock » electromagnetic lock, it is recommended to
use a separate power supply than the one connected to the DG502U!
Warning
Do not use a switching power
supply because of the interference
radiation that may disturb the
reading of the badges
Ne pas utiliser d’alimentation
à découpage à cause de
rayonnements parasites pouvant
perturber la lecture des badges.
PB1
PB2
C
R
T
R
C
T
S
S
B
M
E
1
2
3
4
5
6
12
V
12
1
2
3
4
5
6
7
8
9
0
#
RL1
RL2
12 3
ST1
…
V1
strike
Input voltage
12VAC/DC
V
M
A
G
N
E
T
V2
DG502U/A
DG502U/P
2-DOOR CONTROLLER
500 USERS

Edition 12/2005
- 2 -
2
Technical specifications
Input voltage
12 VAC/DC
Outputs
2 form C relays N/O and N/C 3A @ 125V
Tamper switch
500 MA @ 50 VAC/DC
Cardholders
500 badges
Master code
5-digit master code
Inputs
2 REX inputs
Controller
12-digit keypad with built-in buzzer (Audible feedback)
Distance between the
remote readers and the
controller
60 cm minimum,
50 meters maximum
(cable spec. 7 x 0.6 mm2)
Default Factory Values
Master Code: 12345
Door release time: 1 second
Key-in Keypad: 10 seconds
Enrollment unit: Built-in reader in controller
Power consumption
DG502 only: 160mA
DG502 with 1 remote reader: 240mA
DG502 with 2 remote readers: 320mA
Audible Feedback
1 long beep
Validation of data in programming mode: master code,
proximity badge or time delay.
Or access code validated
2 short beeps
Accessing the programming mode
or exit from the programming mode
4 short beeps
Badge not programmed (invalid badge)
or incorrect master code or time delay entered
Visual Feedback
LED
Stand-by mode
Programming mode
Green
Door relay activated
User location free
Red
Alarm activated
User location
orange
Programming mode
orange flashing
Stand-by
Error data computing
Request-to-Exit Inputs
The two request-to-exit inputs PB1 and PB2 operate relay RL1 and RL2.
The LED turns on green when the relay is activated by one of the two inputs.

Edition 12/2005
- 3 -
3
Changing the Master Code
1. Enter the master code twice (for the first use the master code default value
is 12345). 2 beeps and the orange LED lights on confirming that you are in
programming mode.
2. Enter *3 then the 5-digit new master code. The LED goes off during 1 second
and an audible beep indicates that the new master code is memorised.
3. Press # to exit from the programming mode. 2 beeps confirm that you went
back to the reading mode.
4 beeps indicate a data computing error.
Time outputs, Enrolment Reader and Access Level
Enter the master code twice (for the first use the master code default value is
12345). 2 beeps and the orange LED lights on confirm the entry in programming
mode.
Enrolment reader
(* mag stripe must
be set as remote
enrolment reader)
Enter 0, then 00 to select the built-in reader of the controller as the
enrolment unit.
*Press 0, then 01 remote reader 1 as the enrollment unit.
The LED lights off during 1 second and an audible beep indicates
the validation of the enrolment reader.
In stand-by mode, if the enrolment reader is the controller
built-in reader all the readers can be used but if the enrolment
reader is the remote reader 1 then only the 2 remote reader can
be used.
Time output relay 1
Enter 1, then the time relay in second:
01 equal 1 second up to 99 for 99 seconds.
00 corresponds to a latched output.
The LED lights off during 1 second and an audible beep indicates
the validation of the time delay.
Time output relay 2
Enter 2, then the time relay in second:
01 equal 1 second up to 99 for 99 seconds.
00 corresponds to a latched output.
The LED lights off during 1 second and an audible beep indicates
the validation of the time delay.
Access Level
Enter 4 , then 01 for door 1 and controller activates relay 1
02 for door 2 activates relay 2
03 door 1 and 2 activates relay 1 2
The LED lights off during 1 second and an audible beep indicates
the validation of the access level.
Press # to exit from the programming mode. 2 beeps confirm that you returned
to reading mode.
4 beeps indicate a data computing error.

Edition 12/2005
- 4 -
4
Adding a Badge
The badges can be programmed by group according to the access level
selected in menu *4. You can program a series of badges then change the
access level in menu *4 and program another series of badges.
1. Enter the master code twice (for the first use the master code default value is
12345). 2 beeps and the orange LED lights on to confirm that you have entered into
the programming mode.
2. Enter *4 and select the access level 01 or 02 or 03 one beep is emitted.
3. Enter the user location (000 to 499). The LED lights off during 1 second and
one beep is emitted.
4. If the LED turns green, present a badge in front of the enrolment reader.
The LED lights off during 1 second and one beep is emitted.
the LED lights on solid orange to confirm that the badge was programmed.
5. if the LED turns red (badge is already programmed in that user location),
delete the badge or select another user location.
6. to program a badge with the same access level repeat from step 3
7. to program a badge with a different access level repeat from step 2
Press # to exit from the programming mode. 2 beeps confirm that you returned
to reading mode.
4 beeps indicate a data computing error.
Deleting or Replacing a Badge
1. Enter the master code twice (for the first use the master code default value is 12345).
2 beeps and the orange LED lights on to confirm that you have entered into the
programming mode.
2. Enter *4 and then select the access level 01 or 02 or 03 one beep is emitted.
3. Enter the user location from 000 to 499 to delete. The LED lights off during 1 second and 1 beep is
emitted.
4. If the LED lights on in red it indicates that a badge is programmed at that user location.
5. Press twice to delete the badge. The Led lights off during 1 second and 1 beep is
emitted.
6. The LED lights on in green to confirm that the badge was deleted.
7. Press # to exit from programming.
OR
8. Present a new badge in front of the enrolment unit. The LED lights off during 1 second
and 1 beep is emitted.
9. The LED lights on in orange to confirm that the new badge was programmed.
10. Press # to exit from programming. 2 beeps confirm that you returned to reading mode.
Reset of Master Code and Badges to Factory Default Values
1. Place ST1 jumper on, 2-3 position.
2. The LED flashes in green during 5 seconds. One beep confirms that the master code is restored to
its factory default setting 12345. The LED starts then flashing in red.
3. Remove the jumper from 2-3 position to go back to stand-by mode.
OR
4. Keep the jumper on 2-3 position to delete all the badges from the controller.
5. The red LED flashes during 5 seconds then turns to solid red during the rest of the reset.
6. Once all the badges have been deleted, the LED lights off.
7. Remove the jumper from 2-3 position to go back to the stand-by mode.

Edition 12/2005
- 5 -
5
Note: the time outputs and the enrolment reader are not set to their default settings.
Relay Outputs
Badge 1 – Access Level 01 Controller built-in reader activates relay 1
Remote reader 1 activates relay 1
Badge 2 – Access Level 02 Controller built-in reader activates no
relays Remote reader 2 activates relay 2
Badge 3 – Access Level 03 Controller built-in reader activates relay 1
Remote reader 1 activates relay 1
Remote reader 2 activates relay 2
Reset to Factory Default Values
Cut the power on the DG502 unit
Place the jumper on ST1, 2-3 position
Power on the DG502, the LED is still off
Remove the jumper from ST1, 2-3 position, the LED flashes orange
Wiring of the Remote Readers
Follow the schematic on page 1 to connect remote reader 1 to the controller. Connect terminals 2, 3, 4,
5, 12 and V from the controller directly to the terminals on the remote reader 1. Terminal 6 on the
controller is connected to terminal 1 of remote reader 1.
For remote reader 2, connect in parallel terminals 2, 3, 4, 5, 12 and V from the controller unit. Terminal 1
on the controller is connected to terminal 1 of remote reader 2.
To power the remote readers use a different power supply or use the 12V output from the
controller (At the right hand completely it is the inputs 12V of the controller. The 12V at
the left of the other 12V is the output).

Edition 12/2005
- 6 -
6
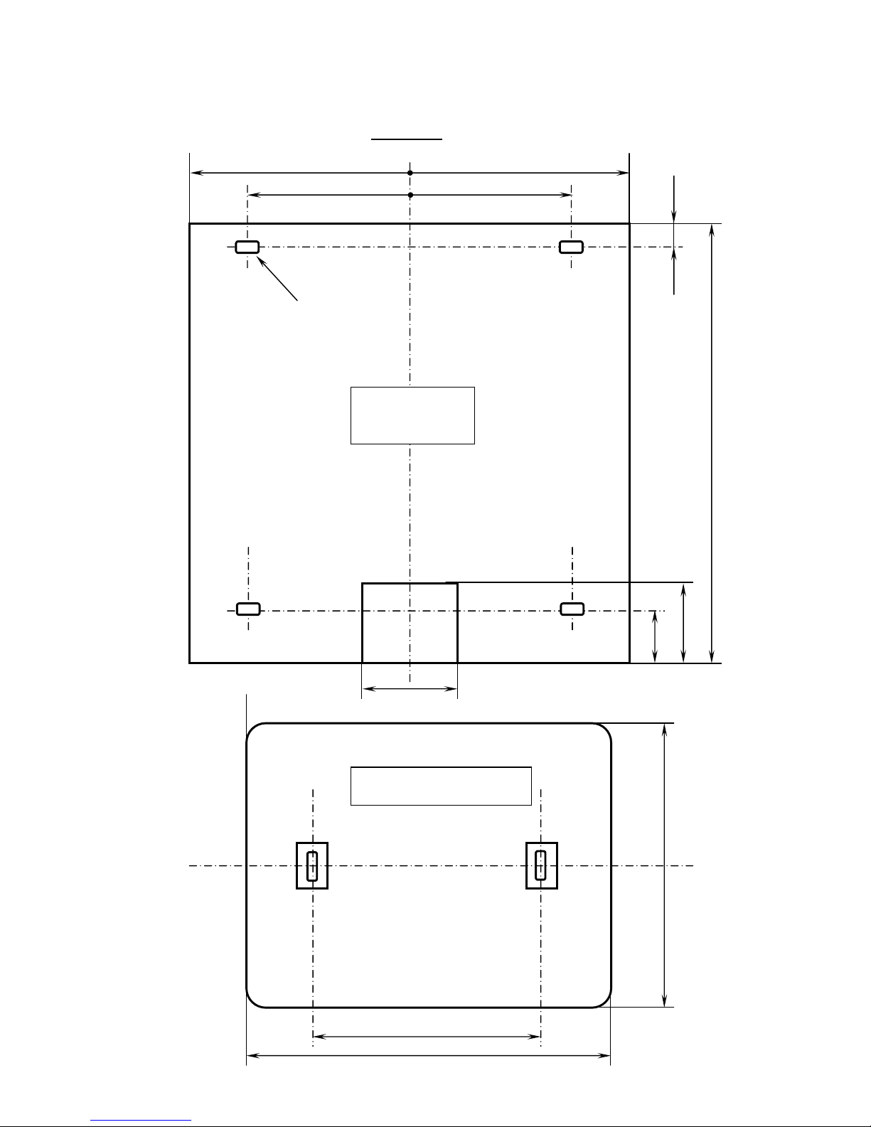
Template
13mm
8 mm
3 x 6 mm
25 mm
116
mm
=
=
85 mm
=
=
22mm
116
mm
61,5m
mmm
99 mm
75 mm
DG 502
Remote Reader

Edition 12/2005
- 7 -
7
Wiring Diagram between the DG502 and Remote Reader 1
3
2
V
1
4
5
12
DISTANCE
60 cm minimum
50 meters maximum
Back view remote reader
C
R
T
R
C
T
S
S
B
M
E
1
2
3
4
5
6
12
V
12
V
DG502
It is possible to use a
separate power supply
for the remote reader
It is recommended to keep a distance of 60 CM
minimum between the DG502U Controller and a
remote reader, between 2 remote readers or
between 2 DG502U controllers.
WIRING DG502—Remote reader 1
DG502 controller Reader 1
12 Input voltage 12
V Input voltage V
6Data 1
2Buzzer 2
3 Green LED 3
4 Common 4
5 Red LED 5

Edition 12/2005
- 8 -
8
Wiring Diagram between the DG502 and Remote Reader 2
3
2
V
1
4
5
12
C
R
T
R
C
T
S
S
B
M
E
1
2
3
4
5
6
12
V
12
V
DG502
DISTANCE
60 cm minimum
50 meters maximum
Back view remote reader
It is possible to use a
separate power supply
for the remote reader
DG502—remote reader 2
DG502 controller Remote
reader 2
12 Input voltage 12
V Input voltage V
1 Data 1
2 Buzzer 2
3 Green LED 3
4 Common 4
5 Red LED 5

Edition 12/2005
- 9 -
9
Cardholder list:
User
location
Username
Access
Level
User
location
Username
Access
Level
Menu
Values
Enrolment reader
0
00=Controller
01=remote reader 1
Door release time Relay 1
1
01=1 sec, 99=99 sec
Door release time Relay 2
2
01=1 sec, 99=99 sec
Programmed by:
date
Site:
No.:
Street:
City:
Other:
Dieses Handbuch passt für folgende Modelle
1
Inhaltsverzeichnis
Andere CDVI Controller Handbücher

CDVI
CDVI ATRIUM A22K Bedienungsanleitung

CDVI
CDVI SASIC Bedienungsanleitung

CDVI
CDVI Digicode Mifare DGM1D Bedienungsanleitung

CDVI
CDVI ATRIUM A22K Bedienungsanleitung

CDVI
CDVI ATRIUM A22K Bedienungsanleitung

CDVI
CDVI STAR1M Bedienungsanleitung

CDVI
CDVI A22 Bedienungsanleitung

CDVI
CDVI ATRIUM AC22 Bedienungsanleitung

CDVI
CDVI SOLAR2R Bedienungsanleitung

CDVI
CDVI ATRIUM A22K Bedienungsanleitung




















