
TECHNICAL GUIDE
Echelon
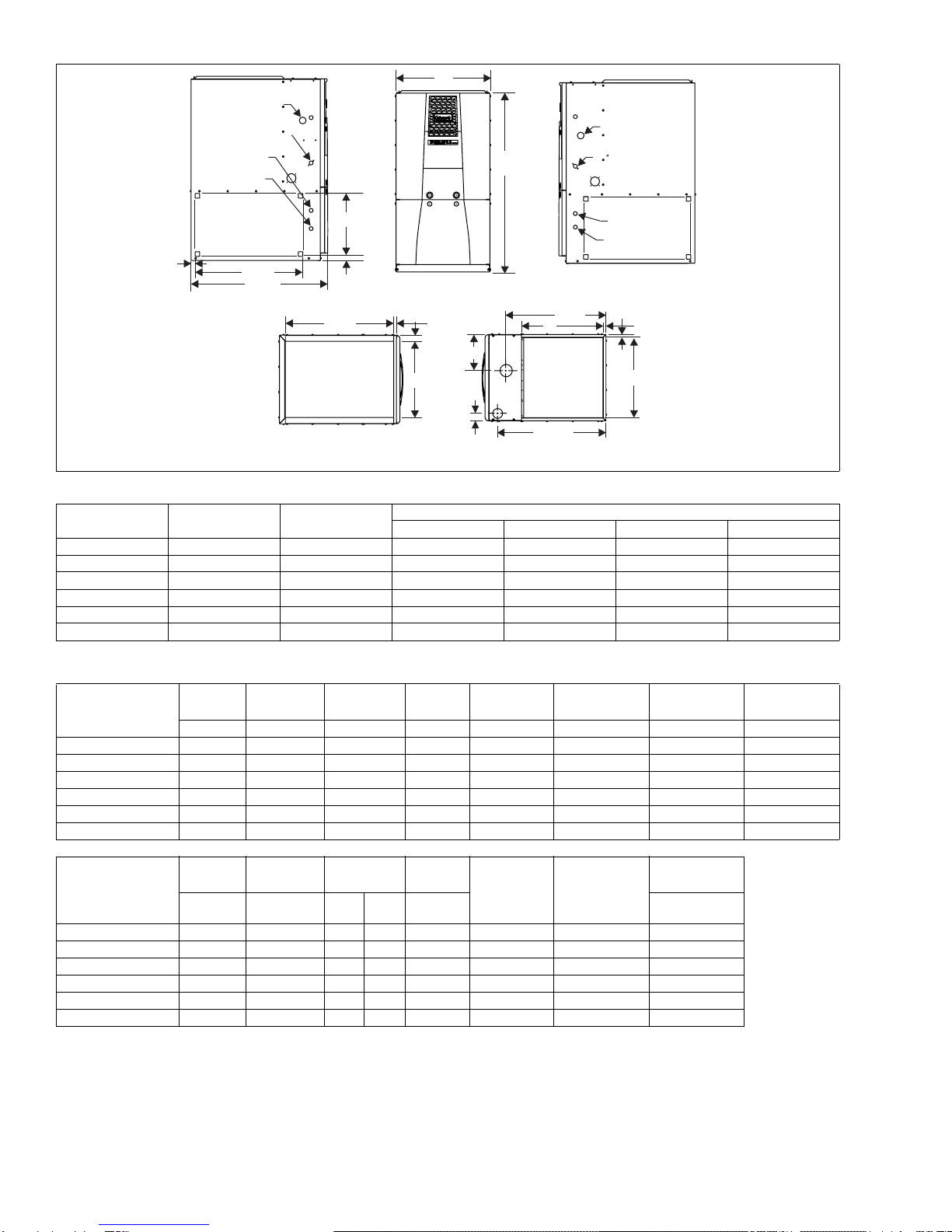
MODELS: FC9V*UP
GAS-FIRED
CONDENSING / HIGH EFFICIENCY
TWO STAGE VARIABLE
UPFLOW FURNACES
UP TO 95% AFUE
NATURAL GAS
40 - 120 MBH INPUT
Due to continuous product improvement, specifications
are subject to change without notice.
Visit us on the web at www.york.com for the most
up-to-date technical information.
Additional rating information can be found at
www.gamanet.org.
EFFICIENCY
RATING
CERTIFIED
ISO 9001
Certified Quality
Management System
260614-CTG-C-0407
FOR DISTRIBUTION USE ONLY - NOT TO BE USED AT POINT OF RETAIL SALE
DESCRIPTION
These Category IV, highly efficient, compact, condensing
type furnaces are designed for residential and commercial
installations in a basement, closet, alcove, recreation room or
garage where the ambient temperature is above 32°F, or
higher. They may be either side wall or thru-roof vented using
approved plastic type combustion air and vent piping. All
units are factory assembled, wired and tested to assure
dependable and economical installation and operation.
WARRANTY
Lifetime limited warranty on both heat exchangers to the orig-
inal purchaser; a 20-year limited warranty from original instal-
lation date to subsequent purchaser.
10-year warranty on the heat exchanger in commercial appli-
cations.
5-year limited parts warranty.
FEATURES
• Two stage heating operation includes:
- Two stage gas valve
- Two stage inducer operation
- Variable speed ECM blower operation
• Provides increased comfort level & very quiet unit opera-
tion
• Adjustable delay timer allows two stage operation with sin-
gle stage thermostat
• Compact, easy to install, ideal height 40" cabinet
• Blower-off delay for cooling SEER improvement.
• Easy to connect power/control wiring.
• Built-in, high level self diagnostics with fault code display.
• Low unit amp requirement for easy replacement applica-
tion.
• Integrated control module for reliable, economical opera-
tion.
• May be installed as either two-pipe (sealed combustion) or
single pipe vent (using indoor combustion air)
• Top intake & vent connection allows installation in narrow
locations.
• Electronic Hot Surface Ignition saves fuel cost with
increased dependability and reliability.
• Induced combustion system with inshot main burners for
quiet, efficient operation.
• No special vent termination kit required.
• 100% shut off main gas valve for extra safety.
• 24V, 40 VA control transformer and blower relay supplied
for add-on cooling.
• Hi-tech tubular aluminized steel primary heat exchanger.
• Secondary (condensing) heat exchanger of 29-4C high-
grade stainless steel.
• Timed on, adjustable off blower capability for maximum
comfort.
• Solid removable bottom panel allows easy application.
• Easy access from front of unit for cleaning, maintenance or
service.
• Protection from intake, exhaust or condensate blockage.
• Insulated blower compartment for quiet operation.
• EcoTrak comfort system allows dealer to customize com-
fort settings based on regional location.