Page 6 of 34
Warning: Minimum Requirements
Before installing this appliance the installer must check that the
property in which the fire is to be installed complies with the
requirements of CE approval:
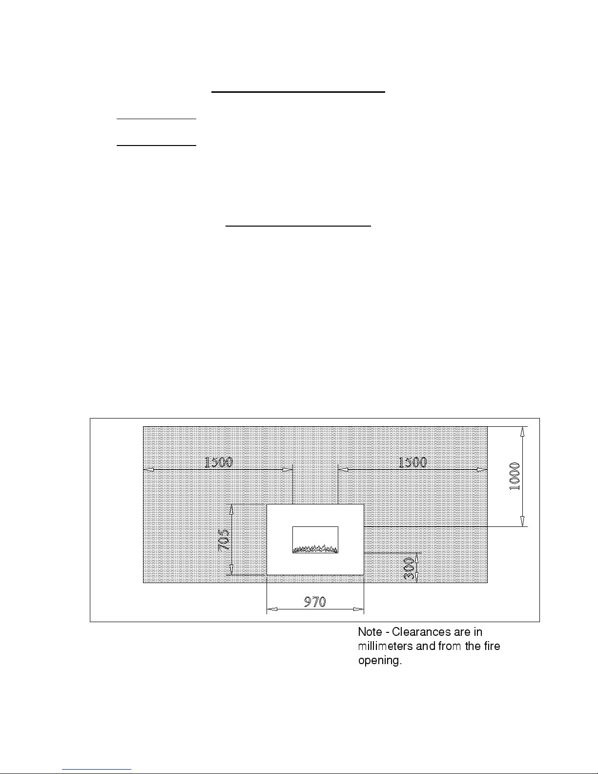
•The appliance must not be installed in a room smaller than that
specified.
•The room in which the appliance is to be installed must have a “free
air” wall vent of the specified size. This vent must be a minimum of 1
metre away from the appliance.
•The room in which the appliance is to be installed must have a window
which can be opened.
•The Inlet Gas pressure must be maintained at the specified level and
must be within +/- 1mbar of specification with all gas appliances in
the house switched on and also with just the Fire Line operating. If
outside of this tolerance the fault is most likely to be in the installation
pipe work or service governor at the meter. If the problem is the
meter governor, this is the property of the gas service provider (such
as Transco or Bord Gais) and they should be called to rectify this.
•For gas categories 2H, 2E and 2E+ only, the reduced heat output
version is available at high low input of 2.7/2.0kW at burner pressures
of 12.2/6.9mbar.
Noisy Pilot / Fire Shut Down
This appliance is fitted with a safety device. This will operate if the
requirements of the installation are not met. If the fire is run for a period of
time and starts to become noisy or suddenly shuts down this indicates a
possible problem. The most common fault is incorrect ventilation. The
ventilation is quoted as “free air” – it is not the size of the actual vent. Each
vent has a specified “free area”. Contact the manufacturer of the vent and
ask for this figure and check it complies with the minimum specified for the
appliance. This is a secondary heat source appliance and is supposed to be
used for short periods of time however it can also incorrect installation. If it
shuts down or is noisy - Do not use the appliance – Ask your installer to
return and confirm the following conditions are met before using the
appliance:
•Minimum Room Size
•Is the pilot shield fitted [see page 21]
•“Free Air” Wall Vent of specified size is installed in room.
•“Free Air” Wall Vent is not blocked.
•“Free Air” Wall Vent is over 1 metre away from the appliance.
•Gas pressure is within the specified limits +/- 1mBar.
•Room appliance is installed in has a window which can be opened.
Failure to comply with the minimum requirements of the specification will
render the appliance dangerous.