
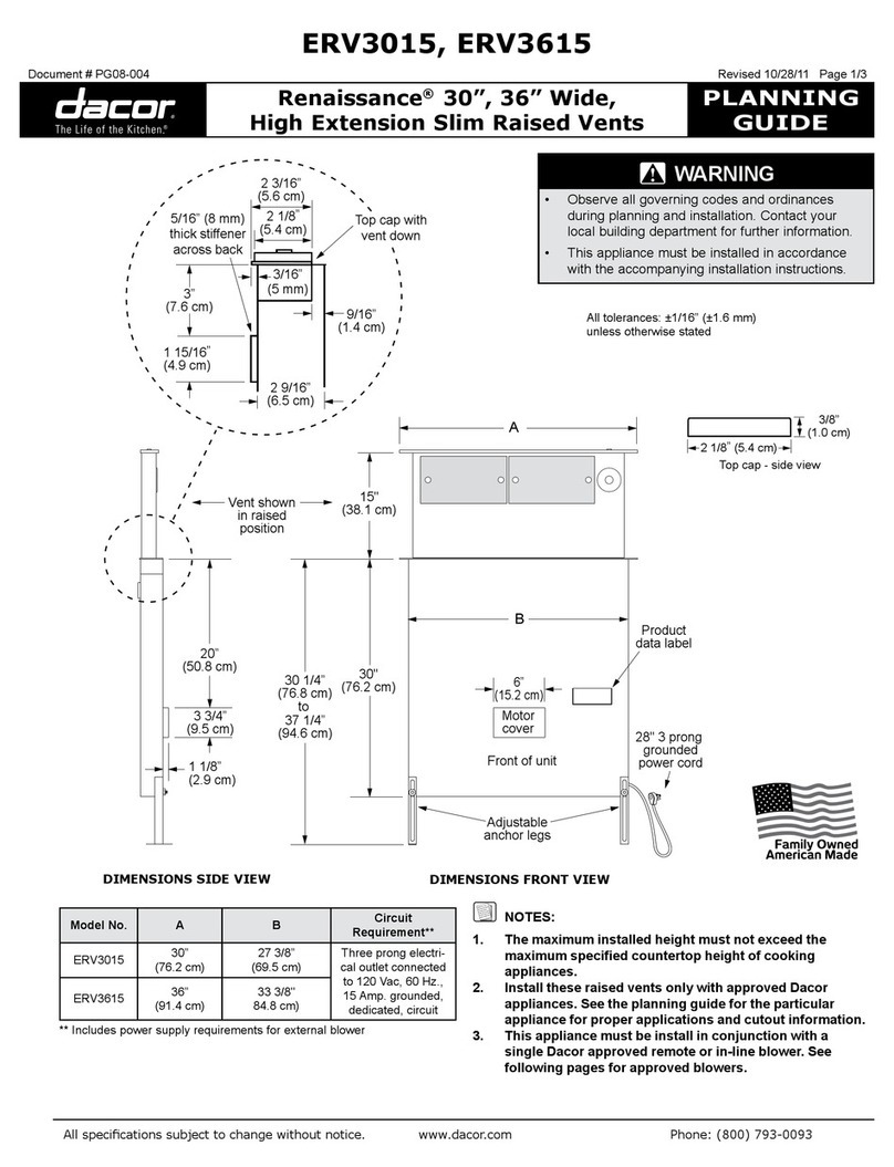
PLANNING
GUIDE
7.3
Specications subject to change without notice. Phone: (800) 793-0093www.Dacor.com
5/16”
(3 mm)
30” min.
(76.2 cm)
Rear of blower
unit
Cooktop
surface
Glass
30 Inch and 36 Inch Wide
Glass Wall Mount Range Hoods
PHW
5 3/4”
(14.6 cm)
8” dia.
203.2 cm)
10 3/4” (27.3 cm) 11 7/8” (30.2 cm)
26 1/8” (66.4 cm)
min.*
44” (111.8 cm)
max.* 25 3/8” *
(64.5 cm)
19 3/4”
(50.2 cm)
19 3/4” *
(50.2 cm)
30” (76.2 cm) or
36” (91.4 cm)**
* Glass thickness of 5/16” (3 mm) not included
** Glass width must be specified at time of order. Specify glass
part number: PHGXXBK where XX is the width.
OVERALL DIMENSIONS
Blower 600 CFM with electronic speed control
Blower Speeds 4
Lights 120 Vac, 50 Watt halogen (1)
Filters Mesh type, dishwasher safe (2)
Exhaust 8 inch
Finish 430 stainless steel with tempered glass hood
Power Required 120 Vac, 60 Hz., 3.5 Amp.
Circuit Required 120 Vac, 60 Hz., 15 Amp. 3-wire (hot, neutral,
ground), grounded, dedicated circuit Min.
GENERAL SPECIFICATIONS
Product tolerances: ±1/16” (±1.6 mm), -0, unless otherwise stated
8” (20 cm) CHIMNEY MOUNTING
BRACKET
INSTALLATION - SIDE VIEW
WARNING
• Observe all governing codes and ordinances during planning
and installation. Contact your local building department for
further information.
• This appliance must be installed in accordance with the
accompanying installation instructions.
• The minimum installed distance from the rear of blower unit
base to the cooktop surface must be no less than
30” inches (76.2 cm), 26 inches (66.0 cm) for an electric
cooktop. The minimum specified distance may be higher
for the particular range or cooktop in use. Check the
manufacturers specifications for the cooktop or range.
• DO NOT install an additional in-line or external blower to
increase the length of the duct run. Even small differences
between blower air flow rates can greatly reduce the air draw
of the hood.
Document # PG07-003 Revised 01/25/11 Page 1/1
The hood may exhaust through
the ceiling on through a rear wall.
EXAMPLE OF REAR
EXHAUST
Maximum Duct Length
The maximum straight duct length for the hood is 50 feet. To determine
the actual maximum duct run, subtract the equivalent length of each
elbow, transition and cap from 50 feet. See the Duct Planning Guide or the
installation instructions for more details.