
Danfoss A/S, 6430 Nordborg, Denmark
• When installing CXH, use equipment
specically reserved for HFC refrigerants
which was never used for CFC or HCFC
refrigerants.
• Use clean and dehydrated refrigeration-grade
copper tubes and silver alloy brazing material.
• Use clean and dehydrated system components.
• The piping connected to the compressor must
be exible in 3 dimensions to dampen vibrations.
4 – Assembly
• In parallel assemblies of CXH the compressor
requires a rigid mounting on the rails. Use the
rigid spacers from the tandem mounting kit
or the rigid spacers delivered with dedicated
tandem compressors.
• Slowly release the nitrogen holding charge
through the schrader port.
• Remove the gaskets when brazing rotolock
connectors.
• Always use new gaskets for assembly.
• Connect the compressor to the system as
soon as possible to avoid oil contamination
from ambient moisture.
• Avoid material entering into the system while
cutting tubes. Never drill holes where burrs
cannot be removed.
• Braze with great care using state-of-the-art
technique and vent piping with nitrogen gas
ow.
• Connect the required safety and control
devices. When the schrader port is used for
this, remove the internal valve.
5 – Leak detection
Never pressurize the circuit with oxygen or
dry air. This could cause re or explosion.
• Pressurize the system on HP side rst and then
on LP side. Never let the pressure on LP side
exceed the pressure on HP side with more than
5 bar. Such pressure dierence could cause
internal compressor damage.
• Do not use dye for leak detection.
• Perform a leak detection test on the complete
system.
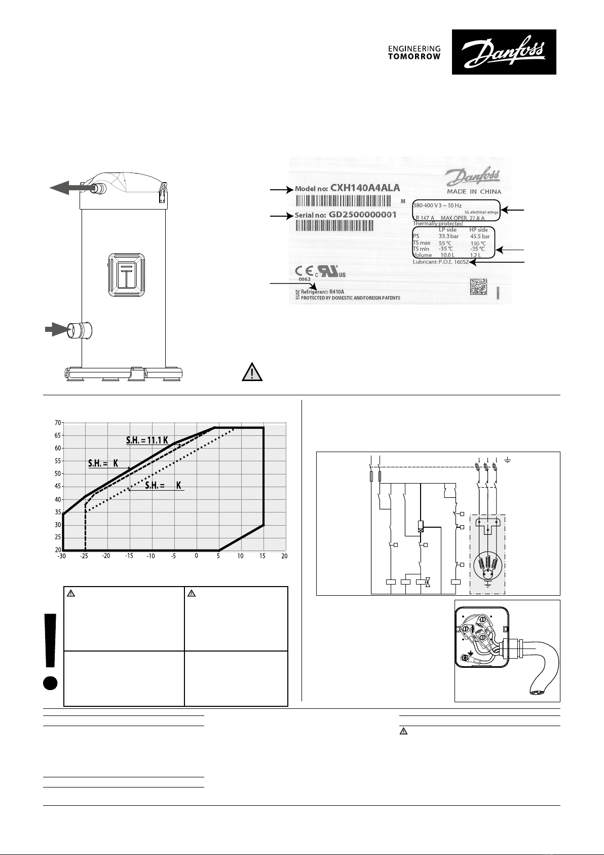
• The test pressure must not exceed :
Models LP side HP side
CXH140 33.3 bar 45.5 bar
• When a leak is discovered, repair the leak and
repeat the leak detection.
6 – Vacuum dehydration
• Never use the compressor to evacuate the
system.
• Connect a vacuum pump to both the LP & HP
sides.
• Pull down the system under a vacuum of 500
µm Hg (0.67 mbar) absolute.
• Do not use a megohmmeter nor apply power
to the compressor while it is under vacuum as
this may cause internal damage.
7 – Electrical connections
• Switch o and isolate the main power supply.
See overleaf for wiring details.
• All electrical components must be selected as per
local standards and compressor requirements.
• Refer to page 2 for electrical connections details.
• The Danfoss scroll compressors only
works correctly in one rotation direction.
Line phases L1, L2, L3 must absolutely be
connected to compressor terminals T1, T2, T3
to avoid reverse rotation.
• Use ø 4.8 mm (3/16”) screws and ¼” ring
terminals for the power connection. Fasten
with 3 Nm torque.
• The thermostat connection (if present) is a ¼”
AMP-AWE spade connector.
• The compressor must be connected to earth
with the 5 mm earth terminal screw.
8 – Filling the system
• Keep the compressor switched o.
• Fill the refrigerant in liquid phase into the
condenser or liquid receiver. The charge must
be as close as possible to the nominal system
charge to avoid low pressure operation and
excessive superheat. Never let the pressure
on LP side exceed the pressure on HP side
with more than 5 bar. Such pressure dierence
could cause internal compressor damage.
• Keep the refrigerant charge below the
indicated charge limits if possible. Above
this limit; protect the compressor against
liquid ood-back with a pump-down cycle or
suction line accumulator.
• Never leave the lling cylinder connected to
the circuit.
Compressor models Refrigerant charge
limit (kg)
CXH140 7.9
9 – Verification before commissioning
Use safety devices such as safety pressure
switch and mechanical relief valve in compliance
with both generally and locally applicable
regulations and safety standards. Ensure that
they are operational and properly set.
Check that the settings of high-pressure
switches and relief valves don’t exceed the
maximum service pressure of any system
component.
• A low-pressure switch is recommended to
avoid vacuum operation. Minimum setting
for CXH: 1.5 bar g.
• Verify that all electrical connections are
properly fastened and in compliance with
local regulations.
• When a crankcase heater is required, it must be
energized at least 6 hours before initial start-
up and start-up after prolonged shutdown for
sump heaters.
10 – Start-up
• Never start the compressor when no
refrigerant is charged.
• All service valves must be in the open position.
• Balance the HP/LP pressure.
• Energize the compressor. It must start
promptly. If the compressor does not start,
check wiring conformity and voltage on
terminals.
• Eventual reverse rotation can be detected
by following phenomena; the compressor
doesn’t build up pressure, it has abnormally
high sound level and abnormally low power
consumption. In such case, shut down the
compressor immediately and connect the
phases to their proper terminals. CXH140
has no internal reverse rotation protection.
Prolonged reverse rotation will damage the
compressors.
• If the internal overload protector trips out it
must cool down to 60°C to reset. Depending
on ambient temperature, this may take up to
several hours.
11 – Check with running compressor
• Check current draw and voltage.
• Check suction superheat to reduce risk of
slugging.
• Observe the oil level in the sight glass (if
provided) for about 60 minutes to ensure
proper oil return to the compressor.
• Respect the operating limits.
• Check all tubes for abnormal vibration.
Movements in excess of 1.5 mm require
corrective measures such as tube brackets.
• When needed, additional refrigerant in liquid
phase may be added in the low-pressure side
as far as possible from the compressor. The
compressor must be operating during this
process.
• Do not overcharge the system.
• Never release refrigerant to atmosphere.
• Before leaving the installation site, carry out
a general installation inspection regarding
cleanliness, noise and leak detection.
• Record type and amount of refrigerant charge
as well as operating conditions as a reference
for future inspections.
12 – Maintenance
Internal pressure and surface temperature
are dangerous and may cause permanent injury.
Maintenance operators and installers require
appropriate skills and tools. Tubing temperature
may exceed 100°C and can cause severe burns.
Ensure that periodic service inspections to
ensure system reliability and as required by local
regulations are performed.
To prevent system related compressor problems,
following periodic maintenance is recommended:
• Verify that safety devices are operational and
properly set.
• Ensure that the system is leak tight.
• Check the compressor current draw.
• Conrm that the system is operating in a
way consistent with previous maintenance
records and ambient conditions.
• Check that all electrical connections are still
adequately fastened.
• Keep the compressor clean and verify
the absence of rust and oxidation on the
compressor shell, tubes and electrical
connections.
13 - Warranty
Always transmit the model number and serial number
with any claim filed regarding this product.
The product warranty may be void in following cases:
• Absence of nameplate.
• External modications; in particular, drilling,
welding, broken feet and shock marks.
• Compressor opened or returned unsealed.
• Rust, water or leak detection dye inside the
compressor.
• Use of a refrigerant or lubricant not approved
by Danfoss.
• Any deviation from recommended
instructions pertaining to installation,
application or maintenance.
• Use in mobile applications.
• Use in explosive atmospheric environment.
• No model number or serial number
transmitted with the warranty claim.
14 – Disposal
Danfoss recommends that compres
sors and compressor oil should be
recycled by a suitable company at its
site.
© Copyright Danfoss | Commercial Compressors | 2016.04FRCC.PI.032.A3.02 - 8510269P01B
Danfoss can accept no responsibility for possible errors in catalogues, brochures and other printed material. Danfoss reserves the right to alter its products without notice. This also applies to products
already on order provided that such alterations can be made without subsequential changes being necessary in specications already agreed.
All trademarks in this material are property of the respective companies. Danfoss and the Danfoss logotype are trademarks of Danfoss A/S. All rights reserved.