
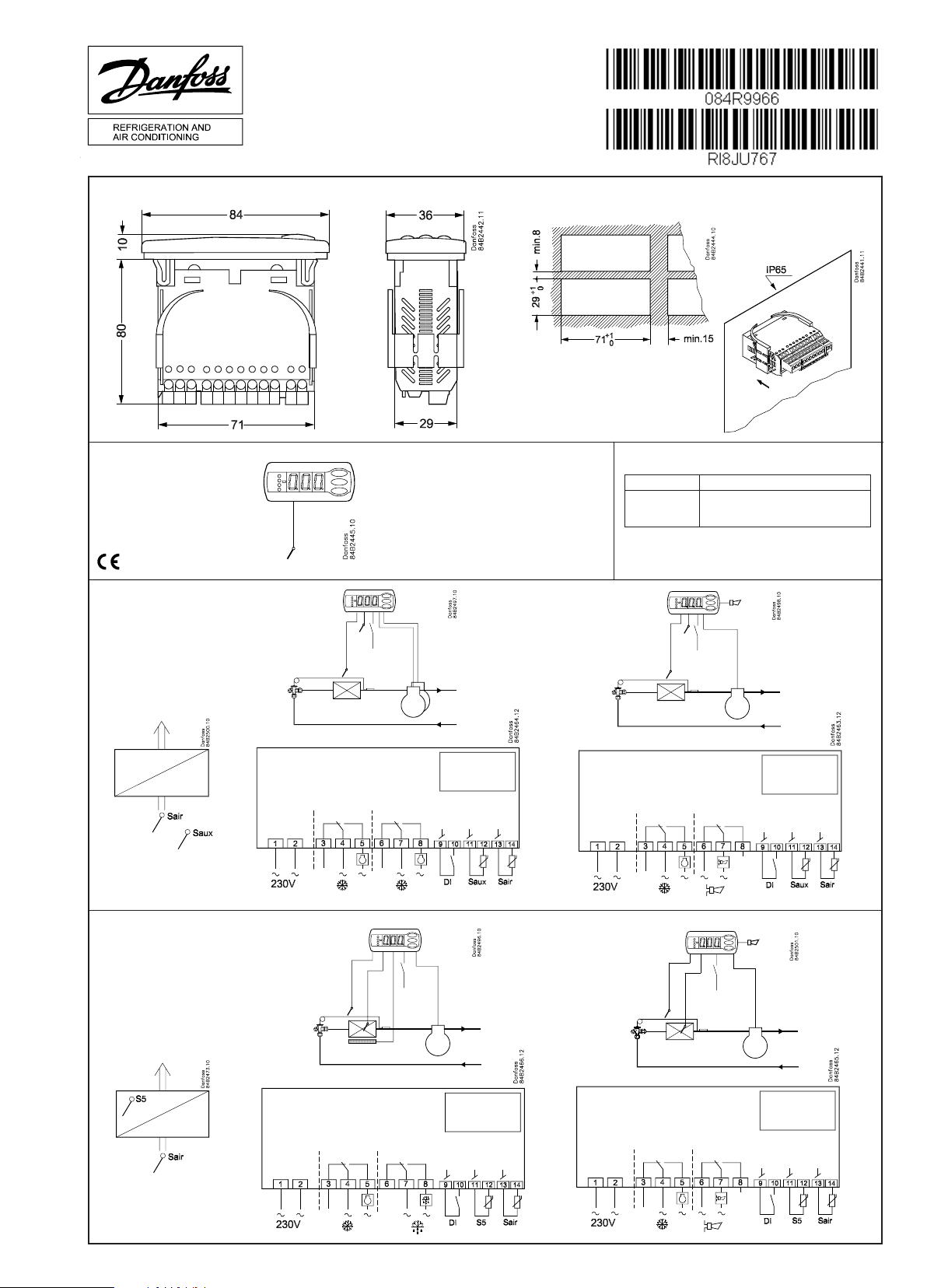
EKC 102B, 102C Instructions RI8JU767 © Danfoss 09/2009 7
Avviamento:
La regolazione ha inizio quando la ten-
sione è collegata.
Controllare accuratamente le im-
postazioni di fabbrica. Apportare tutte
le modifiche necessarie ai rispettivi
parametri.
Italiano
I pulsanti
Impostazione del menu
1. Premere il pulsante superiore fino a
visualizzare un parametro.
2. Premere il pulsante superiore o inferiore
e cercare il parametro da modificare.
3. Premere il pulsante centrale fino a
visualizzare il valore parametrico.
4. Premere il pulsante superiore o inferiore
e selezionare il nuovo valore.
5. Premere nuovamente il pulsante centrale
per immettere il valore.
Impostazione della temperatura
1. Premere il pulsante centrale fino a
visualizzare il valore di temperatura.
2. Premere il pulsante superiore o inferiore
e selezionare il nuovo valore.
3. Premere il pulsante centrale per
selezionare l’impostazione.
Visualizzazione della temperatura sull’altro
sensore di temperatura
• Premere brevemente il pulsante inferiore
Avvio o arresto manuale di uno
sbrinamento
• Premere il pulsante inferiore per
quattro secondi.
Diodo ad emissione luminosa
= refrigerazione
= sbrinamento
Lampeggia rapidamente in caso di allarme
Visualizzazione del codice di allarme
• Premere brevemente il pulsante superiore
SW = 1.2X
Impostazione di fabbrica
Se è necessario reimpostare i valori
di fabbrica, attenersi alla seguente
procedura:
- Disinserire la tensione di alimentazi-
one del regolatore
- Tenere premuti il pulsante superiore
e inferiore contemporaneamente
mentre si ricollega la tensione di
alimentazione
* 1=> EL if o71 =1
The Product contains electrical components
And may not be disposed together with domestic waste.
Equipment must be separate collected with Electrical and Elec-
tronic waste. According to Local and currently valid legislation.
DE-BD
Parametri EKC
102B
EKC
102C Valore
Min.
Valore
Max.
Impo-
sta-
zione di
fabbrica
Imposta-
zione
effettiva
Funzione Codici
Funzionamento normale
Temperatura (set point) --- -50°C 50°C 2°C
Termostato
Differenziale r01 0,1 K 20 K 2 K
Limite max. per l’impostazione del setpoint r02 -49°C 50°C 50°C
Limite min. per l’impostazione del setpoint r03 -50°C 49°C -50°C
Regolazione dell’indicazione di temperatura r04 -20 K 20 K 0 K
Unità di temperatura (°C/°F) r05 °C °F °C
Correzione del segnale di Sair r09 -10 K 10 K 0 K
Servizio manuale, arresto regolazione, avvio regolazione
(-1, 0, 1)
r12 -1 1 1
Spostamento del riferimento durante il funzionamento
notturno
r13 -10 K 10 K 0 K
Allarme
Allarme per ritardo di temperatura A03 0 min 240 min 30 min
Allarme per ritardo porta A04 0 min 240 min 60 min
Allarme per ritardo di temperatura dopo lo sbrinamento A12 0 min 240 min 90 min
Limite di allarme superiore A13 -50°C 50°C 8°C
Limite di allarme inferiore A14 -50°C 50°C -30°C
Limite di allarme superiore per temperatura del condensa-
tore (o69)
A37 0°C 99°C 50°C
Compressore
Tempo ON min. c01 0 min 30 min 0 min
Tempo OFF min c02 0 min 30 min 0 min
Tempo di ritardo per inserimento del comp..2 c05 0 sec 999 sec 5 sec
Il relè del compressore deve inserirsi e disinserirsi inversa-
mente (funzione NC)
c30 OFF On OFF
Sbrinamento
Metodo di sbrinamento (0=nessuno / 1=naturale, 2=gas) d01 0/1 0/1*/2 0 2 1
Temperatura di arresto sbrinamento d02 0°C 25°C 6°C
Intervallo tra avvii sbrinamento d03 0 ore 48 ore 8 ore
Durata max. sbrinamento d04 0 min 180 min 45 min
Spostamento temporale all’inserimento dello sbrinamento
all’avvio
d05 0 min 240 min 0 min
Sensore di sbrinamento 0=tempo, (B:1=Sair.) (C: 1=S5, 2
2=Sair)
d10 1=Sair 1=S5 0 1 (2) 0
Sbrinamento all’avvio d13 no yes no
Tempo max. di refrigerazione complessiva tra due sbrina-
menti
d18 0 ore 48 ore 8 ore
Sbrinamento su richiesta – Variazione della temperatura
di S5 consentita durante la formazione di ghiaccio. Sull’im-
pianto centrale scegliere 20 K (=o.)
d19 0 K 20 k 2 K
Varie
Ritardo dei segnali in uscita dopo l’avvio o01 0 s 600 s 5 s
Segnale in ingresso a DI1. Funzione: (0=non utilizzato. 1=
allarme porta, se aperto. 2= avvio sbrinamento (pressione
di impulsi). 3= interruttore princ. est. 4=funzionamento
notturno
o02 0 4 0
Codice di accesso 1 (tutte le impostazioni) o05 0 100 0
Tipo di sensore utilizzato (Pt /PTC/NTC) o06 Pt ntc Pt
Visualizzazione decimale = 0,5 normale (0,1 al sensore Pt) o15 no yes no
Codice di accesso 2 (accesso parziale) o64 0 100 0
Salvataggio delle impostazioni correnti dei regolatori sul
tasto di programmazione. Selezione del proprio numero.
o65 0 25 0
Caricamento di una serie di impostazioni dal tasto di
programmazione (precedentemente salvate mediante la
funzione o65)
o66 0 25 0
Sostituzione delle impostazioni di fabbrica dei regolatori
con quelle attuali o67 OFF On OFF
Selezione dell’applicazione per il sensore Saux (0= non
utilizzato, 1=sensore prodotto, 2=sensore condensatore) o69 0 2 0
Selezione dell’applicazione per il sensore S5 (0= sensore di
sbrinamento, 1=sensore prodotto) o70 0 1 0
Selezione dell’applicazione per il relè 2: 1=compressore-2/
sbrinamento, 2=relè di allarme o71 Comp. /
Allarme
Sbrina-
mento/
Allarme
1 2 1
Servizio
Temperatura misurata con il sensore Saux u03
Temperatura misurata con il sensore S5 u09
Stato su ingresso DI1. on/1=chiuso u10
Stato del relè per il raffreddamento. Può essere controllato
manualmente ma solo quando r12=-1 u58
Stato del relè 2 Può essere controllato manualmente ma
solo quando r12=-1 u70
Visualizzazione codici di allarme
A1 Allarme temperatura elevata
A2 Allarme bassa temperatura
A4 Allarme porta
A45 Modalità standby
A61 Allarme condensatore
Visualizzazione codici di guasto
E1 Guasto del regolatore
E27 Errore sensore S5
E29 Errore sensore Sair
E30 Errore sensore SAUX
Visualizzazione codici di stato
S0 Regolazione
S2 Compressore tempo ON
S3 Compressore Tempo OFF
S10 Refrigerazione interrotta
dall’interruttore principale
S11 Refrigerazione interrotta dal
termostato
S14 Sequenza di sbrinamento.
Sbrinamento
S17 Sportello aperto (ingresso DI
aperto)
S20 Raffreddamento di emergenza
S25 Controllo manuale delle uscite
S32 Ritardo dell’uscita all’avvio
non Impossibile visualizzare la
temperatura di sbrinamento.
Nessun sensore
-d- Sbrinamento in corso / Primo
raffreddamento dopo lo sbri-
namento
PS È necessario inserire una pas-
sword. Impostazione password
Attenzione! Partenza diretta del
compressore *
Per evitare la rottura del compresso-
re I parametric c01 e c02 dovranno
essere impostati secondo le specifi-
che del costruttore o in generale :
Compressori ermetici : c02 min. 5
minuti.
Compressori semiermetici : c02
min. 8 minuti e c01 da 2 a 5 minuti (
Motori da 5 a 15 KW )
* ) L’attivazione diretta della valvola
solenoide non richiede impostazio-
ni diverse da quelle iniziali (0) .