
page 5 of 10
Oilbuner
Type Gulliver RG3D
GB
K:\framen\instrukt\Dantherm\RG\Engelsk\RG3D\RG3.fm-M3-021114-DM/lbk
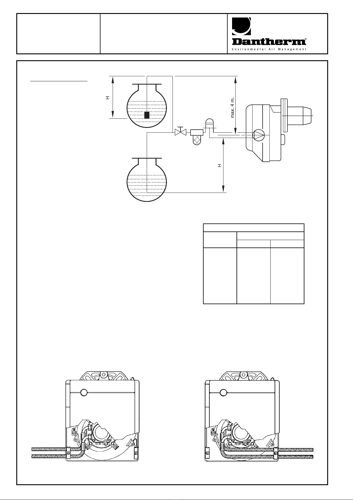
Assembling
Cables and control box
Electrical wiring:
El cable (min. 1 mm2) with 7-pin plug Wieland
plug on the burners control box. The control
box has intern 230 V/5 Amp. fuse (B). If the
fuse should be defect the oil burner will not
start eventhough you messure 230 V bet-
ween L1 and 0 in the 7-pin plug (check the fu-
se).
All internal components are connected via
plug to the control boxs print circuit board.
To remove the control box from the burner,
loosen screw (A, fig. 1) and pull to the arrow
direction, after removing all components, the
7 pin plug and earth wire.
Ignition transformator:
The ignition transformator is build in in the
control box. The ignition cables are con-
nected to the plug connector on the cover of
the control box.
Lock-out:
By lock-out the reset button on the control
box will turn on. The user can try to lock-in by
pushing on the reset button three times ma-
ximum.
If the red LED (3) lights up, call the service
agent. To restore normal operation, the aut-
horized service agent must move the control
box backwards, without disconnecting the
power supply, and press the reset tab (see
fig. 2) with an appropriate tool.
Led indication:
1: Green (fan)
2: Yellow (heater)
3: Reed (lock-out signal)
If the control box has to be changed
remember to remove the bridge “C”.