
This manual is essential part of the product and must be given to the end
user. Please read carefully the instructions described in this manual since
they give important information concerning the safety of installation, use and
maintenance
FEATURES
DEA 202E3 control panel has been planned for the automation of wing gates
with 230V monophase motors.It is extremely versatile, easy to install, and
fully respects the european regulations concerning electromagnetic compati-
bility and electrical safety,in particular DEA SYSTEM ensures the compliance
to the following european directives: 89/336/CEE, 73/23/CEE.
DEA SYSTEM anyway reminds that the choice, the disposition and the instal-
lation of all the materials and devices which compose the whole automation,
must be done in respect of local regulations for each country where the in-
stallation is made.
TECHNICAL FEATURE
Power Supply :230Vac +/- 10% 50Hz
Flashing light output :230Vac 50Hz max 40W
Auxiliary power supply output :24Vac max 200mA
Open gate warning light output :24Vac max 200mA
Electric lock output :12Vac max 15VA
Motors max power :2 X 500W
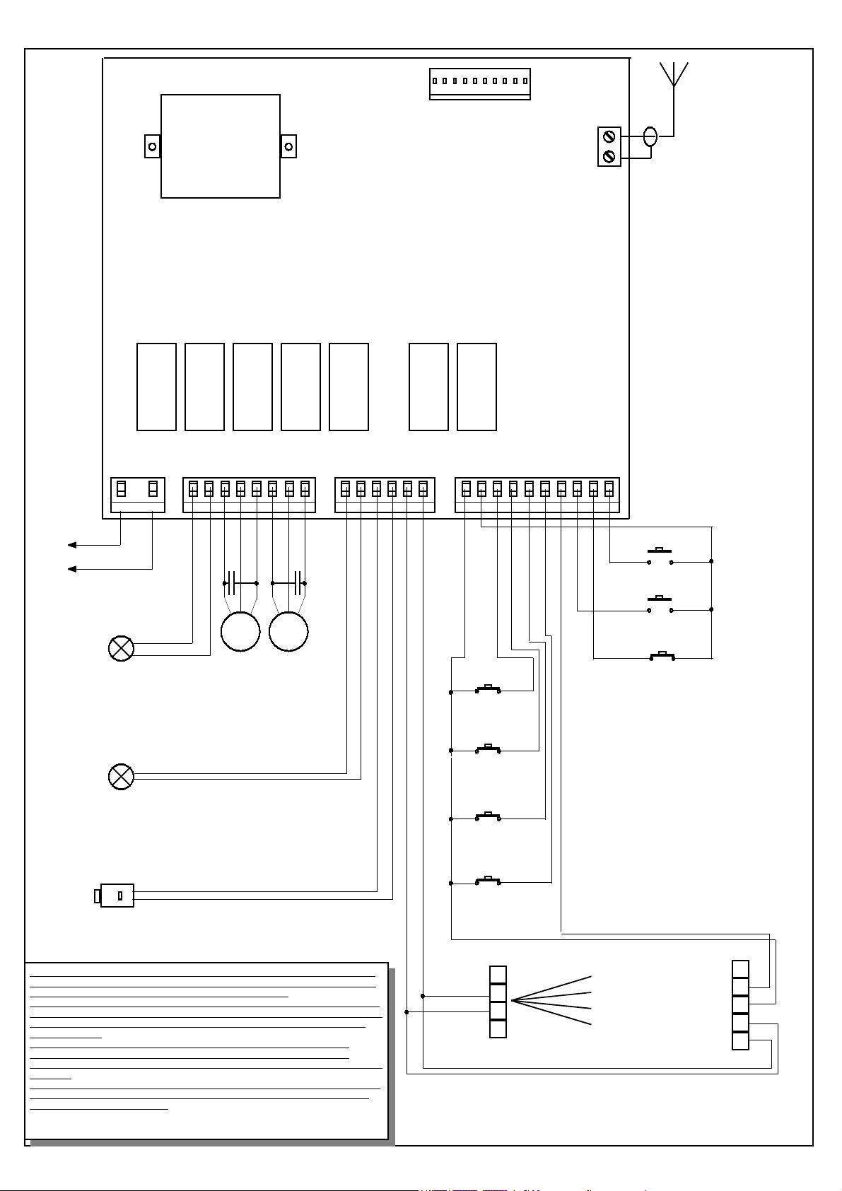
TERMINAL BOARDS CONNECTION:
(see fig.1 wiring diagram)
WARNING: operate only when power supply is disconnected
Keep 230V wires decisely separated from low voltage wires.
1-2: Power Supply 230Vac+/-10% 50 Hz (F = phase, N =neutral)
3-4 Flashing light output 230Vac 50 Hz
5-6-7 Motor 1 output (5=open, 6=close, 7=common)
8-9-10 Motor 2 output (8=open, 9=close, 10=common)
11-12 Open gate warning light output 24Vac max 200mA
13-14 Electric lock output 12Vac 15VA
15-16 Auxiliary power supply output 24Vac max 200mA
17-18 Common of the inputs
19 FCA1 opening limit switch input motor 1 (N.C.)
Stops the movement of motor 1 during opening
20 FCA2 opening limit switch input motor 2 (N.C.)
Stops the movement of motor 2 during opening
21 FCC1 closing limit switch input motor 1 (N.C.)
Stops the movement of motor 1 during closing
22 FCC2 closing limit switch input motor 2 (N.C.)
Stops the movement of motor 2 during closing
23 FOTO photocell input item.104/105 (N.C.)
During closing reverses the movement,during opening
(if active) stops the movement.
24 APRE open/close input (N.O.)
may work in step-by-step mode or inversion mode
25 STOP block input (N.C.)
Always stops the movement of both wings.
26 PED. Pedestrian opening input (N.O.)
causes the opening only of motor 1
WARNING:All unused N.C. must be short-circuited towards the common fo
the inputs.
27 Antenna ground
28 Antenna signal
J6 Radioreceiver plug
DIAGNOSTIC LEDS
202E3 control panel has a series of leds signalling the status of the inputs,
placed each one in front of its respective terminal.
In particular for the N.C. inputs (fca1, fca2, fcc1, fcc2, foto e blocco) the re-
spective leds are normally alight and they turn off when one of the above
inputs activates. N.O. inputs(open and pedestrian open) instead, leds are
normally off and turn on when one of the above mentioned inputs activates.
WORKING
TIMES ADJUSTMENT
TCA Pause time adjustment trimmer, for automatic closing.
TLAV Work time adjustment trimmer. Both motors stop,both in opening
and closing,after this time is passed.
In case limit switches are installed, work time have to be set for
some seconds more than the effective time, necessary for the travel
for the motors.
TSFAS Closing wing delay adjustment trimmer.
In opening the delay is fixed : 2 sec.
POWER ADJUSTMENT
202E3 has a device which allows the electrical adjustment of the power of
the motors by acting on the trimmers “spunto” and “forza”
SPUNTO It adjusts the starting torque at the beginning of the move-
ment,eliminating therefore eventual problems due to inertia
or mechanical friction. (turn clockwise to increase the power,
counterclockwise to decrease it)
FORZA It adjusts the power of the motor during the movement.
(turn clockwise to increase the power, counterclockwise to
decrease it)
It is anyway compulsory to respect carefully the power limit values specified
by local regulations, for the country where the installation is made, using
eventually the necessary safety devices.
DIP-SWITCHES FUNCTIONS
DIP1
OFF
ON “collectivity” function ON : does not accept open impulses
during opening and pause time
“collectivity” function OFF: accepts open impulses also du-
ring opening and pause time.
DIP2
OFF
ON
Ram blow ON: before opening, makes a short closing move-
ment (1 sec) to unlock eventual mechanical frictions.
Ram blow OFF
DIP3
OFF
ON “step-by-step” working program: open-stop-close-stop-open
“inversion”: working program : open-close-open-close
DIP4
OFF
ON Preflashing before the beginning of each cycle = 4 sec
Preflashing before the beginning of each cycle = 1 sec
DIP5
OFF
ON Photocell active also in opening : stops the movement of
both wings until the obstacle is removed
Photocell active only in closing : reverses the movement of
both wings.
DIP6 OFF
ON Automatic closing OFF. The gate, after opening, will close
only after receiving an open impulse
Automatic closing ON. The gate, after opening, will close
automatically after pause time adjusted by TLAV trimmer.
202E3