ADJUSTABLE PARAMETERS (Factory default settings are shown in bold italicised text)
Section Parameter Display shows Values
Input settings Low Oil Pressure warning Oil pressure pre-alarm 0-4bar (1.17bar)
Low Oil Pressure shutdown Oil pressure shutdown 0-4bar (1.03bar)
High Temperature warning Coolant temp pre-alarm 80-140°C (115°C)
High Temperature shutdown Coolant temp shutdown 80-140°C (120°C)
Low Temperature warning
Low Coolant temp 0-138°C (64°C)
Timers Mains transient delay Mains transient delay 0-30s (2s)
Generator transient delay Gen transient delay 0 -30s (0s)
Start delay Start delay 0 -10h (5s)
Return delay Return delay 0 -5h (30s)
Preheat Preheat 0 -5m (0s)
Crank attempt Cranking time 0 -60s (10s)
Crank rest Crank rest 0-60s (10s)
Safety delay Safety on 0-60s (10s)
Overspeed overshoot Overspeed overshoot 0-10s (2s)
Warming up Warm up 0-60m (0s)
Transfer delay Transfer delay 0-10m (0.7s)
Cooling run Cooling 0-60m (60s)
Fail to stop delay Fail to stop 0-2m (30s)
Low battery volts delay Battery low delay 0-24h (60s)
High battery volts delay Battery high delay 0-24h (60s)
Mains (utility) Mains Low Voltage Mains undervolt trip 50-360V ph-N (184V)
Mains High Voltage Mains overvolt trip 50-360V ph-N (276V)
Mains Low Frequency Mains underfreq trip 0-75Hz (45Hz)
Mains High Frequency Mains overfreq trip 0-75Hz (55Hz)
Generator Generator Under voltage shutdown Gen low voltage shutdown 50-360V ph-N (184V)
Generator Under voltage prealarm Gen low voltage prealarm 50-360V ph-N (196V)
Generator Over voltage prealarm Gen high voltage prealarm 50-360V ph-N (265V)
Generator Over voltage shutdown Gen high voltage shutdown 50-360V ph-N (276V)
Generator Under frequency shutdown Gen low frequency shutdown 0 -75Hz (40Hz)
Generator Under frequency prealarm Gen low frequency prealarm 0 -75Hz (42Hz)
Generator Over frequency prealarm Gen high frequency prealarm
0 -75Hz (57Hz)
Generator delayed overcurrent Delayed high current 100-200% (100%)
Engine Underspeed (RPM) shutdown Underspeed shutdown 0-6000RPM (1270)
Underspeed (RPM) warning Underspeed prealarm 0-6000RPM (1350)
Overspeed (RPM) warning Overspeed prealarm 0-6000RPM (1650)
Overspeed (RPM) shutdown Overspeed shutdown 0-6000RPM (1710)
Overspeed overshoot % Overspeed overshoot 0-10 (0%)
Low DC Voltage Battery low warning 0-40V (8V)
High DC Voltage Battery high warning 0-40V (33V)
Charge Alternator Failure Charge fail warning 0-39V (6V)
Display Language Language
ENGLISH
, OTHER
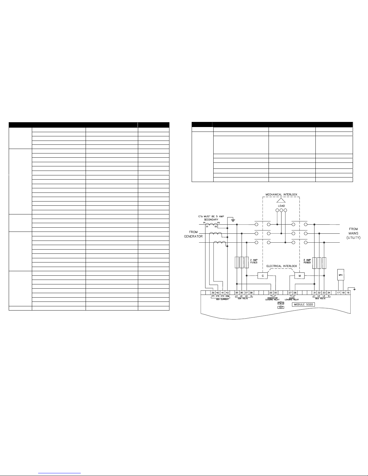
ALTERNATIVE AC WIRING
3 phase, 3 wire
For other AC systems please consult the
module operators manual
ADJUSTABLE PARAMETERS (continued)
Section Parameter Display shows Values
Application Engine speed selection Alternative Frequency Disable, Enable
Volts selection Alternative Voltage Disable, Enable
AC System AC System 3 phase 4 wire
Single phase, 2 wire
3 phase, 3 wire
2 phase 3 wire (L1 & L2)
2 phase 3 wire (L1 & L3)
Generator Full Load Generator full load 0-6000A(500A)
Droop control Droop Disable, Enable
Droop 0% (0%-5%)
Compatible en