
IT
Schiumatoio esterno MCX 300
Lo schiumatoio Multi Compact External è concepito per essere montato appeso direttamente all’esterno
dell’acquario o della sump e non richiede l’installazione di pompa supplementare per aumentare la resa. Lo
schiumatoio MCE 300 è adatto ad acquari fino a 320 litri (70 galloni UK / 84 galloni USA) se poco popolati e
250 litri (55 galloni UK / 66 galloni USA) per acquari normalmente popolati.
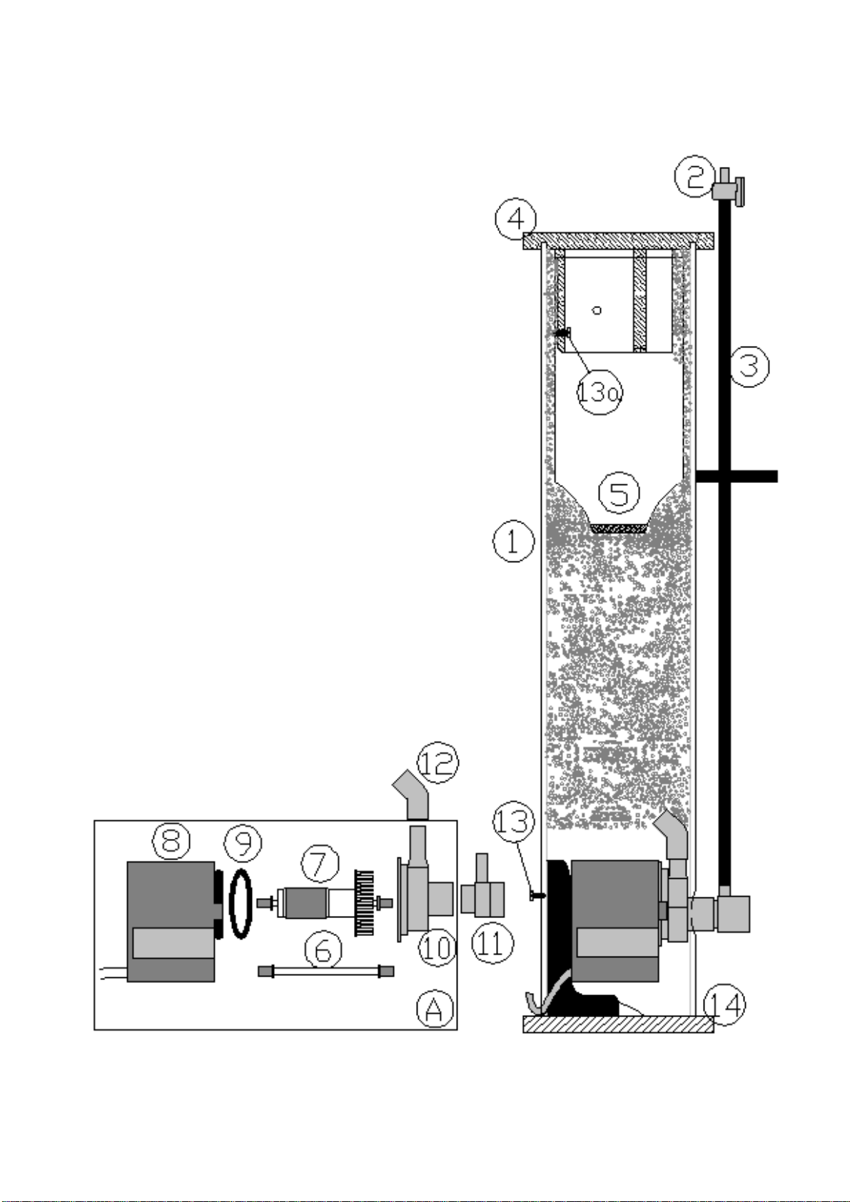
Funzionamento e impostazioni
Dopo poco il tubo di contatto (12) si riempirà di bolle d’aria finissime, fino a formare una schiuma densa che
viene spinta nel bicchiere dello schiumatoio. Attendere circa un giorno che lo schiumatoio si stabilizzi prima di
procedere alla regolazione fine. Si raccomanda di svuotare il bicchiere dello schiumatoio ogni 2-4 giorni o
quando necessario. Eliminare dal bicchiere e dalla parte superiore del tubo di contatto qualsiasi deposito di
grasso la cui formazione riduce notevolmente la resa dell’apparecchio. Durante la pulizia tenere la pompa
spenta per 10 minuti per permettere ai sali depositati nel venturi di dissolversi.
Tirando un poco il coperchio del bicchiere fuori dal bicchiere di raccolta , la schiuma risulterà più bagnata; al
contrario chiudendolo la schiuma sarà più asciutta. Si raccomanda di far funzionare lo schiumatoio con il
coperchio chiuso verso i punti di arresto. Infine regolare il rubinetto dell’aria a ore 2. Ogni volta che la pompa
viene spenta e riavviata, il rubinetto dell’aria deve essere chiuso per rimuovere l’aria dalla linea d’aspirazione.
Uso con ozono
Gli schiumatoi sono adatti all’uso con ozono. Il gas viene aspirato automaticamente mediante tubo
venturi. Si consiglia un volume massimo di 25 mg/h su volumi d’acquario adatti a questo schiumatoio. Non
esagerare con la quantità di ozono, in quanto il gas è pericoloso e può causare forti emicranie.
Manutenzione
Una volta tarati correttamente gli schiumatoi della gamma Deltec necessitano di poca manutenzione e
regolazione. Tuttavia, considerato l’elevato contenuto di calcio negli acquari marini, è normale che si formino
depositi calcarei sulle parti mobile e che sia quindi necessaria una regolare pulizia. Si raccomanda di
rimuovere la pompa dallo schiumatoio ogni 3 mesi o quando necessario.
Controllare e pulire la girante dai detriti. Assicurarsi che la girante ruoti sull’albero senza impedimenti,
altrimenti immergerla in una soluzione anticalcare.
La formazione di depositi di calcare, polvere e sali può ostruire o bloccare l’entrata dell’aria e ridurre la resa
dello schiumatoio. Controllare e rimuovere con attenzione tali depositi eventualmente servendosi di uno
stuzzicadenti o simile.
Si consiglia di fermare la pompa per circa 15 minuti una volta alla settimana per eliminare eventuali cristalli di
polvere e sale che si depositano nel raccordo d’entrata dell’aria.
Ricerca errori
Malfunzionamento Causa Soluzione
Rubinetto, tubo aria o venturi
bloccati pulizia
Tubo dell’aria schiacciato Ripristinare la posizione corretta del tubo
Ozonizzatore bloccato pulizia
La pompa non produce
sufficiente aria
Causate da additivi contenuti
in certi sali e dalle condizioni
dell’acqua
Usare un sale diverso o aumentare
l’alimentazione per un periodo, svuotare
frequentemente il bicchiere, aprire
completamente il rubinetto dell’aria.
Questa condizione può perdurare per
diverse settimane.
Bolle d’aria in eccesso
nell’acqua dell’acquario
Rubinetto dell’aria troppo
chiuso Aprire il rubinetto dell’aria
La pompa è rumorosa L’alberino di ceramica è
bloccato nel rotore
Pulire l’albero con soluzione anticalcare,
battendo leggermente l’estremità.
Riposizionare il cuscinetto.
Dati tecnici Dimensioni
(l/w/h) ca.
Consumo
energetico
flusso aria
fino a ca.
livello acqua
min. per
installazione
sump
dimensione
acquario
densità di
popol. normale
dimensione
acquario
densità di
popol. bassa
MCE 300 160x110x490
mm 9,5 Watt 120 litri 240 mm 250 litri 320 litri