
12-2020 dormakaba Canada Inc. RAC5 Lite Installation Guide – PK3736 | 1
Table of Contents
1 Introduction and Disclaimers ....................................................................... 3
1.1 Safety Procedures ................................................................................................ 4
2 Product Description ....................................................................................... 5
2.1 Features ............................................................................................................. 5
2.2 Components ....................................................................................................... 6
2.2.1 Controller Box .................................................................................................. 6
2.2.2 Contactless Card Reader .................................................................................... 7
2.2.3 Locking Devices ................................................................................................ 7
2.2.3 Optional Peripherals .......................................................................................... 7
3 Checklist and Exploded Views.....................................................................8
3.1 Parts and Tools List..............................................................................................8
3.1.1 RAC5 Lite Enclosure ...........................................................................................8
3.1.2 Cables (not shown) ...........................................................................................8
3.1.3 Card Reader(s).................................................................................................8
3.1.4 Locking Device .................................................................................................8
3.1.5 Power Adapter .................................................................................................8
3.1.6 Other Peripherals (optional) ................................................................................8
3.1.7 Programming Device ......................................................................................... 9
3.1.8 Installation Hardware Bag .................................................................................. 9
3.1.9 Tools Required (not supplied) ............................................................................... 9
3.2 Exploded View................................................................................................... 10
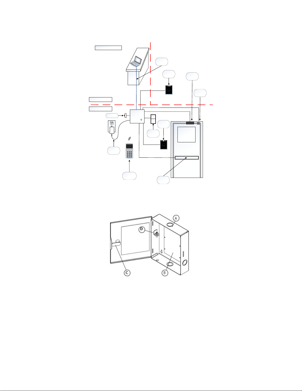
4 System Installation Overview ................................................................... 10
4.1 Pre-installation Procedures .................................................................................. 11
4.2 Installation and Wiring Procedures........................................................................12
4.2.1 Mount the Enclosure .........................................................................................12
4.2.2 Mount the Contactless Card Reader.....................................................................13
4.2.3 Connect Peripheral Wiring .................................................................................13
4.2.3.1 Electric Strike or Electromagnetic Lock (Locking Device) ...............................................14
4.2.3.2 Request to Exit Button (REX)..............................................................................14
4.2.3.3 Remote Unlock Button......................................................................................14