Elka P Series Bedienungsanleitung

Installation manual
Accessories
Laser scanner
for ELKA barriers
Translation of the original installation instructions
D-ID: V1_3 – 06.19

Installation manual Laser scanne
r
D-ID: V1_3 – 06.19 1
Index of contents
1Preface ............................................................................................................................ 2
1.1Symbol explanation .......................................................................................................... 3
1.2Copyright .......................................................................................................................... 3
2The use with P-series barriers ....................................................................................... 4
2.1P 2500-5000 (standard) with one laser scanner ............................................................... 4
2.2P 2500-5000 with two laser scanners ............................................................................... 6
3The use with ES-series barriers .................................................................................. 10
3.1ES 50-80 (standard) with one laser scanner................................................................... 10
3.2ES 50-80 with two laser scanners .................................................................................. 12
4Installation of the laser scanner into the pillar (article no. 819 000 300) ................. 14
5Installation of the laser scanner into the aluminum-housing (article no. 819
000 301) ......................................................................................................................... 16
6Cable protective tube ................................................................................................... 18

Installation manual Laser scanne
r
D-ID: V1_3 – 06.19 Changes can be made without further notification! 2
1 Preface
These operating instructions must be available on site at all times. It should be read thoroughly by all
persons who use, or service the appliances. Improper usage or servicing or ignoring the operating
instructions can be a source of danger for persons, or result in material damage. If the meaning of any
part of these instructions isn’t clear, then please contact ELKA-Torantriebe GmbH u. Co. Betriebs KG
(hereinafter called "ELKA")before you use the appliance.
This applies to all setup procedures, fault finding, disposal of material, care and servicing of the
appliance. The accident prevention regulations and applicable technical regulations (e.g. safety or
electrical) and environment protection regulations of the country in which the appliance is used also
apply.
All repairs on the appliances must be carried out by qualified persons. ELKA accepts no liability for
damage which is caused by using the appliance for purposes other than those for which it is built.
ELKA cannot recognise every possible source of danger in advance. If the appliance is used other than
in the recommended manner, the user must ascertain that no danger for himself or others will result
from this use. He must also ascertain that the planned use will have no detrimental effect on the
appliance itself. The appliance should only be used when all safety equipment is available and in
working order. All faults which could be a source of danger to the user or to third persons must be
eliminated immediately. All warning and safety notices on the appliances must be kept legible.
All electrical periphery equipment which is connected to the appliance must have a CE Mark, which
ensures that it conforms to the relevant EEC regulations. Neither mechanical nor electrical alterations
to the appliance, without explicit agreement of the manufacturer, are allowed. All alterations or
extensions to the appliance must be carried out with parts which ELKA have defined as suitable for
such alterations, and be carried out by qualified personnel. Please note that with any alteration of the
product, no matter whether mechanical or electrical, the warranty expires and the conformity is
revoked. Only the use of ELKA accessories and original ELKA spare parts is allowed. In case of any
contravention ELKA disclaims liability of any kind.
INFORMATION!
The operation of the system within CEN countries must also be conformant with the European safety-
relevant directives and standards.
We reserve the right to make technical improvements without prior notice.

Installation manual Laser scanne
r
D-ID: V1_3 – 06.19 Changes can be made without further notification! 3
1.1 Symbol explanation
WARNING!
Remarks regarding the safety of persons and the gate opener itself are marked by special
symbols. These remarks have to be absolutely observed in order to avoid accidents and
material damage.
DANGER!
…points to an imminent dangerous situation, which can cause death or serious injuries if it is
not avoided.
WARNING!
…points to a potentially dangerous situation, which can cause death or serious injuries if it is
not avoided.
ATTENTION!
…points to a potentially dangerous situation, which can cause minor or slight injuries if it is not
avoided.
ATTENTION!
…points to a potentially dangerous situation, which can cause property damage if it is not
avoided.
REMARK!
Important notice for installation or functioning.
1.2 Copyright
The operating manual and the contained text, drawings, pictures, and other depictions are protected by
copyright. Reproduction of any kind – even in extracts – as well as the utilization and/or communication
of the content without written release certificate are prohibited. Violators will be held liable for damages.
We reserve the right to make further claims.

Installation manual Laser scanne
r
D-ID: V1_3 – 06.19 Changes can be made without further notification! 4
2 The use with P-series barriers
2.1 P 2500-5000 (standard) with one laser scanner
If, in accordance with DIN EN 12453, a protection with an electro-sensitive protective devise for
presence detection is required for this barrier type (Device E), at least one laser scanner must be
installed.
When the safety field of the sensor is the protection against vehicle collision with the boom, the
reference (reflector) must be installed (according to DIN EN 12453, Device E). See also instructions
“laser scanner LZR-H100".
Drawing 1
Corresponds to: Remark:
A Scanner A
X Field dimension X = max. 9.9m
Y Field dimension Y = max. 9.9m
1 Safety field Scanner A
2 Opening field Scanner A
S Safety area At least 200mm to barrier boom
H Mounting height (see note below)
Table 1
The mounting height H depends on the demands that are required by DIN EN 12453 (Device E).
When mounting the laser scanner, ensure the correct positioning inside of the additional housing. The
viewing window and the detection field of the laser scanner must not be reduced by using the
additional housing or any other (on-site) covers.

Installation manual Laser scanne
r
D-ID: V1_3 – 06.19 Changes can be made without further notification! 5
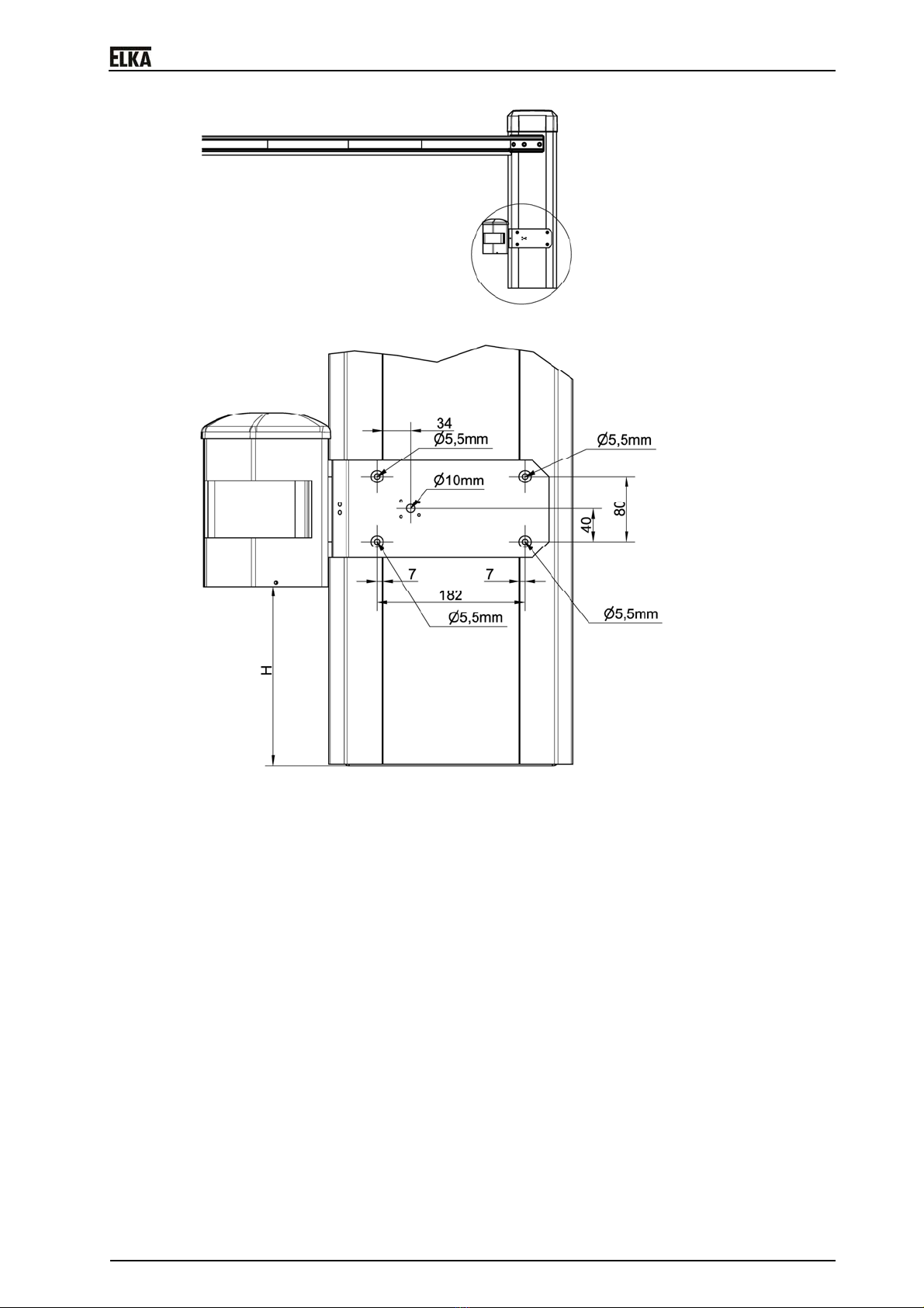
Mounting bracket laser scanner A:
Drawing 2

Installation manual Laser scanne
r
D-ID: V1_3 – 06.19 Changes can be made without further notification! 6
2.2 P 2500-5000 with two laser scanners
If, in accordance with DIN EN 12453, a protection with an electro-sensitive protective devise for
presence detection is required for this barrier type (Device E), at least one laser scanner must be
installed.
When using swinging supports, folding skirts or folding top and bottom skirts, at least two laser
scanners must be mounted to ensure the safety of this barrier type.
When the safety field of the sensor is the protection against vehicle collision with the boom, the
reference (reflector) must be installed (according to DIN EN 12453, Device E). See also instructions
“laser scanner LZR-H100".
Drawing 3
Corresponds to: Remark:
A Scanner A
B Scanner B
X Field dimension X = max. 9.9m
Y Field dimension Y = max. 9.9m
1 Safety field Scanner B
2 Opening field Scanner B
3 Safety field Scanner A
4 Opening field Scanner A
S Safety area Max. 200mm to barrier boom
H Mounting height (see note below)
Table 2
The mounting height H depends on the demands that are required by DIN EN 12453 (Device E).

Installation manual Laser scanne
r
D-ID: V1_3 – 06.19 Changes can be made without further notification! 7
When mounting the laser scanner, ensure the correct positioning inside of the additional housing. The
viewing window and the detection field of the laser scanner must not be reduced by using the
additional housing or any other (on-site) covers.

Installation manual Laser scanne
r
D-ID: V1_3 – 06.19 Changes can be made without further notification! 8
Mounting bracket laser scanner A:
Drawing 4

Installation manual Laser scanne
r
D-ID: V1_3 – 06.19 Changes can be made without further notification! 9
Door installation laser scanner B:
Drawing 5
Dieses Handbuch passt für folgende Modelle
1
Inhaltsverzeichnis

















