Endres Soliphant T FTM20 Bedienungsanleitung

Poziom Przep³yw Temperatura Analiza
cieczy
Rejestracja Komponenty
systemów
Us³ugi Rozwi¹zania
Ciœnienie
KA227F/00/a6/09.04
52022842
Instrukcja obsługi
Soliphant T FTM20, FTM21
de - Füllstandgrenzschalter
en - Level Limit Switch
fr - Détecteur de niveau
es - Detector de nivel
it - Interruttore di livello
pl - Sygnalizator poziomu
materiałów sypkich i kruszyw

2Endress+Hauser
de - Inhalt
Sicherheitshinweise 4
Behandlung 6
Geräte-Identifikation 8
Verwendung 12
Messeinrichtung 13
Einbau 14
Einstellungen
18
Lichtsignale 20
Anschluss
21
Wartung 26
Technische Daten 27
Schiebemuffen 28
Fehlersuche 30
Ersatzteile 36
Ergänzende Dokumentation 37
"Achtung!
= verboten;
führt zu fehlerhaftem Betrieb
oder Zerstörung.
en - Contents
Notes on Safety 4
Handling 6
Device Identification 8
Application 12
Measuring system
13
Installation 14
Setting- up
18
Light signals 20
Connections 21
Maintenance 26
Technical Data 27
Sliding sleeves 28
Trouble-shooting 31
Spare parts 36
Supplementary Documentation 37
"Caution!
= forbidden;
leads to incorrect
operation or destruction.
fr - Sommaire
Conseils de sécurité 4
Manipulation 6
Dénomination
8
Utilisation 12
Ensemble de détection
de niveau 13
Montage 14
Réglage 18
Signaux lumineux 20
Raccordement 21
Maintenance 26
Caractéristiques techniques 27
Manchons coulissants 28
Recherche de défauts 32
Pièces de rechange 36
Documentation
complémentaire 37
"Attention!
= interdit; peut provoquer
des dysfonctionnements
ou la destruction.

Endress+ Hauser 3
es - Indice
Notas sobre seguridad 5
Modo de empleo 6
Identificación del equipo
8
Aplicación 12
Sistema de medida 13
Montaje 14
Ajuste 18
Señales luminosas 20
Conexiones 21
Mantenimiento 26
Datos técnicos 27
Manguitos deslizantes 28
Identificación de fallos 33
Repuestos 36
Documentación suplementaria 37
"Atención!
= Prohibido; peligro
de mal funcionamiento
o de destrucción.
it - Indice
Note sulla sicurezza 5
Accorgimenti 6
Identificazione dello strumento
8
Applicazione 12
Sistema di misura 13
Montaggio 14
Messa in servizio
18
Segnali luminosi 20
Collegamenti elettrici 21
Manutenzione 26
Dati tecnici 27
Manicotto scorrevole 28
Individuazione e eliminazione
delle anomalie 34
Ricambi 36
Documentazione
supplementare 37
"Attenzione!
= Vietato;
pericolo
di malfunzionamento
o di distruzione.
pl - Spis treści
Uwagi dotyczące bezpieczeństwa 5
Postępowanie z przyrządem 6
Identyfikacja urządzenia 8
Sposób montażu12
Układ pomiarowy
13
Sygnalizacja poziomu 14
Konfiguracja pracy 18
Sygnalizacja LED 20
Podłączenie elektryczne 21
Konserwacja 26
Dane techniczne
27
Tuleja przesuwna 28
Lokalizacja i usuwanie usterek 35
Cześci zamienne 36
Dokumentacja dodatkowa 37
"Uwaga!
= czynność zabroniona; może
prowadzićdo wadliwej pracy
lub uszkodzenia przyrządu

4Endress+Hauser
de - Sicherheitshinweise
Der Soliphant T FTM20, FTM21
ist ein Füllstandgrenzschalter für
fein- bis grobkörnige Schüttgüter.
Bei unsachgemäßem Einsatz
können Gefahren von ihm
ausgehen.
Das Gerät darf
nur von
qualifiziertem und
autorisiertem Fachpersonal
unter strenger Beachtung dieser
Betriebsanleitung,
der einschlägigen Normen,
der gesetzlichen Vorschriften
und der Zertifikate
(je nach Anwendung)
eingebaut, angeschlossen,
in Betrieb genommen und
gewartet werden.
In der Gebäudeinstallation ist ein
Netzschalter für das Gerät leicht
erreichbar in dessen Nähe zu
installieren.
Er ist als Trennvorrichtung für das
Gerät zu kennzeichnen.
en - Notes on Safety
The Soliphant T FTM20, FTM21 is
a level limit switch for fine to
coarse-grained bulk solids.
If used incorrectly it is possible that
application-related dangers may
arise.
The level limit switch may be
installed, connected,
commissioned, operated and
maintained
by qualified and
authorised personnel only
,
under strict observance of these
operating instructions,
any relevant standards,
legal requirements, and, where
appropriate, the certificate.
Install an easily accessible power
switch in the proximity of the
device.
Mark the power switch as a
disconnector for the device.
fr - Conseils de sécurité
Le Soliphant T FTM20, FTM21
est un détecteur de niveau pour
produits solides en vrac de faible
à
grosse
granulométrie.
Il peut être source de danger en cas
d’utilisation non conforme aux
prescriptions.
L’appareil ne doit être installé,
raccordé, mis en service et
entretenu
que par un personnel
qualifié et autorisé
, qui tiendra
compte des indications contenues
dans la présente mise en service,
des normes en vigueur et des
certificats disponibles
(selon l’application).
Installer un commutateur réseau à
proximité immédiate de l’appareil,
en veillant à ce qu’il soit facilement
accessible.
Marquer ce commutateur comme
prise de coupure de l’appareil.

Endress+ Hauser 5
es - Notas sobre seguridad
El Soliphant T FTM20, FTM21
sólo se puede usar como detector
de nivel límite con sólidos finos y
sólidos granulados.
Su empleo inapropiado puede
resultar peligroso.
El equipo deberá ser montado,
conectado, instalado y mantenido
única y exclusivamente por
personal cualificado y
autorizado
, bajo rigurosa
observación de las presentes
instrucciones de servicio,
de las normativas y
legislaciones vigentes,
así como de los certificados
(dependiendo de la aplicación).
Instalar un interruptor de fácil
acceso en las proximidades del
equipo.
Identificar el interruptor como
desconectador del equipo.
it - Note sulla sicurezza
Il sensore Soliphant T FTM20,
FTM21 può essere usato solamente
come interruttore di livello per
materiali solidi di grandezza
da
medio fine a grezza
.
Un'installazione non corretta può
determinare pericolo.
Lo strumento può essere montato
solamente da personale
qualificato ed autorizzato
.
La messa in
esercizio e la
manutenzione
devono rispettare le
indicazioni di collegamento,
le norme e i certificati di
seguito riportati.
Installare un interruttore per
l'alimentazione in prossimità del
dispositivo.
Marcare l'interuttore come
disconnessione del dispositivo.
pl - Uwagi dotyczące
bezpieczeństwa
Soliphant T FTM20, FTM21
jest sygnalizatorem poziomu
materiałów sypkich drobno-
i gruboziarnistych.
W przypadku nieprawidłowego
użycia mogąpowstaćzagrożenia
związane z konkretnym
zastosowaniem.
Sygnalizator poziomu może być
instalowany, podłączany,
oddawany do użytku, obsługiwany
i konserwowany
wyłącznie przez
wykwalifikowany
i upoważniony personel
.
Należy ściśle przestrzegać
instrukcji obsługi oraz
obowiązujących norm i wymogów
prawnych, jak równieżograniczeń
opisanych w certyfikatach
przyrządu.
W bezpośredniej bliskości
urządzenia należy zainstalować
łatwodostępny wyłącznik zasilania
i wyraźnie go oznaczyć.

6Endress+Hauser
de - Behandlung
Am Gehäuse, Flansch oder
Verlängerungsrohr anfassen.
en - Handling
Hold by housing, flange or
extension tube.
fr - Manipulation
Tenir par le boîtier, la bride ou
le tube prolongateur.
es - Modo de empleo
Coger por el cabezal, brida o
tubo de extensión.
it - Accorgimenti
Afferrare la custodia, per la flangia
o per il tubo di estensione.
pl - Postępowanie z przyrządem
Trzymaćza obudowę,
gwint lub ruręwydłużającą.

Endress+ Hauser 7
de -
Nicht
verbiegen
Nicht
kürzen
Nicht
verlängern
en -
Do
not
bend
Do
not
shorten
Do
not
lengthen
fr -
Ne pas
déformer
Ne pas
raccourcir
Ne pas
rallonger
es -
No
torcer
No
acortar
No
alargar
it -
Non
stringere o allargare
Non
accorciare o allungare
Non
piegare
pl -
Nie
zginać
Nie
skracać
Nie
wydłużać

8Endress+Hauser
de - Geräte-Identifikation
en - Device Identification
fr - Dénomination
es - Identificación del equipo
it - Identificazione dello
strumento
pl - Identyfikacja urządzenia
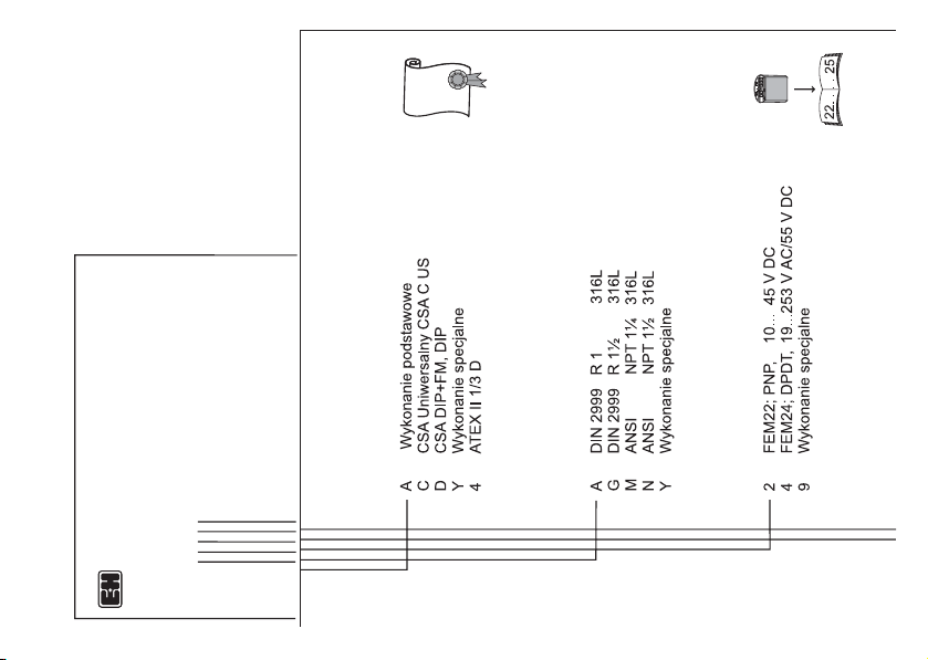
ENDRESS+HAUSER
Soliphant T
FTM20–#####
Kod zamówieniowy

Endress+ Hauser 9

10 Endress+Hauser
ENDRESS+HAUSER
Soliphant T
FTM21–######
Kod zamówieniowy
L
Dieses Handbuch passt für folgende Modelle
1
Inhaltsverzeichnis

















