
TECHNICAL MANUAL SOLAR BOX
4
INDEX
1. SYMBOLS...........................................................................................................................5
2. PRE- INSTALLATION ....................................................................................................5
3. SAFETY ..............................................................................................................................5
4. OPERATING PRINCIPLE ..............................................................................................6
5. COMPONENTS.................................................................................................................6
6. TECHNICAL FEATURES ...............................................................................................7
7. ASSEMBLY SCHEME......................................................................................................7
8. ASSEMBLY SCHEME......................................................................................................8
8.1 Thermodynamic solar panel................................................................................8
8.2 Solar Box....................................................................................................................8
9. PLACING EQUIPMENT..................................................................................................8
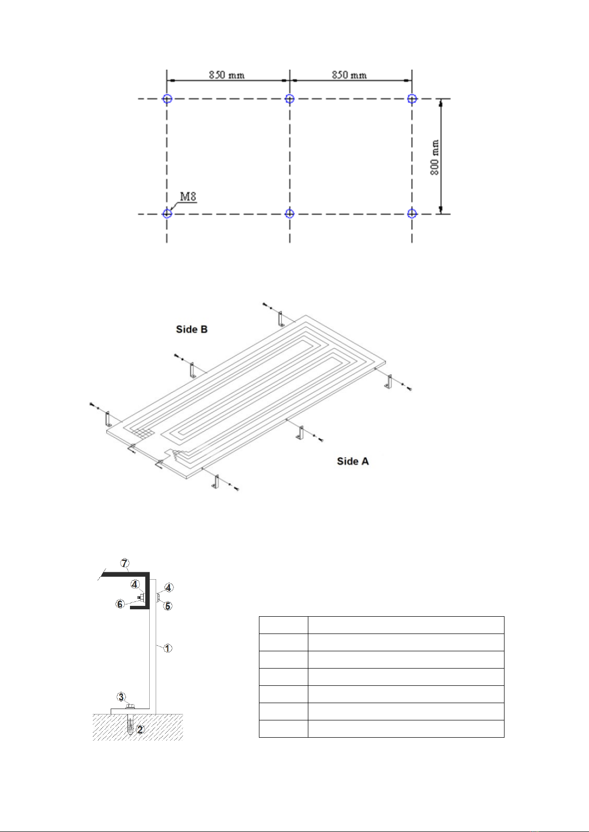
9.1 Thermodynamic solar panel................................................................................8
9.2 Fixing Solar Box on horizontal surface .........................................................10
9.3 Refrigerant connections – Thermodynamic panel (1 panel) ..................10
9.4 Refrigerant connections – Thermodynamic panel (2 panels) ............... 12
9.5 Refrigerant connections – Solar Box.............................................................. 13
10. NITROGEN LOADING.............................................................................................. 14
11. VACUUM ...................................................................................................................... 14
12. WATER QUALITY ..................................................................................................... 15
13. HYDRAULIC CONNECTIONS................................................................................ 15
13.1 Vented installation................................................................................................ 16
13.2 Tank with two connections ............................................................................... 16
13.3 Tank with more than two connections.......................................................... 17
13.4 Tank with backup connections ........................................................................ 17
14. FILTER .......................................................................................................................... 18
15. AIR PURGE.................................................................................................................. 18
16. ELECTRICAL CONNECTIONS .............................................................................. 19
17. ELECTRONIC CONTROLLER............................................................................... 20
18. INSTALLER MENU ................................................................................................... 22
19. WIRING DIAGRAM.................................................................................................. 23
20. TROUBLE SHOOTING ............................................................................................ 23
21. ERRORS ...................................................................................................................... 25
22. WARRANTY............................................................................................................... 26