
CONTENTS
Part 1. INDOOR UNIT...........................................................................1
1. Specifications................................................................................................2
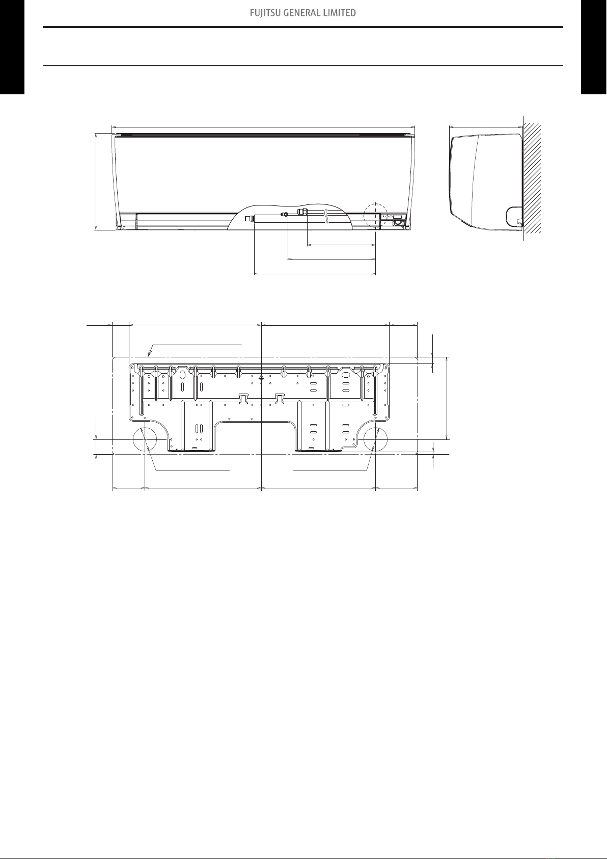
2. Dimensions....................................................................................................3
2-1. Models: ASBG09CMBA and ASBG12CMBA...................................................................3
3. Wiring diagrams ............................................................................................5
3-1. Models: ASBG09CMBA and ASBG12CMBA...................................................................5
4. Capacity table................................................................................................6
4-1. Cooling capacity...............................................................................................................6
5. Fan performance ...........................................................................................7
5-1. Air velocity distributions....................................................................................................7
5-2. Airflow ..............................................................................................................................9
6. Operation noise (sound pressure).............................................................10
6-1. Noise level curve............................................................................................................10
6-2. Sound level check point .................................................................................................11
7. Safety devices .............................................................................................12
8. External input and output...........................................................................13
8-1. External input.................................................................................................................13
8-2. External output...............................................................................................................15
9. Group connection .......................................................................................17
9-1. Precautions on creating a group connection..................................................................17
9-2. Remote controller address setting procedure for wireless remote controllers................18
10. Remote controller .......................................................................................19
10-1.Wireless remote controller ............................................................................................19
11. Function settings .......................................................................................21
11-1.Function settings by using remote controller.................................................................21
11-2.Custom code setting for wireless remote controller.......................................................25
12. Accessories.................................................................................................26
12-1.Models: ASBG09CMBA and ASBG12CMBA................................................................26
13. Optional parts .............................................................................................27
13-1.Controllers ....................................................................................................................27
13-2.Others ...........................................................................................................................28