
3. TECHNICAL PARAMETERS
Supply voltage MDP-4(8,16).(-,B,Z,ZB) - 230V~,50Hz (admissible variations +10%,-14% )
MDP-4(8,16).(A,ZA) - 12V= ( admissible: 11.5V - 14.0V)
Power consumption MDP-...(-,B,Z,ZB): max. 65W, MDP-...(A, ZA): max. 55W
Operating temperature
0°C to 40°C constantly permissible,
+5°C to 35°Crecommended optimal; from -5°C to 45°Ctemporarily permissible (<2h/8h, with front
board’s cover closed)
Storage temperature 5°C to 35°C , recommended for the period of > 4 weeks; -10°C to 45°C(short-term)
Number of measuring channels 4for MDP-4…, 8for MDP-8... ; 16 for MDP-16...
Communication with the
detector
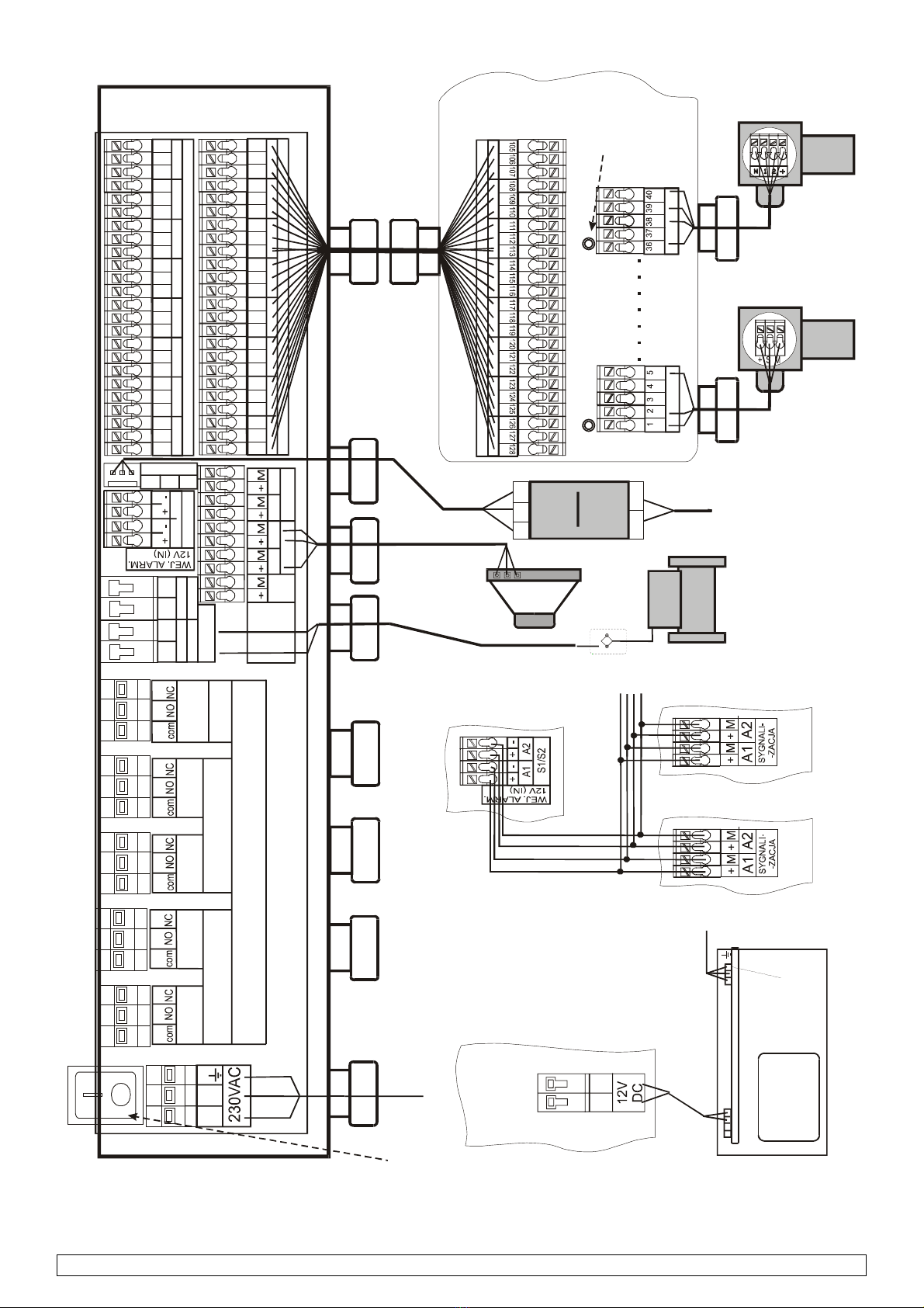
measuring detector - three-lead line, 4-20mA
threshold detector - four-lead line, alarm thresholds A1 and A2
Accuracy no more than ± 2% FS
Alarm levels for DEX/P, DG/P
tree: warning - ALARM 1 ( A1 ) – set of 4-20mA (0-100%) or
- TWA ( T1 ) – time-weighted average - 8h/day
alarm - ALARM 2 ( A2 ) – set of 4-20mA (0-100%) or
- STEL ( T2 ) – short term exposure limit - 15 minutes
exceeded range - ALARM 3 ( A3 ) – fixed to the value of 20 mA (100%) (only manual cleared,
cuts off the power detector with a catalytic sensor)
Alarm levels for treshold
detectors DEX/F, DG/F
two: warning - ALARM 1 ( A1 )
alarm / shut-off - ALARM 2 ( A2 )
tree: warning - ALARM 1 ( A1 ) – set of 4-20mA (0-100%)
Failure levels for detector’s
signal
two: opening of signal line - ( S) for I<2mA
shorting of signal line - ( Pr ) for I>25mA
Alarm memory
for each channel and each level - optical (individual message on LCD + cumulative LED light,
cumulative acoustic);
memory of output signals of every level - optical
Unit reset with the button located on the front board (access after lifting up the cover)
Event memory internal, non-erasable, 1,600 events (alarms, emergencies, configurations)
Signal blocking
Output: default 1 min., adjustment: 1÷20 min (pre-heating of sensors)
input: default 10 sec., adjustment: 3 ÷120 sec. (delay of inputs);
output: default 10 sec., adjustment: 3 ÷120 sec. (delay of switching the inputs on)
input: zone 1 and 2: by default 3 sec., adjustment 3 sec.÷15 min
(independent of delay of outputs of zones 1 and 2)
Optical indication of the
measurement results
graphical LCD display (messages for each detector and output)
displays the current values of the signal measurement of each detector scaled in selected
concentration units:% FS,% LEL, ppm or mA
Acoustic signalling
Internal piezoceramic speaker: volume ca. 60dB/1m;
interrupted tone - signalling of finished alarm,
continuous tone - indication of the ongoing alarm or emergency;
(optional: without sound signalling = “SILENT MODE" activated from the menu)
Supplying detectors 9V=, protection against shorting and exceeding the current of 200mA,
switching on detectors’ power - with software via the keyboard software (available from the menu)
Signalling of failure yellow LED light, messages on graphical display
Signalling of switching the
detector on message on the graphical display individually for each detector
Quick triggering of input
signals
with buttons on front board, successive release of each contact and voltage outputs of the unit
(available from user menu)
Switching outputs off
default: automatic - emergency state erased after decay of alarm source with the delay from 3
sec. to 15 min. (Alarm’s memory on LCD),
option: manually - alarm’s status on output is maintained after decay of alarm’s source until the
moment of manual reset (via the keyboard with the “OK” button)
Unit supply control LED light, green, also indicates the pre-heating MDP
Digital output
RS-232 serial port: ASCI printer mode or a Modbus/RTU protocol,
parameters: 9600/19200bps,8,N/P,2/1; selection from the menu; terminal connector;
optional: connecting conduit RS232, RS-232 to RS-485 converter; software used for readout of
events from MDP memory (Windows 98, XP);
Relay outputs
shorting and opening for A1, A2 and FAULT, volt-free;
rating: ≤4A (at resistance load) or ≤2A (at inductive load) or ≤0.6A (with only inductive load -
fluorescent lamps); max. 230V~ or 24V=
Alarm outputs
12V=, not stabilized, for A1 and A2 states independently, load = max. 0.2 A, for connection of
SL-21, SL-31, S-3, LD-2 signalling devices
impulse, high-current for control of shut-off valves, only A2
12V= constant, not stabilized, for supplying MDX unit or other devices, max. load of 0.2 A
Alarm inputs
voltage 12V= (5-16V, max. 20mA) for A1, A2;
quick-break, galvanically separated from other MDP circuits;
for cascade connection of units or other devices
Overload
Protection
primary 230V~ or 12V= power circuit fuse; automatically reset fuses with limitation of shorting
current of NAP.12V outputs; electronic fuses with limitation of current of each detector; additional
system and program protection
Dimensions/weight 300 x 330 x 150 mm, (height, width, depth in assembly position); ca. 3.6 kg
Housing ABS, IP54, 9 gland ducts, 3-point mounting
MDP-4(8,16)… Instruction Manual edition 6PU63en ©gazex’2011 v1101 Page 7 / 24