FITTING AND OPERATING
TD_MX341 GB_11.06_03
Barnack Road • Stamford • Lincolnshire • PE9 2NB
© 2006
STABILITY ADJUSTMENT
The AVR includes a stability or damping circuit to
provide good steady state and transient performance of
the generator.
The correct setting can be found by running the
generator at no load and slowly turning the stability
control anti-clockwise until the generator voltage starts
to become unstable.
The optimum or critically damped position is slightly
clockwise from this point (i.e. where the machine volts
are stable but close to the unstable region).
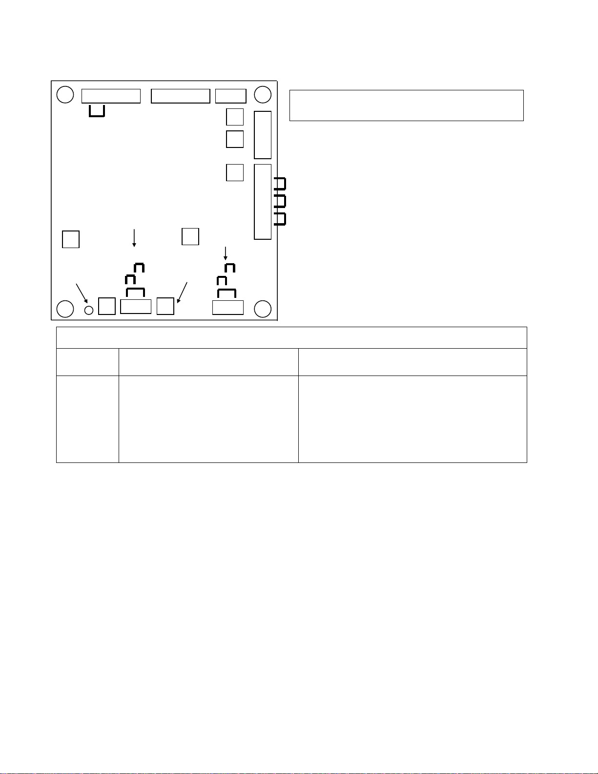
OPTIMUM RESPONSE SELECTION
The stability selection ‘jumper’ should be correctly
linked, A-B, B-C or A-C at the bottom of the board for
the frame size of the generator, (see drawing).
UNDER FREQUENCY ROLL OFF (UFRO)
ADJUSTMENT
The AVR incorporates an underspeed protection circuit
which gives a volts/Hz characteristic when the
generator speed falls below a presettable threshold
known as the "knee" point.
The red Light Emitting Diode (LED) gives indication that
the UFRO circuit is operating.
The UFRO adjustment is preset and sealed and only
requires the selection of 50 / 60Hz, 4 pole / 6pole using
the jumper link (see diagram). Adjustment of the UFRO
potentiometer will only be necessary if the AVR is being
fitted to a 6 pole generator to replace an AVR of an
earlier type.
For optimum setting, the LED should illuminate as the
frequency falls just below nominal, i.e. 47Hz on a 50Hz
system or 57Hz on a 60Hz system.
DROOP ADJUSTMENT
Generators intended for parallel operation are fitted with
a quadrature droop C.T. which provides a power factor
dependent signal for the AVR. The C.T. is connected to
S1, S2 on the AVR.
The DROOP adjustment is normally preset in the works
to give 5% voltage droop at full load zero power factor.
Clockwise increases the amount of C.T. signal injected
into the AVR and increases the droop with lagging
power factor (cos Ø). With the control fully anti-
clockwise there is no droop.
TRIM ADJUSTMENT
An analogue input (A1 A2) is provided to connect to a
STAMFORD Power Factor Controller or other devices.
It is designed to accept dc signals up to +/- 5 volts.
CAUTION! Any devices connected to this input must be
fully floating and galvanically isolated from ground, with
an insulation capability of 500 Vac. Failure to observe
this could result in equipment damage.
The dc signal applied to this input adds to the AVR
sensing circuit. A1 is connected to the AVR 0 volts.
Positive on A2 increases excitation. Negative on A2
decreases excitation.
The TRIM control allows the user to adjust the
sensitivity of the input. With TRIM fully anti-clockwise
the externally applied signal has no effect. Clockwise it
has maximum effect.
Normal setting is fully clockwise when used with a
STAMFORD Power Factor Controller.
DIP ADJUSTMENT
The DIP adjustment allows some control over the
generator voltage dip upon the application of load. This
feature is mostly used, when the generator is coupled to
turbo charged engines with limited block load
acceptance and operates only when the speed is below
the UFRO knee point, (LED illuminated).
With the DIP potentiometer fully anticlockwise, the
generator voltage characteristics will follow the normal
V/Hz line as the speed falls below nominal. Turning the
DIP potentiometer more clockwise increases the V/Hz
slope, providing a greater voltage dip and aiding engine
recovery. The DIP potentiometer can be set at any
desired position to suit a particular engine type.
OVER EXCITATION (EXC TRIP) ADJUSTMENT
The adjustment is set and sealed in the works and
should not be altered.
An over excitation condition is indicated on the common
LED which also indicates under speed running.
The generator must be stopped to reset an over
excitation condition.