
7
www.generallters.com
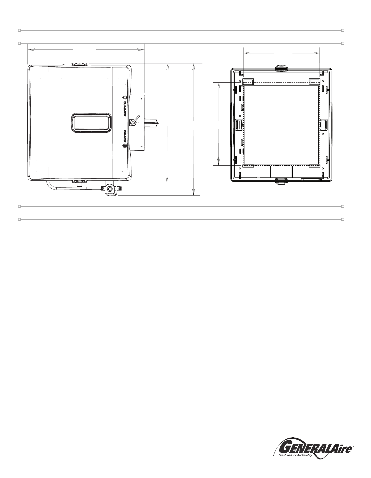
Model 570 Humidier Installation Manual
•The operating principle of the humidier is based on the most efcient and economical means of evaporating
water to the air. The humidier uses only 2.5 watts of electrical power during operation; the heat necessary
for evaporating water is produced by the furnace.
•The water supply to the humidier is controlled by the electric solenoid valve. The humidistat connected in
series with the solenoid provides low voltage control of the humidier. The humidistat is designed for wall
mounting in the living area or surface mounting on the return air duct.
• CAUTION: Do not set relative humidity too high during cold weather.
Excessive humidity may cause condensation on windows or in walls.
Refer to recommended settings as described in the humidistat owners
manual.
•Water ows through a strainer, is metered through an orice to provide
the proper amount of water, and is supplied to the evaporator pad by
the distributor trough. Approximately 200 CFM of air is by-passed
from the warm air plenum through the humidier and returned to the
cold air plenum. Moisture is evaporated to the air passing through the
evaporator pad. Minerals are not blown into the air stream as occurs in
atomizing humidiers; they are left on the evaporator pad where a high
percentage is carried off with the waste water.
•When the humidier is installed and operating, no adjustments are
necessary other than setting the control knob on the humidistat to the desired level of humidication. Leave
knob on the humidier pointing towards the "WINTER" position. To turn the humidier off, close water supply
valve, switch electrical power off and turn humidistat off. If furnace is used for summer cooling or ventilating
set air damper to the "SUMMER" position.
How The Humidifier Works
At Outside
Temperature
Recommended
Setting
-20°F -29°C 15%
-10°F -23°C 20%
0°F -18°F 25%
+10°F -12°C 30%
+20°F -7°C 35%
+30°F -1°C 40%
!
7E-7H Manual Humidistat
7E - To furnace control board 24V
7F - To constant power using 24V transformer and pressure switch
7G - To furnace control board 115V with 24V transformer
7H - To constant power using 24V relay and current sensing relay
Maintenance
Your humidier is engineered to give helpful and trouble-free humidication. For maximum efciency the
following cleaning procedures should be carried out at the end of each heating season:
1. Turn off the water supply and electrical power to the humidier.
2. Remove water cover, distributor trough, evaporator pad and drain pan. Clean excessive mineral deposits
from the distributor trough, drain pan, pad rails, and humidier cabinet. A solution of 1/2 vinegar & 1/2
water will help loosen mineral deposits.
3. Replace humidier evaporator pad if necessary (P/N GA10). Install trough and drain pan.
Replace cover. Replace evaporator pad yearly for peak performance.
4. In heavy mineral areas or if the solenoid valve fails to function disconnect the 1/4” water supply line from the
solenoid valve. Carefully pull the strainer screen (P/N GA4004) from the valve body (P/N 900-6). Clean
the mineral deposits from all parts. If the orice is clogged, it may be opened by inserting a small pin.
Reinsert the lter into the orice tting and screw the brass strainer body into the solenoid valve.
5. Reconnect the 1/4” water line to the solenoid valve if necessary. Turn on the water supply and check
all points for leakage. The operation of the unit may be checked by starting the furnace. The humidier
operates only when the furnace blower is running or the burner circuit is energized. The humidier is now
ready for operation.
6. During the summer, turn OFF the water supply and electrical power to the humidier. Close air damper.