
PART OF THE E.J.A. ENGINEERING GROUP
Guardmaster Ltd.
Hindley Green Ind. Est. Wigan, England WN2 4HR
Tel: 01942 255166 (Int: +441942 255166)
Fax: 01942 523259 (Int: +44 1942 523259)
Guardmaster Sicherheitstechnik GmbH.
Am Stadion 15, 42897 Remscheid, Deutschland
Telefon: (02191) 96850 Telefax: (02191) 968520
Guardmaster Sarl
274 Rue Jules Ferry, 95360 Montmagny, France
Téléphone: 01 39 83 60 60
Télécopie: 01 39 83 28 00
Drg No: 70899 / Issue No: 0
BETRIEB
(a2) USE UTILISATION
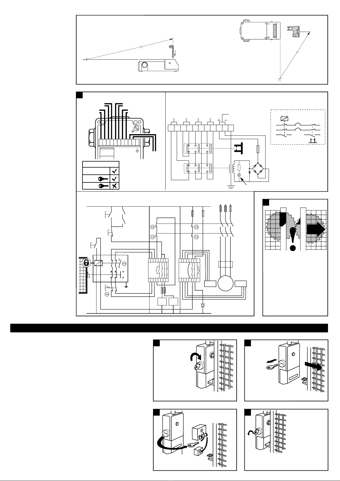
If the switch is to be used with a solenoid release button allowing the
solenoid to be energised only when opening of the guard is required,
the button must be pushed whilst the guard is being opened. This
prevents guard doors from swinging open whenever the control stop
button is pressed. If the optional lid mounted indicator light is
illuminated, this shows that the guard can be opened.
Si l’Atlas 4 est déverrouillé à l’aide d’un bouton avec relais à
mémoire pour des applications où le solénoïde est alimenté pendant
une longue période, utiliser un bouton avec mémoire à accrochage
mécanique tandis que la porte est ouverte. Si le capot de l’Atlas 4 est
muni d’un voyant, celui-ci est allumé quand la porte peut-être ouverte.
Falls die Zuhaltung mit einem Entriegelungs-Taster verwendet wird,
um eine Erregung des Elektromagneten über längere Zeiträume zu
vermeiden, ist der Knopf zu drücken, wenn die Tür geöffnet wird.
Wenn die Anzeigeleuchte auf dem Deckel (Option) aufleuchtet, kann
die Schutztür geöffnet werden.
WARTUNG
(b2) MAINTENANCE MAINTENANCE
Every Week
Inspect the switch casing & actuator for damage. Of particular
importance is damage which causes loss of sealing at the lid,
distortion of the actuator & damage to the end cover. Replace where
necessary. Also check operation of the switching circuit.
At least every 6 months
Isolate all power! Remove the lid & end cover with the security bit
provided. Inspect all terminals for tightness. Clean out any
accumilation of fine dirt etc. Check for any sign of wear, eg. claw
wear, actuator wear, cam assembly wear, contact oxidisation,
solenoid scorching or discolouring etc. Replace covers & fully tighten
the security screws. Rienstate the power & check for correct operation.
Chaque semaine
Inspectez le boîtier et le verrou pour détecter des dommages éventuels.
Accordez une attention toute particulière si le dommage a causé la perte
du verrouillage de la porte ou la déformation de celle-ci. Remplacez
l’ensemble si nécessaire. Contrôlez aussi le circuit électrique de sécurité.
Tous les 6 mois
Coupez l’alimentation générale de la machine, retirez le capot et le
socle et contrôlez les connexions aux bornes. Assurez-vous de la
propreté de l’intérieur de l’appareil. Vérifiez l’usure et la corrosion
éventuelle des différentes pièces et l’oxydation des contacts, etc.
Remettez le couvercle en place et serrez bien les vis de sécurité. Vérifiez
le bon fonctionnement sans point dur de l’ensemble mécanique.
Enclenchez l’alimentation et contrôlez le bon fonctionnement de
l’ensemble avant la remise en production de la machine.
Wöchentlich
Schaltergehäuse und Betätiger auf Beschädigungen prüfen.
Besonders wichtig sind die Prüfungen auf Schäden, die die Dichtigkeit
am Deckel beeinträchtigen, und auf Verformungen am Betätiger und
an der Endkappe. Falls notwendig, bitte ersetzen. Auch die korrekte
Schaltfunktion überprüfen.
Wenigstens alle 6 Montate
Spannung abschalten. Deckel mit dem mitgelieferten TORX-Bit
abnehmen. Alle Anschlüsse auf festen Sitz überprüfen. Jeglichen
feinen Staub und Schmutz entfernen. Auf Verschleiß untersuchen
(Zuhalteklaue, Betätiger, Nockenanordnung, Kontaktoxidation,
Verbrennen und Verfärben des Elektromagneten etc). Deckel wieder
aufsetzen und Schrauben sicher anziehen. Maschine wieder
anschalten und auf korrekten Betrieb prüfen.
REPARATUR
(c2) REPAIR REPARATION
In the event of a problem contact Guardmaster Ltd. If there is any
malfunction or damage, no attempts should be made to repair it. The
switch should be replaced before machine operation is allowed. If
appropriate return the switch to Guardmaster.
DO NOT DISMANTLE THE UNIT.
Dans l’éventualité d’un problème technique avec cet appareil
Guardmaster, il doit être remplacé immédiatement avant la remise en
production de la machine. Si cela est nécessaire, utilisez un
formulaire de bon de retour avant de le renvoyer chez Guardmaster.
DANS TOUS LES CAS, NE DISLOQUEZ PAS L'APPAREIL.
Bei auftretenden Problemen bitte mit Guardmaster Kontakt
aufnehmen. Falls Fehlfunktionen oder Schäden auftreten, keine
Versuche zur Reparatur unternehmen. Der Schalter muß ersetzt
werden, bevor die Maschine wieder gestartet wird. Ggf. Schalter an
Guardmaster zurückschicken. GERÄT NIEMALS AUSEINANDERNEHMEN.
FEHLERSUCHE
(d2) TROUBLESHOOTING LOCALISATION DE PANNE
Symptom
Guard lock is released at the wrong time
Guard can not be opened
Switch body becomes excessivly hot and/or
unlocking mechanism becomes sluggish
Guard can not be locked
Cause
Wrong design, incorrect sequence of operation,
or fault in solenoid energisation circuit
Power supply failiure
Burnt out solenoid
Wrong design, incorrect sequence of operation,
or fault in solenoid energisation circuit
Overheating solenoid. If solenoid is left
energised for long periods overheating may
occur
Claw wear, cam system damaged or actuator
misaligned or bent
Remidy
Check circuit and ammend if necessary
Check supply circuit & internal fuse
Send switch back to Guardmaster
Check circuit and ammend if necessary
Fit a solenoid release button
Replace or realign actuator. Return switch
to Guardmaster if damaged.
Symptom
Schutztür verriegelt zum falschen Zeitpunkt.
Schutztür kann nicht geöffnet werden
Schaltergehäuse wird sehr heiß und/oder
Entriegelungsmechanismus arbeitet langsam
Schutztür kann nicht verriegelt werden
Ursache
Falsches Schaltungskonzept, nicht korrekt bedient
oder Fehler im Erregungskreis des Elektromagneten
Stromausfall
Elektromagnet durchgebrannt
Falsches Schaltungskonzept, nicht korrekt bedient
oder Fehler im Erregungskreis des Elektromagneten
Elektromagnet überhitzt. Falls Elektromagnet
über sehr lange Zeiten erregt ist, können hohe
Temperaturen entstehen.
Verschleiß an Zuhalteklaue, Nockensystem
beschädigt oder Betätiger verschoben oder verbogen.
Beseitigung
Schaltung überprüfen und ggf. korrigieren
Stromquelle und interne Sicherung überprüfen
Schalter zu GUARDMASTER zurückschicken
Schaltung überprüfen und ggf. korrigieren
Entriegelungs-Taster installieren
Betätiger richten oder ersetzen. Schalter
zu GUARDMASTER zurückschicken
Symptôme
Déverrouillage à un mauvais moment
La porte ne s’ouvre pas
Le boîtier métal devient excessivement
chaud et/ou le mécanisme de verrouillage
devient difficile
La porte ne peut pas être verrouillée
Cause
Mauvaise installation, séquence incorrecte des
opérations, panne sur l’alimentation du solénoïde
Panne alimentation
Solénoïde hors service
Mauvaise installation, séquence incorrecte des
opérations, panne sur l’alimentation du solénoïde
Surchauffe du solénoïde. Diminuer les temps
d’alimentation du solénoïde pour diminuer la
température
Entrée bouchée, système de came endommagé
ou broche mal alignée, tordue ou cassée.
Solution
Contrôler et modifier le circuit si nécessaire
Contrôler le circuit d ‘alimentation
et le fusible interne
Adapter le bouton avec mémoire
à accrochage
Remplacer ou aligner la broche. Retourner
l’appareil chez Guardmaster si endommagé
BS EN ISO 9001:1994
FM 21701
This is to declare that the Guardmaster Atlas 5 GD2 conforms with the Essential
Health & Safety Requirements (EHSR's) of the European Machinery Directive
(98/37/EC), the relevant requirements of the Low Voltage Directive
(73/23/EEC as amended by 93/68 EEC). The Atlas 5 GD2 also conforms to
EN 1088, EN 60947-5-1, EN 292, EN 60204-1.
Signed for Guardmaster Ltd
S. F. Mitchell
Managing Director
(b2) Declaration of Conformity
Konformitätserklärung / Déclaration de conformité