Heliotrope PV RV-45D Bedienungsanleitung

OPERATION MANUAL
for the
RV-45D
Solar Charge Controller
Heliotrope PV
Eugene, OR
541-284-2426 phone
541-284-2427 fax
Manufactured by:

RV-45D
Features
1) Pulse Width Modulation “Taper” Charge Strategy
Maintains batteries at the highest state-of-charge with
the least amount of battery water consumption.
2) Selectable State-of-Charge
Set from 13.2 VDC to 14.6VDC in 0.2 volt increments.
3) Selectable “Auto-Equalize”, “Auto-Float” or “Fixed”
“Equalize” for Flooded Lead-Acid Batteries,
“Float” for Absorbed Glass Mat (AGM) or Gel batteries,
“Fixed” for single set point PWM charging.
4) Battery Temperature Compensation
Automatically adjusts charge setpoint with respect to
battery temperature to help prevent excess water loss or
plate sulfation build-up.
5) Dual Battery Bank Charging
Charges both the Engine and House battery banks from the
same Solar panels.
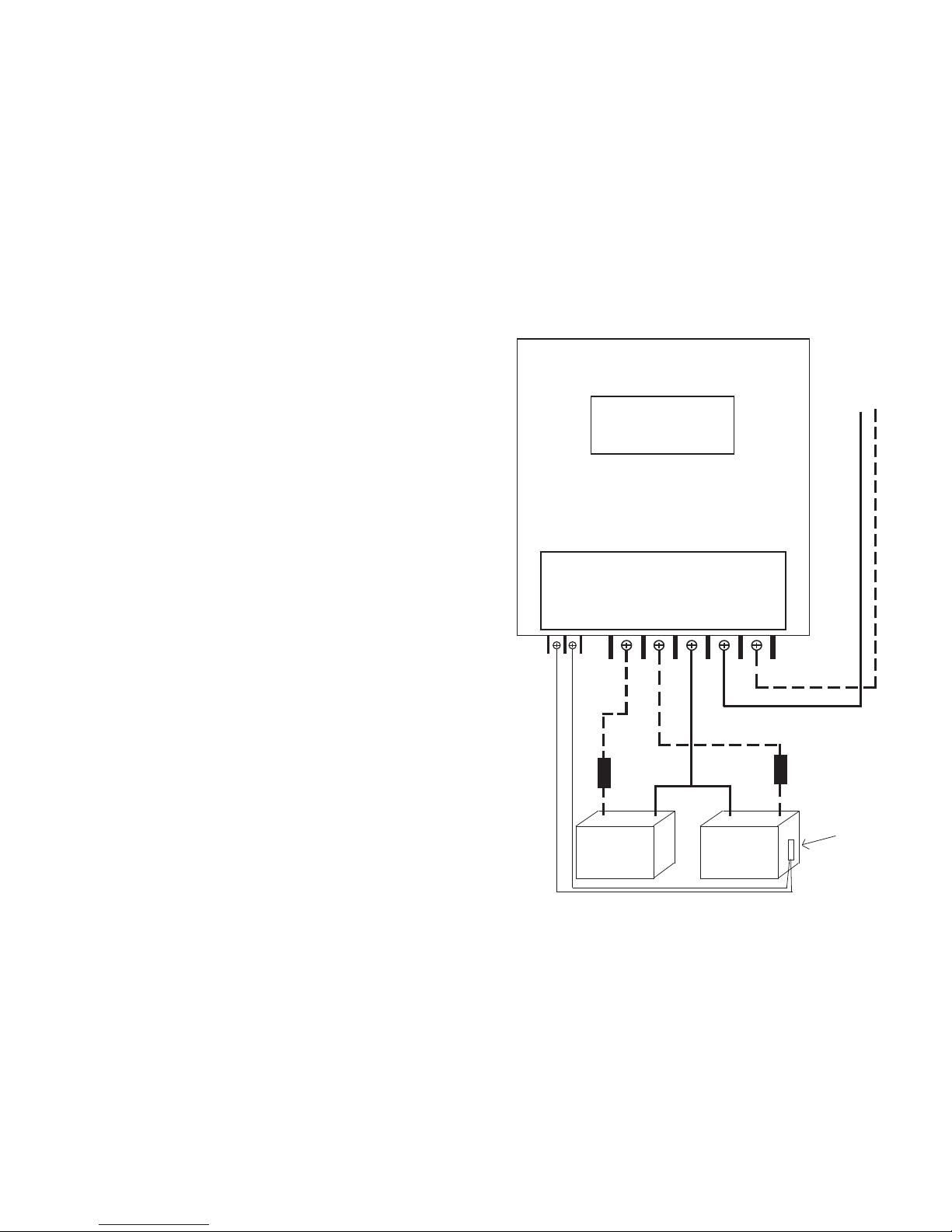
System Overview
From
Solar Module
+
_
HOUSE
BATTERY
ENGINE
BATTERY
__
+ + Temperature
Compensation
Probe
Solar Positive
Solar Negative
**
*
* 5 ampere fuse
** 50 ampere fuse
(2)
HELIOTROPE
RV-45D
Manufactured by Heliotrope PV Eugene, OR
T
E
M
P
C
O
M
P
E
N
G
I
N
E
+
H
O
U
S
E
+
S
O
L
A
R
+
H
O
U
S
E
_
S
O
L
A
R
_
(1)

Introduction
The RV-45D is a standard 45 amp, 12Volt DC, series
type Pulse Width Modulated charge controller that utilizes
power MOS FET technology that eliminates relays and
subsequent failures associated with them. The RV series type
charge controller maintains the exact state-of-charge (SOC)
voltage by frequent on and off switching of the photovoltaic
source.
It is literally two charge controllers in one, and as such,
the RV-45D allocates the charge to both the house and the en-
gine batteries. The “Engine” battery charging circuit is limited
to 3 amps with a state-of-charge voltage xed at 13.4 VDC.
Whenever the Engine battery is at a lower voltage than the
House batteries, some of the charging current is sent to it.
The “House” battery charging circuit can deliver up
to 45 amps with a selectable state-of-charge voltage
from 13.2 VDC to 14.6 VDC. The Temperature Compensation
feature only works on the “House” battery circuit. “Auto-Equal-
ize”, “Auto-Float” and “Fixed” also only affect the “House”
battery circuit.
The RV-45D is a fully automatic controller. Basically,
after all the settings are made and the controller is installed, it
takes care of everything else!
(3)
Field Selectable Options
A) SETTING DIP SWITCHES
The 4 DIP switches are used to eld select SOC (state-
of-charge) and MODE. Switches #1, #2, and #3 set the SOC
nish voltage and switch #4 turns the MODE on or off.
(Refer to FIG. 1 or 2 on pages 5 and 6
for location of DIP SWITCHES on the circuit board)
1 2 3 4
SOC VALUES
ON
OFF
MODE
SWITCH
(4)
B) STATE-OF-CHARGE (SOC) VOLTAGE
The battery state-of-charge voltage is selected with DIP
switches #1, #2, and #3. Refer to the following chart to determine
correct switch positions for the desired voltage setpoint. Move
appropriate switches either ON or OFF according to the chart.
SOC voltage may be changed once the RV-45D is connected.
System Voltage DIP Switch Number
STATE-OF-CHARGE VOLTAGE
12 VDC 1 2 3
13.2
13.4
13.6
13.8
14.0
14.2
14.4
14.6
OFF
ON
OFF
ON
OFF
ON
OFF
ON
OFF
OFF
ON
ON
OFF
OFF
ON
ON
OFF
OFF
OFF
OFF
ON
ON
ON
ON

(5)
(FIG. 1) Circuit Board Inside of RV-45D Solar Charge Controller
Recommended Settings for Flooded Lead-Acid Batteries
(RV/Marine and “Golf-Cart” type Batteries)
1 2 3 4
HELIOTROPE PV
RV SERIES
REVISION F.1
TEMP COMP
ON OFF
HOUSE
EQ FL
MODE:
“Mode” Jumper block
set on pins #1 & #2 for
“EQ” (Automatic Equalization)
“Dip Switches” set for 14.2 volts DC
#1 - ON
#2 - OFF
#3 - ON
#4 - ON
NOTE:
Turn Temp. Comp.
Off if you donʼt
install the sensor!
(FIG. 2) Circuit Board Inside of RV-45D Solar Charge Controller
Recommended Settings for Sealed Lead-Acid Batteries
(Absorbed Glass Mat and Gel Batteries)
1 2 3 4
HELIOTROPE PV
RV SERIES
REVISION F.1
TEMP COMP
ON OFF
HOUSE
EQ FL
MODE:
“Mode” Jumper block
set on pins #2 & #3 for
“FL” (Automatic Float)
“Dip Switches” set for 13.4 volts DC
#1 - ON
#2 - OFF
#3 - OFF
#4 - ON
NOTE:
Turn Temp. Comp.
Off if you donʼt in-
stall the sensor!
(6)

C) MODE SWITCH
The #4 DIP switch activates or deactivates the MODE
function. If you donʼt want to use the “Auto-Equalization”
MODE or the “Auto-Float” MODE, then place this switch in
the off position. This locks the SOC voltage setpoint to wherever
you set it .
D) BATTERY TEMPERATURE COMPENSATION
Refer to FIG. 1 or 2 on pages 5 and 6 for location of the
“TEMP. COMP.” jumper on the circuit board. Move the jumper
to the “ON” position only if you are going to extend the temp.
comp. sensor to the battery from the RV-45D.
If you choose not to use this feature, be sure to de-activate
it by leaving the jumper in the "OFF" position
NOTE on Temperature Compensation Misuse:
If the remote sensor is not installed, make sure the Temp.
Comp. Jumper is in the OFF position! Failure to do this
WILL result in damage to your battery!
E) AUTOMATIC EQUALIZATION
If you have Flooded Lead-Acid, Deep-Cycle Batteries
and wish to use this feature then refer to FIG 1 on page 5 to set
it up and activate it. The “MODE” jumper must be in the “EQ”
position and the #4 (MODE) DIP switch must be in the “ON”
position.
F) AUTOMATIC FLOAT
If you have Sealed, Absorbed Glass Mat or Gel Batteries
and wish to use this feature then refer to FIG 2 on page 6 to set
it up and activate it. The “MODE” jumper must be in the “FL”
position and the #4 (MODE) DIP switch must be in the “ON”
position.
Operation of the RV-45D
A) WITH AUTOMATIC EQUALIZATION ACTIVATED
As the sun rises, (and the solar panels reach a voltage
that is slightly higher than the battery voltage), the RV-45D will
deliver all available charging amperage to the batteries. The
battery voltage will rise under this inuence until it approaches
whatever SOC voltage setpoint you have selected.
At this point, the controller will begin to taper off the
charging amperage slightly and check to see if the battery is
really at the SOC voltage setpoint. After a couple of minutes,
the controller will go into its Automatic Equalization cycle.
During this Equalization period, (which only happens
once a day after the rst time the battery reaches its SOC
voltage setpoint), the controller allows full charging amperage
to continue to be delivered to the battery for about 30 minutes.
This effects a short term “overcharge” during which plate
sulfation is driven back into solution and weaker cells are
allowed a little extra time to reach full charge.
Depending on how much solar power you have and how
many electrical loads you have on, your battery voltage may
climb as high as 0.8 volts above the SOC voltage setpoint you
have selected. The RV-45D will not allow the voltage to go
higher than that.
After this 30 minute Equalization period, the controller
will enter its Pulse Width Modulation “Taper” cycle and only
deliver whatever amperage it takes to maintain the SOC voltage
setpoint. This will hold the batteries at their highest state-of-charge
with the least amount of water consumption.
As the sunlight fades and evening approaches, the
battery voltage will begin to fall from the SOC voltage setpoint
to a lower point that is closer to its “at rest” voltage.
This cycle will be repeated the following morning.
(7) (8)

(9) (10)
B) WITH AUTOMATIC FLOAT ACTIVATED
As the sun rises, the RV-45D will deliver all available
charging amperage to the batteries. The battery voltage will
rise under this inuence until it reaches a point that is 0.8 volts
higher than the SOC voltage setpoint.
The controller will then begin to taper the charge until it
reaches a value equal to about 60% of the charging amperage.
It will then cut off all charging until the battery voltage falls to
the SOC voltage setpoint.
The RV-45D will then operate in its Pulse Width Modulation
“Taper” cycle and only deliver whatever amperage the batteries
need to maintain the SOC voltage setpoint.
As the sunlight fades and evening approaches, the battery
voltage will begin to fall from the SOC voltage setpoint to a
lower point that is closer to its “at rest” voltage.
This cycle will be repeated the following morning or at
any time the battery voltage falls below the SOC setpoint.
C) WITH THE “MODE” DIP SWITCH “OFF”
As the sun rises, the RV-45D will deliver all available
charging amperage to the batteries. The battery voltage will rise
under this inuence until it approaches whatever SOC voltage
setpoint you have selected. At this point, the RV-45D will enter
its Pulse Width Modulation “Taper” charge and deliver whatever
charging amperage the battery requires to maintain the selected
SOC voltage setpoint.
As the sunlight fades and evening approaches, the battery
voltage will begin to fall from the SOC voltage setpoint to a
lower point that is closer to its “at rest” voltage.
This cycle will be repeated the following morning.
NOTE: If you are using the Temperature Compensation
feature, the setpoint voltage may be slightly higher or lower
depending on the battery temperature. This applies to all
three modes.
Warranty
The RV-45D Solar Charge Controller carries a
10 year limited warranty.
~ During the rst year, repair or replacement of defective
merchandise will be made at no charge.
~ For years 2 through 5, repair will be made for a service fee
not to exceed 25% of the current list price.
~ For years 6 through 10, repair will be made for a service
fee not to exceed 50% of the current list price.
Ask for a copy of the Warranty for full details
Heliotrope PV
3698 Franklin Blvd.,
Eugene, OR 97403
541-284-2426 phone
541-284-2427 fax
Inhaltsverzeichnis

















