
Page 2 of 6 59-2000-83
IMPORTANT INSTRUCTIONS
Read Carefully - Installation and maintenance personnel should familiarize themselves with this
manual as it contains vital information for the proper installation, efficient operation and
maintenance of the heater described. Failure to follow these IMPORTANT INSTRUCTIONS
could result in fire, electric shock and injury to persons.
READ ALL INSTRUCTIONS BEFORE INSTALLING OR USING THIS HEATER
RISK OF FIRE / EXPLOSION
Electric Heaters are capable of developing
high temperatures and may contain arcing or
sparking electrical components. Extreme
care should be taken:
1. Risk of Fire and Explosion: This heater must not
be used in a hazardous location with any
flammable or explosive properties. Do not store
or use gasoline or other flammable vapors and
liquids in the vicinity of the heater.
For details on the particular hazardous environments
having the potential for explosion, refer to Articles 500
through 516 of the National Electrical Code, and/or
Section 18 of the Canadian Electrical Code Part I.
2. Avoid direct contact between heaters and
combustible materials. Keep combustible
materials such as furniture, pillows, bedding,
papers, clothes and curtains far enough away to
be free of the effects of high temperature.
Spacing should be at least 36” (914mm) from the
face of the heater or 12 inches (305mm) from any
other part of the heater.
3. Installation minimum mounting clearances
specified both on heater nameplate and in this
owner’s manual must be maintained.
4. Heater must not be recessed.
5. This heater has been evaluated by UL for
outdoor use only if mounted underneath an
overhang using a quartz heating element
6. Risk of Fire. For commercial and Industrial use
only. Do not use as a residential or household
heater.
RISK OF ELECTRIC SHOCK
Electric Heaters are appliances where
potentially lethal voltages are present.
Extreme care should be taken in the
installation, operation and maintenance
1. This Heater must be installed by qualified
personnel. Wiring procedures and connections
shall be in accordance with the national and local
codes having jurisdiction. It is the responsibility of
the installer to verify the safety and suitability of
the installation.
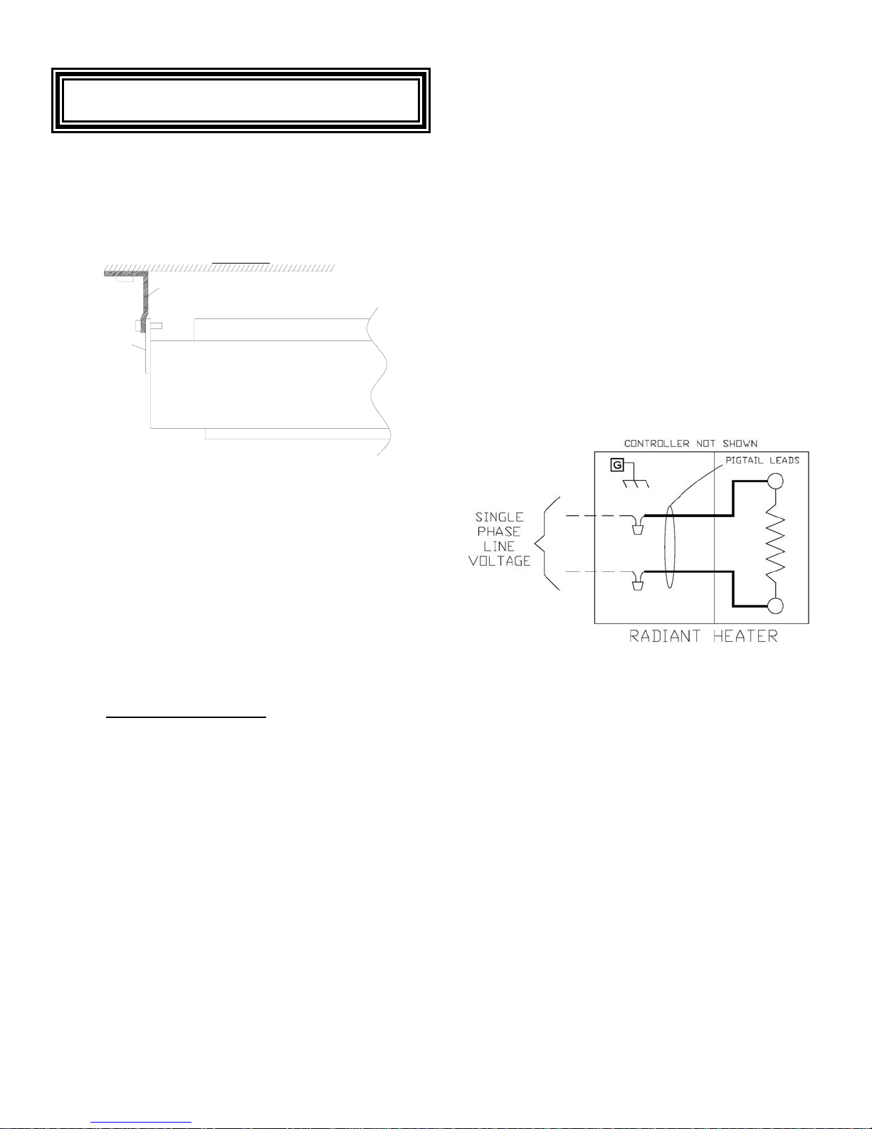
2. Hazard of Electric Shock. Heater must be
grounded in accordance with the National Electric
Code (N.E.C) and/or the Canadian Electric Code
(C.E.C).
3. To disconnect heater, turn controls to off and
turn off power to heater circuit at main disconnect
panel.
4. Use this heater only as described in this manual.
Any other use is not recommended by the
manufacturer and may result in fire, electric
shock or personal injury.
5. Keep wiring and end reflector covers tightly
closed while in operation.
6. Do not operate this heater after a malfunction.
Disconnect power at service panel and have
heater inspected by a reputable electrician before
reusing.
RISK OF INJURY / BURN
Heater MUST be securely fastened to the
building structure to prevent it from falling.
It is the responsibility of the installer to verify
the safety and suitability of the installation.
1. Installation minimum mounting clearances
specified both on heater nameplate and in this
owner’s manual must be maintained.
2. Do not operate this heater after a malfunction.
Disconnect power at service panel and have
heater inspected by a reputable electrician before
reusing.
3. Do not insert foreign objects into the heater as
this may result in fire, electric shock, personal
injury or heater damage.
4. The heater is hot when in use. To avoid burns, do
not let bare skin touch hot surfaces.
5. Extreme caution is necessary when any heater is
used by or near children or invalids and
whenever the heater is left operating and
unattended.