
Capacity
per hour
Final rinse
consumption
at 20 psi
Exhaust
requirements*Peak rate
drain flow Shipping
weight
Current draw
amps Steam Electric w/o booster
Tank capacity Motor size
Electric usage (Electric booster must have 16 gallon holding tank)
Final rinse
peak flow
at 20 psi min.
CA-3 - 25 racks
DA-3 - 50 racks
CA-3 - 2.8 gals./cycle;
70 gals./hr
DA-3 - 5.6 gals./cycle;
140 gals./hr
CA-3 - 300 CFM
DA-3 - 600 CFM
CA-3 - 9 gals./min.
DA-3 - 16 gals./min.
CA-3 - 800 lbs.
DA-3 - 1500 lbs.
CA-3 - 31 gals.
DA-3 - 62 gals.
CA-3 - 5 hp
DA-3 - (2) 5 hp
CA-3 DA-3
5 5 kw wash tank
9 (2) 9 kw booster 40° rise
24 (2) 24 kw booster 70° rise
CA-3 40° rise CA-3 70° rise DA-3 40° rise DA-3 70° rise
20 lbs./hr. tank 20 lbs./hr. tank 20lbs./hr. tank 20lbs./hr. tank
25 lbs./hr. booster
average
44 lbs./hr. booster
average
50 lbs./hr. booster
average
88 lbs./hr. booster
average
238 lbs./hr. booster
peak
417 lbs./hr. booster
peak
476 lbs./hr. booster
peak
834 lbs./hr. booster
peak
CA-3 - 11.2 gals./min.
DA-3 - 22.4 gals./min.
Steam consumption at 20 psi min.
CA-3 / DA-3
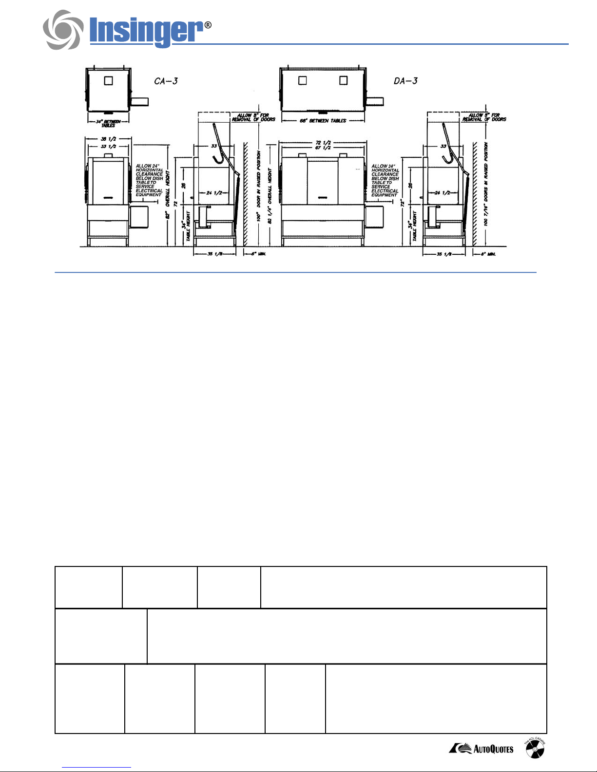
Note: For all rough in connections see Installation and Layout Detail Drawing.
SPECIFICATIONS
CONSTRUCTION - Hood and tank constructed of 14 gauge 18-8 type 304 S/S. Hood unit of all welded seamless construction.
S/S frame, legs and feet. All internal castings are non-corrosive lead free nickel alloy or bronze.
DOORS -
A front inspection/cleanout door and two simultaneously opening operating doors. Operating doors balanced by
externally mounted springs. Extra large die formed 18-8 type 304 S/S doors ride in all S/S channels. A triple ply leading edge
on the door channels made of S/S.
PUMP -
Centrifugal type “packless” pump with a brass petcock drain. Construction includes ceramic seal and a balanced cast
impeller on a precision ground stainless steel shaft. All working parts mounted as an assembly and removable as a unit without
disturbing pump housing. CA-3 has one 5 HP motor. DA-3 has two 5 HP motors. Motors are standard horizontal C-face frame, drip
proof, internally cooled with ball-bearing construction.
CONTROLS -
Side-mounted control cabinet, NEMA 12 rated, housing motor controls and overload protection, transformer,
contactors and all dishwasher integral controls. All controls safe low voltage 24 VAC.
SPRAY SYSTEM
-
Wash and rinse spray systems made of 18-8 type 304 S/S pipe threaded into cast hub assemblies.
Upper and lower spray assemblies are interchangeable and are removable without the use of tools.
CA-3 Wash
-
2 power spinning wash arms above and 2 power spinning wash arms below each designed with 8 high pressure
action cleansing holes.
CA-3 Final Rinse
-
2 power spinning rinse arms above and 2 power spinning rinse arms below each designed with 3 nozzles.
DA-3 Wash
-
4 power spinning wash arms above and 4 power spinning wash arms below each designed with 8 high pressure action
cleansing holes.
DA-3 Final Rinse
-
4 power spinning rinse arms above and 4 power spinning rinse arms below each designed with 3 nozzles.
DRAIN
-
Drain valve externally controlled. Overflow assembly with skimmer cap is removable without use of tools for drain line
inspection. Heater protected by low water level control.
*Note: Exhaust requirements are for duct connections only.
CSI - 11400
CA-3 DA-3 CA-3 DA-3
208/3/60 .................17.4 ...... 34.1 ............... 31.3 .....48.0
230/1/60 .................. n/a ........n/a ..................n/a ....... n/a
230/3/60 .................15.9 ...... 31.1 ............... 27.9 .....43.1
380/3/50 ...................9.6 ...... 18.8 ............... 17.2 .....26.4
480/3/60 ...................7.9 ...... 15.5 ............... 13.9 .....21.5
CA-3 5 kw wash tank 9 kw booster 40° rise 24 kw booster 70° rise
DA-3 5 kw wash tank (2) 9 kw booster 40° rise (2) 24 kw booster 70° rise
3M 12/06 PRINTED IN USA
Information and specifications subject to change without notice