
M9203-Bxx-2(Z) Series On/Off Electric Spring Return Actuators
Installation Guide
1
Applications
The M9203-Bxx-2(Z) Series On/Off Electric Spring Return Actuators are direct-mount actuators that operate on
AC 24 V power at 50/60 Hz, DC 24 V power, or AC 85 to 264 V power at 50/60 Hz. These bidirectional actuators
do not require a damper linkage, and are easily installed on round shafts from
1/4 to 1/2 in. (6 to 12 mm) or square shafts from
1/4 to 5/16 in. (6 to 8 mm) using the standard shaft clamp included with the actuator.
A single M9203-Bxx-2(Z) Series On/Off Electric Spring Return Actuator provides 27 lb·in. (3 N·m) running and
spring return torque. An integral line voltage auxiliary switch, available only on the M9203-xxB-2(Z) models,
indicates end-stop position, or performs switching functions within the selected rotation range.
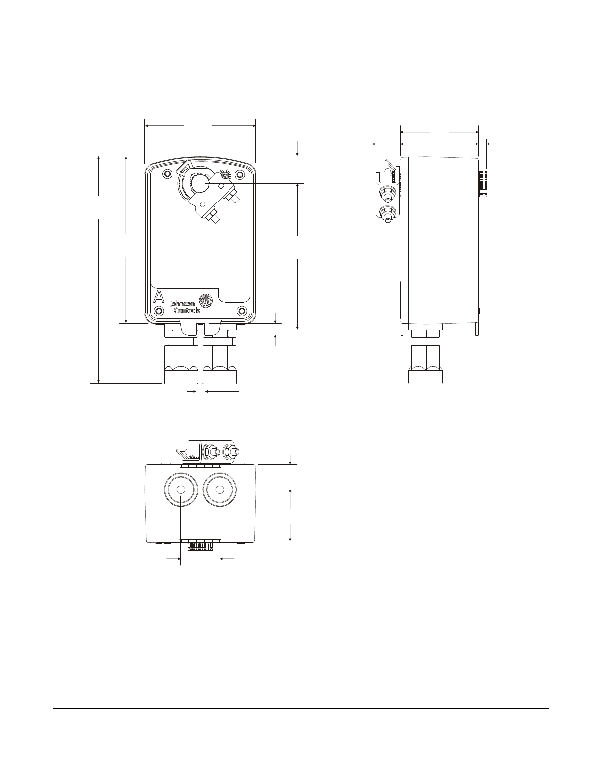
Installation
The M9203-Bxx-2(Z) Series On/Off Electric Spring Return Actuators mount directly to the surface in any
convenient orientation using two No. M3.5 x 9.5 mm self-drilling sheet metal screws and the anti-rotation bracket
(parts included with the actuator). No additional linkages or couplers are required. Electrical connections are
color-coded and identified with numbers permanently marked on the actuator cable. A tag on the actuator cable
identifies the electrical connections and wiring details are included on the actuator housing.
Parts Included
• M9203-Bxx-2(Z) actuator
• M9203-603 adjustable stop kit
• M9000-604 anti-rotation bracket with two
No. M3.5 x 9.5 mm, pan-head, cross-recessed (Phillips), self-drilling and self-tapping screws
IMPORTANT: Use this M9203-Bxx-2(Z) Series
On/Off Electric Spring Return Actuator only to control equipment under normal operating conditions. Where
failure or malfunction of the actuator could lead to personal injury or property damage to the controlled
equipment or other property, additional precautions must be designed into the control system. Incorporate and
maintain other devices, such as supervisory or alarm systems or safety or limit controls, intended to warn of or
protect against failure or malfunction of the actuator.
IMPORTANT : Utiliser ce M9203-Bxx-2(Z) Series On/Off Electric Spring Return Actuator uniquement pour
commander des équipements dans des conditions normales de fonctionnement. Lorsqu'une défaillance ou un
dysfonctionnement du actuator risque de provoquer des blessures ou d'endommager l'équipement contrôlé ou
un autre équipement, la conception du système de contrôle doit intégrer des dispositifs de protection
supplémentaires. Veiller dans ce cas à intégrer de façon permanente d'autres dispositifs, tels que des systèmes
de supervision ou d'alarme, ou des dispositifs de sécurité ou de limitation, ayant une fonction d'avertissement ou
de protection en cas de défaillance ou de dysfonctionnement du actuator.
IMPORTANT: Do not install or use this M9203-Bxx-2 Series On/Off Electric Spring Return Actuator in or near
environments where corrosive substances or vapors could be present. Exposure of the electric actuator to
corrosive environments may damage the internal components of the device, and will void the warranty.
M9203-Bxx-2(Z) Series On/Off Electric Spring Return Actuators
Installation Guide
M9203-BUA-2, M9203-BUB-2,
M9203-BGA-2, M9203-BGB-2
M9203-BUA-2Z, M9203-BUB-2Z
Part No. 34-1791-24, Rev. F
January 2020
*34179124F*
34-1791-24, Rev. F