
TM-1520A-2P ADJUSTMENT AND SERVICE ONLY
NOTE: Parallel Systems include Thermostatic
Water Mixing Valves, which must be regularly
maintained to provide best performance.
Frequency of cleaning depends on quality of local
water conditions and usage. See Maintenance
Guide and Record MGR-1000
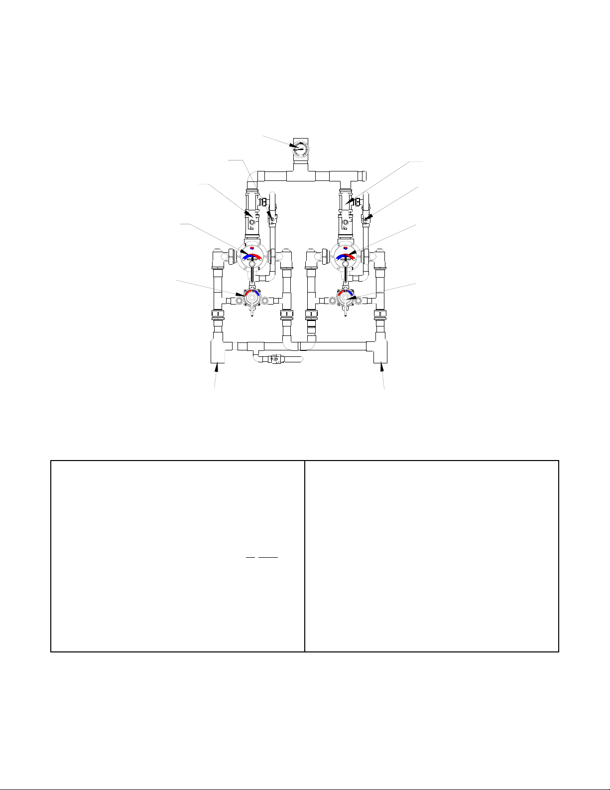
Leonard Type TM Thermostatic Water Mixing
Valves are simple in design and may be easily
cleaned, adjusted and repaired. If the installation
is accessible, servicing may be completed without
disconnecting the valves.
WARNING
These mixing valves are equipped with an adjustable high temperature limit stop factory set at approximately
120°F (49°C) with an incoming hot water supply temperature of 150°F (65.5°C). If the hot water supply
temperature of the job is greater than 150°F (65.5°C), the valves when turned to full HOT will deliver water in
excess of 120°F (49°C) and the limit stop MUST BE RESET BY THE INSTALLER!
TO RESET ADJUSTABLE HIGH TEMPERATURE LIMIT STOP:
TM-1520A SMALL MIXING VALVETM-1520A LARGE MIXING VALVE
1. Loosen LTR screw
2. Remove SNAP CAP, SCREW & WASHER, Remove
POINTER.
3. Temporarily place POINTER on the spline rod, turn RIGHT
for warmer temperature, turn LEFT for cooler temperature.
When valve is delivering warmest temperature desired, remove
the pointer.
4. Replace POINTER on the spline rod so that its RIGHT edge is
resting against the STOP SCREW located on the RIGHT SIDE
OF THE COVER.
5. The new maximum temperature has now been set. Test this
temperature by holding a thermometer under the flow of water
to be certain it is as desired.
* LIMIT STOP MUST BE RESET AND RECHECKED
EACH TIME HANDLE IS REMOVED.
POINTER SET SCREW
SNAP
CAP
LTR
C
H
THERMOSTATIC
LEONARD
STOP
SCREW
IMPORTANT! ALL MIXING VALVES MUST BE SET AT THE SAME
OPERATING TEMPERATURE.
SEE PAGES: 6 & 7 FOR COMPLETE PARTS BREAKDOWN
Check for significant variations in outlet flow. Thermostatic valves will NOT provide the desired accuracy
outside of their flow capacity range. Minimum flows must be no less than shown (see Flow Capacities, page 8).
If installed on a recirculated hot water system, make certain the valve is piped according to Leonard’s Required
Piping Methods (see page 4).
REMEMBER! THIS IS A CONTROL DEVICE WHICH MUST BE CLEANED AND MAINTAINED
ON A REGULAR BASIS. (SEE MAINTENANCE GUIDE AND RECORD, MGR-1000).
2
WEB
ADJUSTMENT
FINE
SCREW
1017
ASSE
COLDHOT
REST AGAINST SCREW
1. Loosen LTR SET SCREW, remove POINTER SCREW.
2. Adjust POINTER to maximum desired temperature.
3. Remove POINTER, replace POINTER on spline rod with
STOP (which is cast into the underside on the pointer),
resting against the BOTTOM side of the WEB on the FINE
ADJUSTMENT SCREW.
4. If fine adjustment is needed, adjust FINE ADJUSTMENT
SCREW on the cover, loosen for hotter or tighten for cooler
temperature.
5. Replace POINTER and check temperature, if set to desired
temperature replace POINTER SCREW, and tighten LTR
SET SCREW.
6. The new maximum temperature has now been set. Test this
temperature by holding a thermometer under the flow of
water to be certain it is as desired.
* LIMIT STOP MUST BE RESET AND
RECHECKED EACH TIME HANDLE IS REMOVED.