
Category 6 Voi e and Data Expansion Board & Module
APPLICATION
Leviton offers C tegory 6 Voice nd D t Exp nsion
Bo rd for its Pre-Configured Structured C bling P nels, lso
v il ble s st nd lone module. The st nd- lone module fe tures
dedic ted ABS pl stic br cket with the exp nsion bo rd which
includes six d t ports for essenti l telephone nd home
networking; suit ble for phone, f x or d t modem.
STANDARDS COMPLIANCE
Meets ll pplic ble st nd rds: cULus Listed; TIA/EIA
568A nd FCC P rt 68 compli nt.
PHYSICAL SPECIFICATIONS
M teri ls: C tegory 6 Voice nd D t
Exp nsion Bo rd:
Printed circuit bo rd with
six C tegory 6 ports.
Br cket: ABS Pl stic, white.
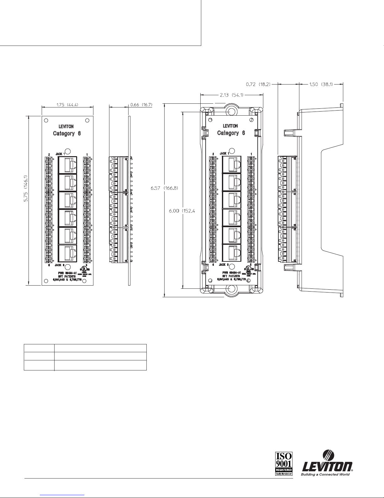
DIMENSIONS
C tegory 6 Voice nd D t Exp nsion Bo rd:
.73”H x 5.75”W x 1.75”D
Br cket: 6.57”H x 2.13”W x 2.20”D
Part Numbers
47611-C6
47611-C6B
Produ t
Spe ifi ations
Category 6 Voi e and Data Expansion Board & Module
DESIGN CONSIDERATIONS
Fits e sily into ny Leviton Structured Medi ® enclosure.
• Av il ble s st nd- lone unit, on single, pl stic br cket, or s n
exp nsion bo rd for Pre-Configured Structured C bling P nel.
• Determine outlet loc tions nd c refully pl n c ble routing to
ensure the selected unit s tisfies requirements.
TYPICAL SPECIFICATION
The C tegory 6 Voice nd D t Exp nsion Bo rd sh ll meet ll
pplic ble st nd rds: cULus Listed; TIA/EIA-568A nd FCC
P rt 68 compli nt. The bo rd sh ll include six C tegory 6 ports
on printed circuit bo rd design either s n exp nsion bo rd,
or on white, ABS pl stic, st nd- lone br cket. The
m nuf cturer sh ll provide two-ye r limited product w rr nty.
Fo Applications Enginee ing Suppo t – Call 1-425-485-4288;
in USA call 1-800-722-2082 Spec sheets and updates a e also
available at www.leviton.com.
Leviton Mfg. Co., In .
59-25 Little Ne k Pkwy • Little Ne k, NY 11362-259
Customer Servi e: 1-800-323-8920 • Te h Line: 1-800-824-3005 • Fax: 1-800-832-9538
Visit our Website at: www.leviton. om