
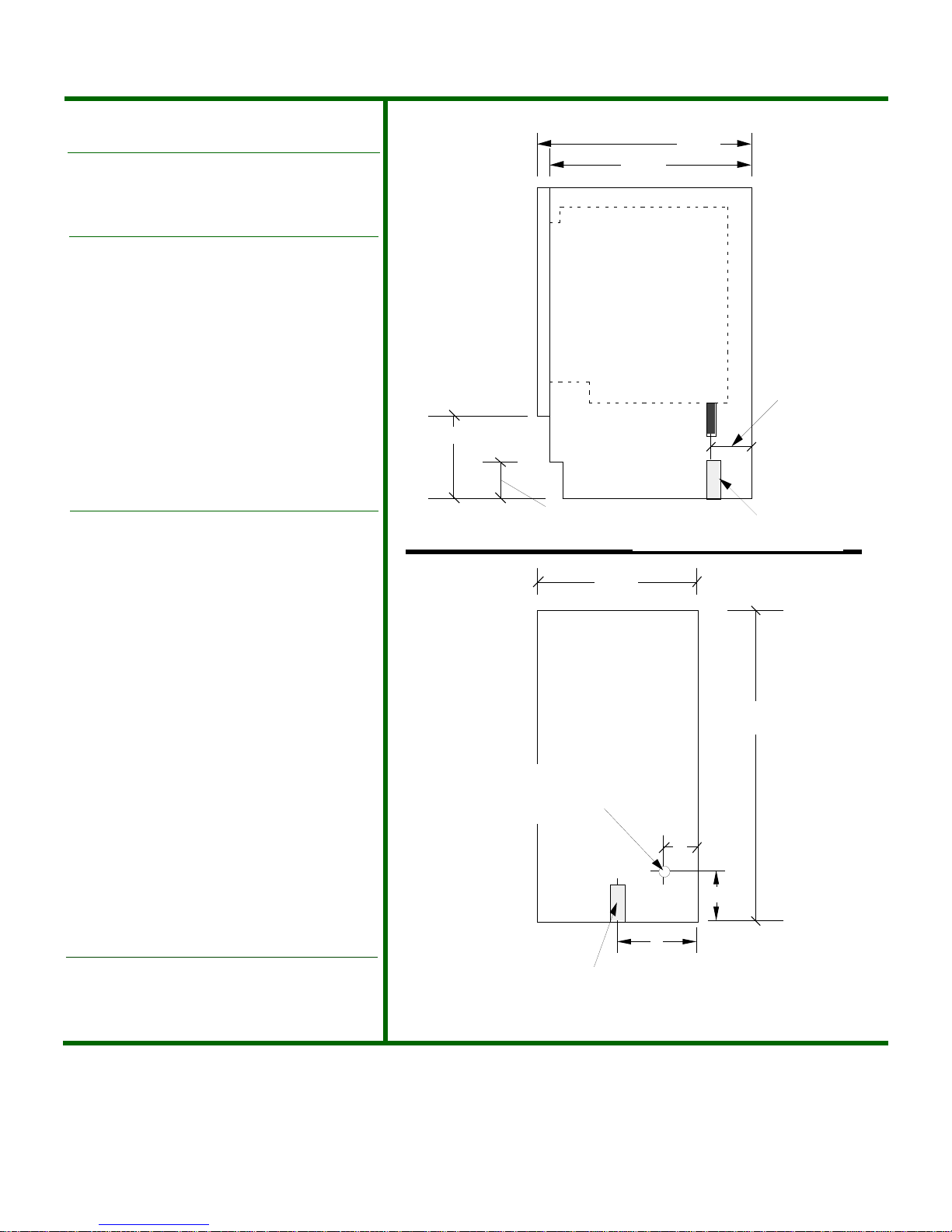
Overall depth NOT including
panel or handle:
Depth not including door:
Height at full leg adjustment:
Height at 0" leg adjustment:
Height without legs installed:
Width:
Toe Kick height:
Floor to top of grille:
Door swing at 90°:
Recommended opening width:
Recommended opening depth:
Recommended opening height:
22 5/8"
21 1/4"
35"
34 1/4"
34 1/4"
14 7/8"
3 3/4"
8"
16 3/8"
15"
24"
34 1/2"
Back View
(not to scale)
21 1/4"
Side View
(not to scale)
14 7/8"
35" Max
34 1/4" Min
1 1/2" minimum ID stand pipe up to
3" maximum high above floor
2"
22 5/8"
8"
2"
5 1/4"
Water supply : 90°
1/4" OD waterline
compression fitting
at water valve
Drain: 1 1/2" minimum ID stand pipe
up to 3" minimum high above floor.
(Subject to local code)
(Subject to local code)
3 3/4"
Top of Grille: 8"
• Electrical requirements: 120 volts, 3 amps running
max. 15 amp circuit required.
• Locate a 3-prong grounded receptacle in one of three
locations: 1) On the wall in the adjacent cabinet
opening. 2) Flush on the back wall of the refrigerator
opening (add 1" to the overall depth of the unit to
accommodate the thickness of the plug). 3) Recessed
1" into the back wall of the refrigerator opening.
• Door is reversible in field.
• Shipping weight: 100 pounds.
• U.L. Listed.
• You need to have the following materials for proper
installation: 1/4" OD copper tubing, shutoff valve and
5/8" ID rubber drain tube.
• Water supply : 1/4" OD copper tube (subject to local
codes). 20-100 PSI. For water connection, allow 2"
behind the unit.
• Drain : 5/8" ID rubber tube (subject to local codes)
Unit must drain into a 1 1/2" ID minimum stand pipe.
• Requires custom overlay panel, see page 2.
• 30iM-BB-O : Black cabinet, black door.
• 30iM-WW-O : White cabinet, white door.
Accessories:
• Drain pump kit: P/N 42242436.
See page 2 for additional information
www.dexpress.com DIMENSION EXPRESS Fax on Demand (925) 284-3558
• Dimensions (Actual Size) •
• NEVER reuse Data Sheets. Data Sheets are subject to change without • Call Dimension Express if you have any questions at (800) 940-2059 •
notice. Dimension Express is a FREE service bureau and is updated daily, • Always refer to a current Code at a Glance or manufacturer directory •
it makes far more sense to spend the time necessary to request new Data • Data Sheet codes change on the first of each quarter at 12:01am •
Sheets for each project, as opposed to the problems, time, costs, and risks
associated with reusing old Data Sheets.
Clear Ice Machine:
30iM-BB-O and 30iM-WW-O
• Product Model Number (s): •
Subject to change without notice. This system is designed to
be updated daily if necessary. Dimension Express is not
responsible for use of superseded, voided, or outdated data
sheets. Because of the difficulty or impracticability of deter-
mining actual damages, liability of Dimension Express shall
not exceed $50.00.
Copyright © Dimension Express, 2007.
This Data Sheet Includes Information On
BN • A337B326 • • 070612 • 114413 • 97534
• Additional Information •
337
Marvel