
IM702-3 7
Installation
The MicroTech II LonWorks Communications Module can be installed in the field or it can be installed in the factory. The
module mounts on connector pins and is held in place with four plastic locking standoffs. A cable harness connects the
MicroTech II LonWorks Communications Module to field wiring terminals and the LonWorks network at a terminal block
in the unit cabinet assembly.
Mounting
The MicroTech II LonWorks Communications Module can be purchased by itself or as a kit. The kit includes a wire
harness and this Installation Manual. See Replacement Parts for detailed descriptions and part numbers.
Mounting a New MicroTech II LonWorks Communications Module
To mount a new MicroTech II LonWorks Communications Module
1. Remove power from the Main Control Board.
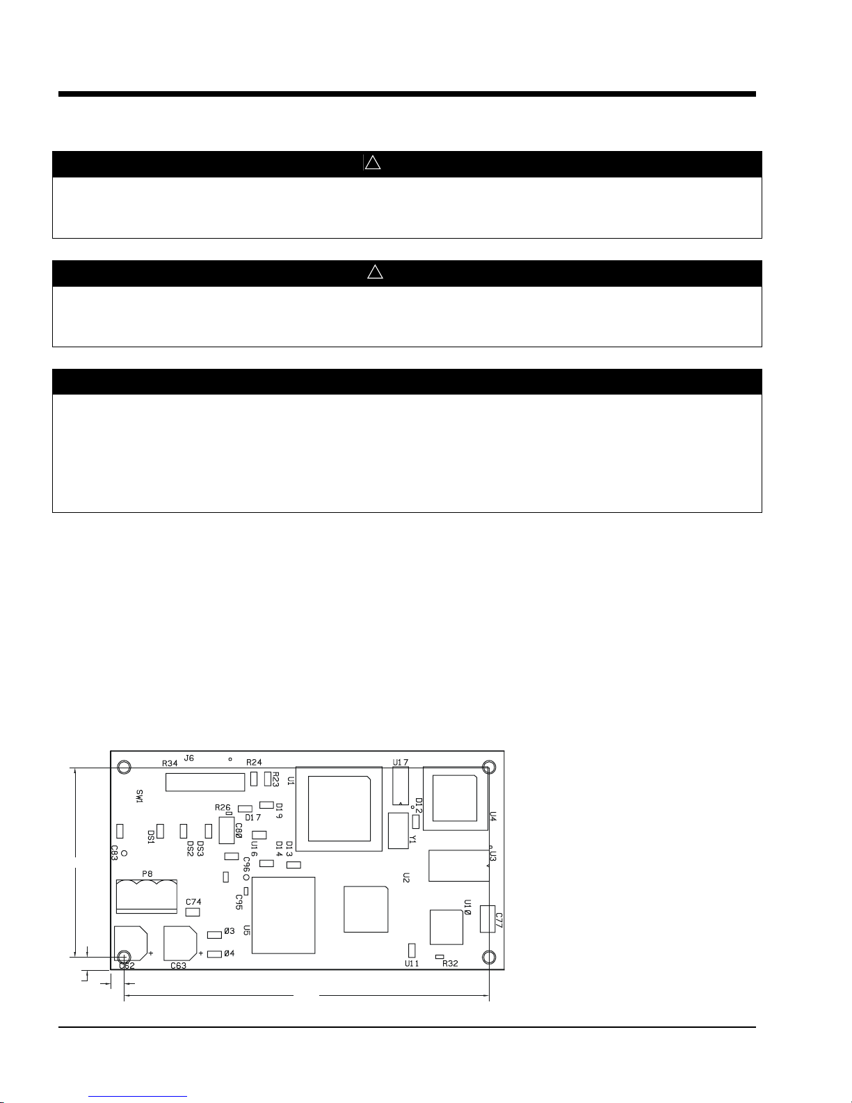
2. Remove the plug-in connector terminal block in P8. See Figure 3.
3. Locate the blank connector and four standoffs for the MicroTech II LonWorks Communications Module on the Main
Control Board. See Figure 4.
4. Orient the printed circuit board so that the side with the components faces out and connector pins can penetrate the
connector on the board.
5. Push the board onto the connector pins and standoffs until you hear the faint click of the locking standoffs securing the
board in place.
6. For Applied Rooftop units, connect the MicroTech II LonWorks Communications Module to the network with wire
harness. See Figure 7.
a. Connect the cable harness white/blue wire (No. 522) to the A terminal of the P8 connector and connect the blue wire
(No. 523) to the B terminal of the P8 connector. No wire is connected to the remaining terminal of P8.
b. Route the cable harness down to the shelf below the controller and to the left along the shelf to the edge. Route the
cable through a hole down the raceway to Terminal Block TB2.
c. Connect the cable harness white/blue wire (No. 522) to terminal 128 of TB2 and connect the blue wire (No. 523) to
terminal 129 of TB2.
7. For Self-Contained units, connect the MicroTech II LonWorks Communications Module to the network with wire
harness. See Figure 8.
a. Connect the cable harness white/blue wire (No. 522) to the + terminal of the P8 connector and connect the blue wire
(No. 523) to the - terminal of the P8 connector. No wire is connected to the remaining terminal of P8.
b. Route the cable harness over to your right along the main control board and up to Terminal Block TB 2
c. Connect the cable harness white/blue wire (No. 522) to terminal 128 of TB2 and connect the blue wire (No. 523) to
terminal 129 of TB2.
8. Connect the network cable to TB 2 terminals 128 and 129.
Replacing a MicroTech II LonWorks Communications Module
To replace a MicroTech II LonWorks Communications Module
1. Remove power from the Main Control Board.
2. Remove the connector in P8. See Figure 3.
3. Locate the four standoffs for the MicroTech II LonWorks Communications Module on the Main Control Board.
4. Use a pliers or screwdriver to depress the barb on one standoff and gently pull the corner of the board over the barb. Be
careful to not bend the board or misalign the connector pins.
5. Proceed to the other three corners and pull the board over the standoffs.
6. Gently lift the MicroTech II LonWorks Communications Module from the MCB.
7. Locate the blank connector and four standoffs for the MicroTech II LonWorks Communications Module on the Main
Control Board. See Figure 4.
8. Orient the board so that the side with the components faces out and connector pins can penetrate the connector on the
board.