07
Cliprail Zone Pack
06 Cliprail Zone Pack
6.0 Risk Assessment for Screed Application
General
Construction sites have a number of general risks associated
with them and these should be detailed in the main contractors
site Health and Safety policy or Risk Assessment. Any special
risks with a particular site should highlighted.
The use of hard hats, high visibility jackets and safety boots is
normal practice for all installation operatives. Where necessary,
ear protection and goggles will be worn during the use of
certain items of plant and equipment.
Installation of MYSON FLOORTEC underfloor heating systems
do not significantly add to these risks and normally applied
safety actions by other contractors on site should be satisfactory.
Underfloor Heating Installation
The following is a detailed examination of each stage of the
installation of MYSON underfloor heating. MYSON underfloor
heating method statements are used as a reference (copies
available from MYSON). Risks associated with each stage of the
installation are detailed and the appropriate actions to limit any
risk are given.
Fitting of Control System
The manifold is made up and then fixed to a wall or temporary
structure using wall plugs and screws.
Tools: Power drill/cordless power drill, screw driver,
spanners/pipe wrench
Risk: With power tools there is always the risk of ‘flying
chips’. Due to the exposed nature of some sites and the
presence of other trades there is an increased risk of
electrocution from trailing cables and the like.
Action: Safety glasses are to be worn whilst drilling issued
under PPE. See electrical section for use of electrical
equipment.
Fitting Pipe to Control System
Pipework is cut and fitted to the manifold using a mechanical joint.
Tools: Pipe cutters.
Risk: No significant risk.
Laying of Pipe
Pipe is decoiled and fixed to the insulation by means of a
plastic clip.
Risk: Pipe coils are heavy and must be considered under
manual handling. Coils are available in 120m and 240m
lengths. Both the 120m and 240m can be utilised without
mechanical assistance.
No other significant risks.
Action: Operatives should be trained in manual handling.
Filling and Pressure Testing
Hydraulic Pressure Test to be Used on Site
The underfloor heating system should be filled with mains
potable water. A suitable hydraulic pressure pump may be
required.
Tools: Hydraulic pressure pump, Spanners/Pipe wrench.
Risk: Use of hydraulic pressure tests has a medium risk,
however the following procedure must be followed:
(i) Ensure the area to be tested is cordoned off and that
no other site personnel are able to readily access the
area signage to be erected.
(ii) Whilst filling the system check for leaks.
(iii) Gradually raise the pressure to a maximum 3bar.
Check for leaks at all joints and mechanical fittings.
(iv) Re-check that all other site personnel are kept clear of
the test area.
(v) Leave pressurised for 2 hours to check for leaks. There
may be a small drop in pressure initially due to the pipe
work relaxing/temperature
(vi) After 2 hours the pressure should be released to 1 bar
gauge, which should be held during concreting.
COSHH Assessment
The installation of MYSON underfloor heating does not involve
the use of any substances as defined by the ‘Control of
Substances Hazardous to Health’ regulations.
4.1 Zone Value 5.0 Post Screeding
The slab must be allowed to cure for a minimum of 21 days
before the heating system can be turned on. Following this
period the heating system should be allowed to reach
operating temperature by increasing the temperature 3ºC per
day from a commencing temperature of 30ºC until the final
operating temperature is reached. Failure to observe these
instructions could result in damage to the screed.
Floor Coverings
Underfloor heating doesn’t dictate to you in any way. It can be
used with almost any kind of flooring or floor covering.
There are four basic floor finish types which should be
considered: ceramic tiles, vinyl, timber and carpets. Ceramic
finished has the least thermal resistance with carpets having the
greatest.
Ceramic & Vinyl: Ceramic, plastic or vinyl flooring, have a low
thermal resistance, and will function very well with MYSON
underfloor heating systems.
Timber: Timber flooring is compatible with MYSON underfloor
heating systems however you must ensure that it is stored in
the room in which it is to be laid 2 weeks prior to installation.
Carpets: Carpets are generally compatible with MYSON
underfloor heating systems however heavy carpets with felt
underlay should be avoided as this may reduce the heat output
in the floor.
5.0
6.0 4.0
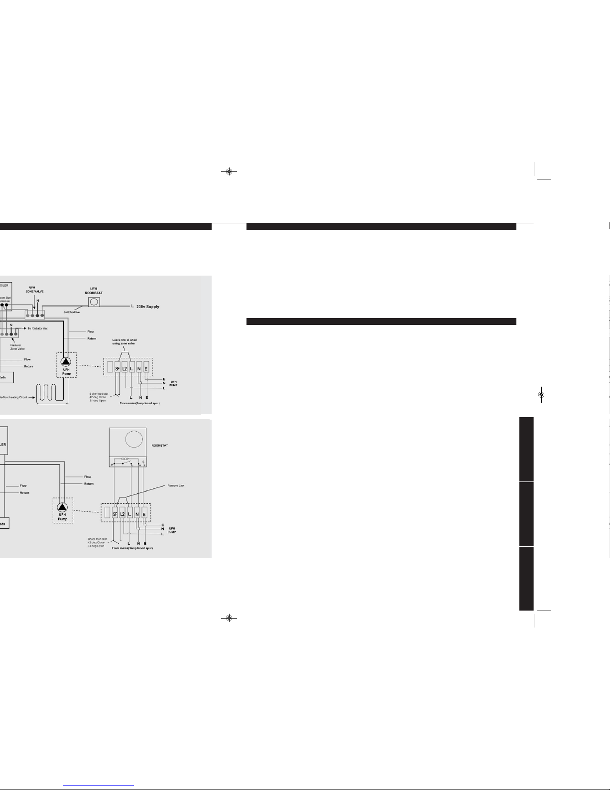
All wiring should be undertaken by a qualified installer and
conform to IEE regulations. To comply with IEE regulations the
pump on the unit is provided with an earth connection via the
connection box. A fused spur should be provided adjacent to
the unit. The mains cable should be connected to the spur and
fused at 3 amps.
If fitting a room thermostat, fix in a position on the wall as
recommended in the manufacturer’s instructions. If a room
thermostat is fitted, remove the link between the terminals as
indicated on the wiring diagram.
Please note this will not provide independent time and
temperature control. We would always advise where
possible independent control should be achieved by means
of a zone valve.
With Zone Value
Without Zone Value