PA FL7 Bedienungsanleitung

Last update: 03/07/09
1
FL7
–
Electric signal flow switch usable also for intake.
Technical manual:
E 823-04
Electro-mechanical device in which the fluid passage moves a magnetized piston that opens an
electric circuit.
DN 10
TECHNICAL SPECIFICATIONS
Rated voltage: 12 ÷ 230 V AC/DC Max commutable power : 60VA
Cable length: 1250 mm Electric wire: 2 x 0,50mm
2
Ambient temp: 75°C Type of action: 1C
Max current: 3 A
Electrical component life: from 100.000 to 1.000.000 commutations at max power.
Pollution situation of the device control: High
PART
NUMBER RATED
PRESSURE
bar - MPa
PERMISSIBLE
PRESSURE
bar - MPa
(1)
MAX FLOW RATE
IN PUMP
DELIVERY
l/min
MIN FLOW
RATE
INTERVENT.
VERTICAL
l/min
MIN FLOW
RATE
INTERVENT.
HORIZONTAL.
l/min
(2) MAX
TEMP FLUID
°C
Weight
g
28.0400.10 350 - 35 390 - 39 30 (60) 9 6 80 430
28.0400.38 350 - 35 390 - 39 30 (60) 4 3 80 430
28.0450.00 500 - 50 560 – 56 30 (60) 9 6 80 430
(1)
Max flow rate allowed for use in pump intake: 30 l/min
(2)
Max flow rate allowed for use in pump delivery: 60 l/min
(3)
This product has been designed for a continuous use at a water temperature of 50°C.
It can resist for short periods at a maximum temperature of 80°C.
n. 12.9803.04
Instruction manual, maintenance, installation, spare parts.
For a correct utilization follow the directions of this manual.
Re-print them on the use and maintenance booklet of the machine.
•
28.0400.10 G3/8 FF 350 bar - 35 MPa - BLACK
•
28.0400.10 G3/8 FF 350 bar - 35 MPa - BLACK
•
28.0450.00 G3/8 FF 500 bar - 50 MPa - INOX BLUE
-Reed switch with high resistance.
-Electrical insulation: class IP55.
-Reduced dimensions both axial and lateral.
-Magnetic drive obtained by the plunging piston
movement.
-Magnet covered by plastic casing to minimize
the braking e ect o metal particles and scale.
-Wire or earth.

Last update: 03/07/09
2
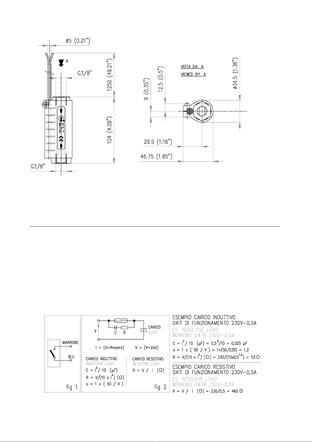
DIMENSIONAL DRAWING
INSTRUCTIONS
SELECTION
This product is to be utilized with clean fresh water, even slightly additivated with normal detergents. For use involving
different or corrosive liquids, contact the PA Technical department.
Choose the flowswitch in line with the data of nominal running (system rated pressure, max flow and max temperature).
In any case, the pressure of the machine should not exceed the permissible pressure rate imprinted on the body.
Check the real value of voltage and current of the system: they should be kept within the max indicated value.
INSTALLATION
ATTENTION: This accessory can be installed horizontal or vertical but with the flow entrance on the lower side.
Connection to the Hydraulic system.
Use correct fittings in line with the dimensions and performance of the valve. Avoid restrictions on the passage diame-
ters that might cause malfunctions, pressure reduction and wearing. This accessory, on a system that produces hot wa-
ter, must be fitted in front of the generator.
This product is to be installed on a finished machine.
Electric installation
For the connection of the electric installation, see fig.1
Electrical installation is to be carried out by qualified personnel.
CAUTION!! - The electric device must be mounted on an earthed hydraulic system.

Last update: 03/07/09
3
ELECTRIC LIFETIME OF THE CONTACT
The electric circuit, contained in the probe, consists of a reed switch that can function up to 1 million operations. Current
or voltage in excess, superior to the allowed limits, damage considerably the contacts reducing the electric lifetime (pit-
ting; sticking). To prevent these phenomena, it is necessary to evaluate with attention the transient ratings in which the
take off current might be 10/12 times the rating current.
The interruption of inductive loads can make the circuit reach different power readings (ddp) in the order of thousands of
volts. Therefore, take care in these situations of overload and excess voltage which are created during starting, circuit
closure and stoppage and circuit aperture. In order to prevent these distorsions it is necessary to foresee adeguate pro-
tections for the system. There are many circuits to choose from and one of the most common with effective remedy is
seen on fig.2
OPERATIONS
In order to prevent malfunctions, the flow switch must not be set near heat or magnetic sources. Do not store or handle
on full metal structures nor test the magnetic strength of the piston on magnetic material. It is advisable to properly
clean the system before operation in order to expell possible residual metal. The electric probe is stamped at the end of
the exit cable, indicating the setting in relation to the brass body and allows a correct assembly of the “reed” bulb. In
case of intervention or repair, follow this indication: wrong positioning could damage the probe.
PROBLEMS AND SOLUTIONS
PROBLEMS PROBABLE CAUSES SOLUTIONS
The Piston does not move - Insufficient flow
- Faulty assembly
- Piston jammed by scale and metal shavings
- Check leaks in the circuit
- Re-assemble, observing the flow direction
- Check, clean and or replace
Electric signal missing - Damaged “reed” electric contacts
- Electric connection incorrect or disconnected
- Un-phased probe or displaced
- Replace electric probe
- Provide eventual circuit protection
- Check and or repair
- Renew
REGULATIONS
:
see norm manual
The accessory hereby described bears the CE marking in accordance with the Norms and Directives applied on the
Declaration of Conformity.
For a correct utilization, follow the directions described in this manual and re-print them on the Use and maintenance
manual of the machine
Make sure that you are given the Original Conformity Declaration for the accessory chosen. The present manual is
valid for all Flowswitches named FL7
SPARES
Use only original PA spares, in order to benefit for a correct function and long reliability.
MAINTENANCE
Maintenance has to be carried out by Specialized Technicians.
Every 400 working hours (circa 10,000 cycles) check the magnetic pin (pos 3) and clean.
For a correct assembly, follow the phases indicated on the exploded view referred.
The Manufacturer is not to be considered responsable for damage as a result from incorrect fitting and mainte-
nance.
Technical data, descriptions and illustrations are indicative and liable to modification without notice.

Last updated 11/07/2009
28.0400.10 FL7 Flow switch 3/8FF Bsp 28.0400.38 FL7 Flow switch 3/8FF Bsp, 4 l/min
Pos. P/N Description Q.ty K1K2K3K4 Pos. P/N Description Q.ty K1K2K3K4
1 28.0518.23 Feeler, 3A +1250 mm cable 1 5
2 28.0404.31 Fl/sw. coupl., M22x1,5M-3/8F Bsp brass 1 3
3 10.3066.01 O-ring, 1,78x15,6 mm Ni 85 1 10
4 28.0406.51 Spring, 0,4x8,4x33 mm Sst. 1 5
5 28.0410.23 Magnet holder, brass 1 5
5 28.0418.23 Magnet holder, brass (1) 1 5
6 28.0408.84 Flow switch housing, PA 1 5
7 28.0401.31 Fl/sw. housing, M22x1,5F-3/8F Bsp brass 1 3
8 16.3021.18 S/tapping screw, DIN7981 2,5x16 mm 1 10
(1) 28.0400.38

Last updated 11/07/2009
28.0450.00 FL7 inox Flow switch 3/8Bsp FF-50MPa
Pos. P/N Description Q.ty K1K2K3K4 Pos. P/N Description Q.ty K1K2K3K4
1 28.0518.23 Feeler, 3A +1250 mm cable 1 5
2 28.0456.51 Sst plug M22-3/8 F Bsp 1 3
3 10.3066.01 O-ring, 1,78x15,6 mm Ni 85 1 10
4 28.0406.51 Spring, 0,4x8,4x33 mm Sst. 1 5
5 28.0453.23 Sst. magnet holder 1 5
6 28.0452.84 Flow switch housing, blue 1 5
7 28.0451.51 Fl/sw. housing, M22x1,5F-3/8F Bsp sst 1 3
8 16.3021.18 S/tapping screw, DIN7981 2,5x16 mm 1 10
Dieses Handbuch passt für folgende Modelle
2
Inhaltsverzeichnis
Andere PA Schalten Handbücher


















