Primex SP6R Bedienungsanleitung

DIGITAL DISPLAY WITH BARGRAPH
6 RELAY OUTPUTS
OUTPUT STATUS LED
4-20mA INPUT
User Manual
SP6R
CONTROLLER
Ashland, OH 800-363-5842
Clearwater, FL 800-349-1905
Detroit Lakes, MN 888-342-5753
Milford, OH 513-831-9959
WWW.PRIMEXCONTROLS.COM

TABLE OF CONTENTS
REVISION B • Firmware Revision B2.01
Specifications ............................................................................................................................. 2
Introduction................................................................................................................................. 3
Warnings .................................................................................................................................... 4
Installation & Dimension Data .................................................................................................5-7
Electrical Connections................................................................................................................ 8
Function Keys / Displays............................................................................................................ 9
Setting Up Levels and Simulation ....................................................................................... 10-11
Configuration ....................................................................................................................... 12-13
Configuration Mode Parameters .............................................................................................. 14
Run Mode Parameters ............................................................................................................. 15
Notes ........................................................................................................................................ 16
PRIMEX™ SP6R Level Controller User Manual
WWW.PRIMEXCONTROLS.COM

SPECIFICATIONS
INPUT TYPE
4-20 mA signal.
INPUT IMPEDANCE
100 ohms.
INPUT RESOLUTION
12 - bits, 0.1% of full scale.
SAMPLING CYCLE TIME
100 mS.
AVERAGING
8 consecutive samples.
ACCURACY
0.5% of full scale.
EXCITATION VOLTAGE
24 VDC, 30 mA available for loop powered transducers.
RELAY OUTPUTS
Six programmable relay outputs with LED indication. “Form C” (SPDT) contacts: rated at 10A at 240 VAC.
LEVEL DISPLAY
Eight character alpha-numeric LED for process value and program parameters. The display is avionics
grade and is sharp and clear, even in direct sunlight from 10 feet away.
POWER
24 VDC (+/- 10%). 200 mA nominal, 400 mA max.
OPERATING TEMPERATURE
-15oC to 70oC (0oF to 150oF) at up to 0-90% RH non-condensing.
ENCLOSURE RATING
Front Panel: IEC Standard IP54 (with additional gasket) for indoor use.
Rear Case: IEC Standard IP20.
BAR GRAPH
20 segment bar graph display for process value. Each bar represents 5% of full scale.
PRIMEX™ 2 SP6R Level Controller User Manual

The SP6R level controller is a simple, easy-to-use microprocessor-based controller which monitors any
4-20 mA signal. It has six programmable relay outputs that can be used for control and alarm. The trans-
ducer input zero and span are fully configurable. A simulation mode allows the user to test the set-points
and relay operation.
SP6R LEVEL CONTROLLER INTRODUCTION
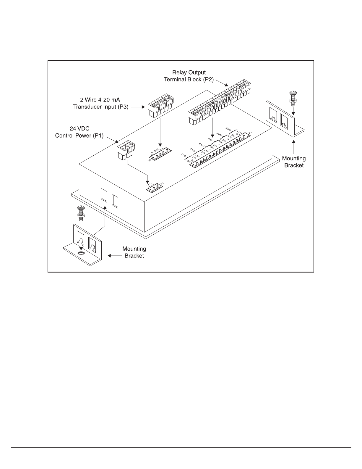
The standard SP6R level controller contains (see Figure 2 on page 5 of this manual):
• one SP6R level controller
• two mounting brackets for panel mounting
• a three pin power supply connector block (P1)
• a five pin transducer connector block (P2)
• a 18 pin relay output connector block (P3)
The SP6R-N4X version includes a controller mounted within a NEMA 4X enclosure with a pre-wired power
supply and terminal blocks.
PRIMEX™ 3 SP6R Level Controller User Manual

WARNINGS
Failure to read and understand the information provided in this manual may result in personal injury or
death, damage to the product or product failure. Please read each section in its entirety and be sure you
understand the information provided in the section and related sections before attempting any of the proce-
dures or operations given.
Failure to follow these precautions could result in serious injury or death. Keep these instructions with
warranty after installation. This product must be installed in accordance with National Electrical Code,
ANSI/NFPA 70 so as to prevent moisture from entering or accumulating within the controller housing.
See additional specifications on page 14 of this manual.
ELECTRICAL SHOCK HAZARD
Disconnect power before installing or servicing this product.
A qualified service person must install and service this product according to applicable
electrical codes.
EXPLOSION OR FIRE HAZARD
Do not use this product with flammable liquids. Do not install in hazardous locations
as defined by National Electrical Code,
ANSI/NFPA 70.
• Do not install in area with: excessive or conductive dust, corrosive or flammable gas, moisture
or rain, excessive heat, regular impact shocks or excessive vibration.
• Do not place in water or let water leak onto the controller.
• Do not allow debris to fall inside the unit during installation.
• Double-check all the wiring before turning on the power supply.
• Do not touch live wires.
• Stay as far as possible from high-voltage cables and power equipment.
• Leave a minimum of 10 mm space for ventilation between the top and bottom edges of the
controller and enclosure walls.
PRIMEX™ 4 SP6R Level Controller User Manual

FIGURE 1 Dimensions and panel cut-out. Dimensions are indicative and may be subject to change
without notification.
INSTALLATION & DIMENSIONAL DATA
PRIMEX™ 5 SP6R Level Controller User Manual

PANEL CUT OUT TEMPLATE
FOR SP6R LEVEL CONTROLLER
8.6” (218 mm)
4 7/16”
(112 mm)
cut along dotted line
PRIMEX™ 6 SP6R Level Controller User Manual

FIGURE 2 Standard SP6R level controller kit.
INSTALLATION & DIMENSIONAL DATA
PRIMEX™ 7 SP6R Level Controller User Manual

ELECTRICAL CONNECTIONS
1. POWER (Terminal P1)
Connect power to terminal 1 and 2: the unit requires 24 VDC (+/- 10%).
2. TRANSDUCER (Terminal P3)
For loop powered transducers (2 wire) connect power conductor to terminal 1 and 2. If the cable is
protected with an overall shield, connect the shield to terminal (3). Terminal 4 and 5 must be con-
nected if an output follower is not required. If no valid input is present, the controller will display
SENSOR and all outputs will be de-energized.
NOTE: To avoid ground loops, the shield of the signal cable must only be grounded at one end.
3. OUTPUT RELAY CONNECTIONS
The relay outputs are rated up to 10 A (resistive) at 240 VAC, fuse protection is required individually
or as a group.
FIGURE 3 Wiring diagram, back view - with a sub-
mersible pressure transducer.
PRIMEX™ 8 SP6R Level Controller User Manual

FUNCTION KEYS / DISPLAYS
LEFT AND RIGHT ARROW KEYS
are used to navigate through the menu items. These arrow keys can also be
used to back out when in editing and simulation mode.
ENTER KEY
is used for selecting a menu item for editing. This key is also used after a
valued has been edited to store in memory.
UP AND DOWN ARROW KEYS
is used to increase or decrease the current value being edited.
NOTE: The display automatically returns to “level” after 20 seconds of
inactivity, regardless of where it was left.
Pressing once will increment the current value by one unit. Pressing and
holding will begin repeatedly incrementing after a short delay. If the opera-
tor continues to hold the key, the value continues to increment at a faster
rate.
SET POINTS
6 programmable set points
status LED. Form C
(SPDT) contacts: rated at
10A at 240 VAC.
LEVEL DISPLAY
Eight character alpha-
numeric LED for process
value display and pro-
gram parameters.
KEYPAD
Arrow keys are used
to navigate through the
configuration and used for
adjusting set points.
BAR GRAPH
20 segment bar graph
display for process value.
Each bar represents 5%
of full scale.
00000000
PRIMEX™ 9 SP6R Level Controller User Manual
Inhaltsverzeichnis
Andere Primex Controller Handbücher























