
ERMIS - 4 SLIDING GATE MOTOR UP TO 400KG
6
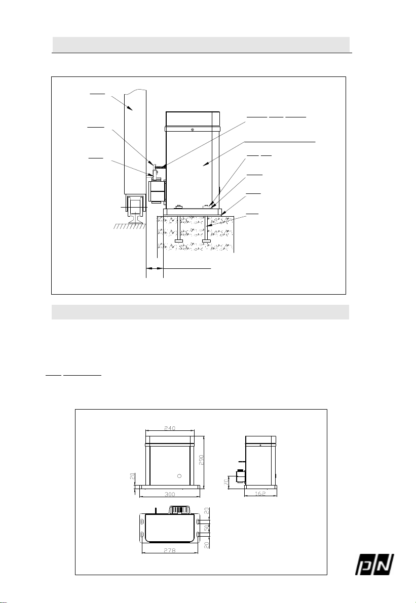
ΕΡΜΗΣ-8 ΣΥΡΟΜΕΝΟ ΜΟΤΕΡ 800 ΚΙΛΩΝ
7
Χειροκίνητη λειτουργία
Σε περίπτωση διακοπής ρεύματος, τοποθετήστε το μοτέρ σε χειροκίνητη λειτουργία.
Αφαιρέστε το πλαστικό καπάκι του μοτέρ.
Τοποθετήστε το κλειδί χειροκίνησης που βρίσκεται στην συσκευασία του μοτέρ.
Γυρίστε το κλειδί δεξιόστροφα.
Τραβήξτε το μοχλό απελευθέρωσης.
Άνοιξτε και κλείστε το μοτέρ χειροκίνητα.
Μέτα την επαναφορά του ρεύματος, κλείστε το μοχλό απελευθέρωσης, γυριστε το κλειδί
αριστερόστροφα και επαναφέρετε στην ηλεκτρική λειτουργία.
Χειροκίνηση
Spring limit switch
Install the block as shown in Fig.5. Release the gear clutch with the key and push the sliding gate
manually to pre-determine the position, screw the block to the rack and then tighten the gear clutch
with the key. Moving the gate electrically, adjust the block to the proper position until the position of
the opening and closing meet the requirement.
Manual operation
In case of power failure use manual release key to open or close gate manually, use
the release key as follow:
Fit the release key in the lock.
Turn the key 6-8 circles anticlockwise see Fig.6.
Open or close the gate manually.
Turn the key 6-8 circles clockwise to engage the gate operator.
Note: If the gate bumps the mounting post and cannot be electric opened, move the gate a
few inches by hand, thus you can release the gate with the key, open or close the gate
manually.
4. Final Check
Check the power supply, grounding and wiring before running the device.
Release the gear clutch with the release key to determine whether or not the gate can
be moved manually. If everything is in good working order, tighten the clutch with the key.
Switch on the power and run the device to ensure that the gate is sliding smoothly.
Adjust the block until the gate opened and closed properly at the limited positions.
5.Maintenance
Keep operator clean at all times.
Ensure the operator is well earthed, and correctly terminated.
Regularly grease the wheels and axles to ensure the gate moves
smoothly.