
4
ENGLISH
IMPORTANT NOTES
Before connecting and using this product, please read this instruction manual carefully
and keep it on hand for future reference. This manual is to be considered an integral part
of this product and must accompany it when it changes ownership as a reference for
correct installation and use as well as for the safety precautions.
RCF S.p.A. will not assume any responsibility for the incorrect installation and / or use of
this product.
WARNING: To prevent the risk of fire or electric shock, never expose this loudspeaker to
rain or humidity and also dust.
SAFETY AND OPERATING PRECAUTIONS
1. All the precautions, in particular the safety ones, must be read with special attention,
as they provide important information.
2. Loudspeaker lines (amplifier outputs) can have a sufficiently high voltage to involve
a risk of electrocution: never install or connect this loudspeaker when amplifiers are
switched on.
3. Make sure all connections have been made correctly and the loudspeaker input
impedance is suitable for the amplifier output.
4. Protect loudspeaker lines from damage; make sure they are positioned in a way that
they cannot be stepped on or crushed by objects.
5. Make sure that no objects or liquids can get into this product, as this may cause a
short circuit.
6. Never attempt to carry out any operations, modifications or repairs that are not
expressly described in this manual.
Contact your authorized service centre or qualified personnel should any of the
following occur:
-The loudspeaker does not function (or works in an anomalous way).
-The cable has been damaged.
-Objects or liquids are inside the loudspeaker.
-The loudspeaker has been damaged due to heavy impacts or fire.
7. Should the loudspeaker emit any strange odours or smoke, remove it from the line
after having immediately switched the amplifier off.
8. Do not connect this product to any equipment or accessories not foreseen.
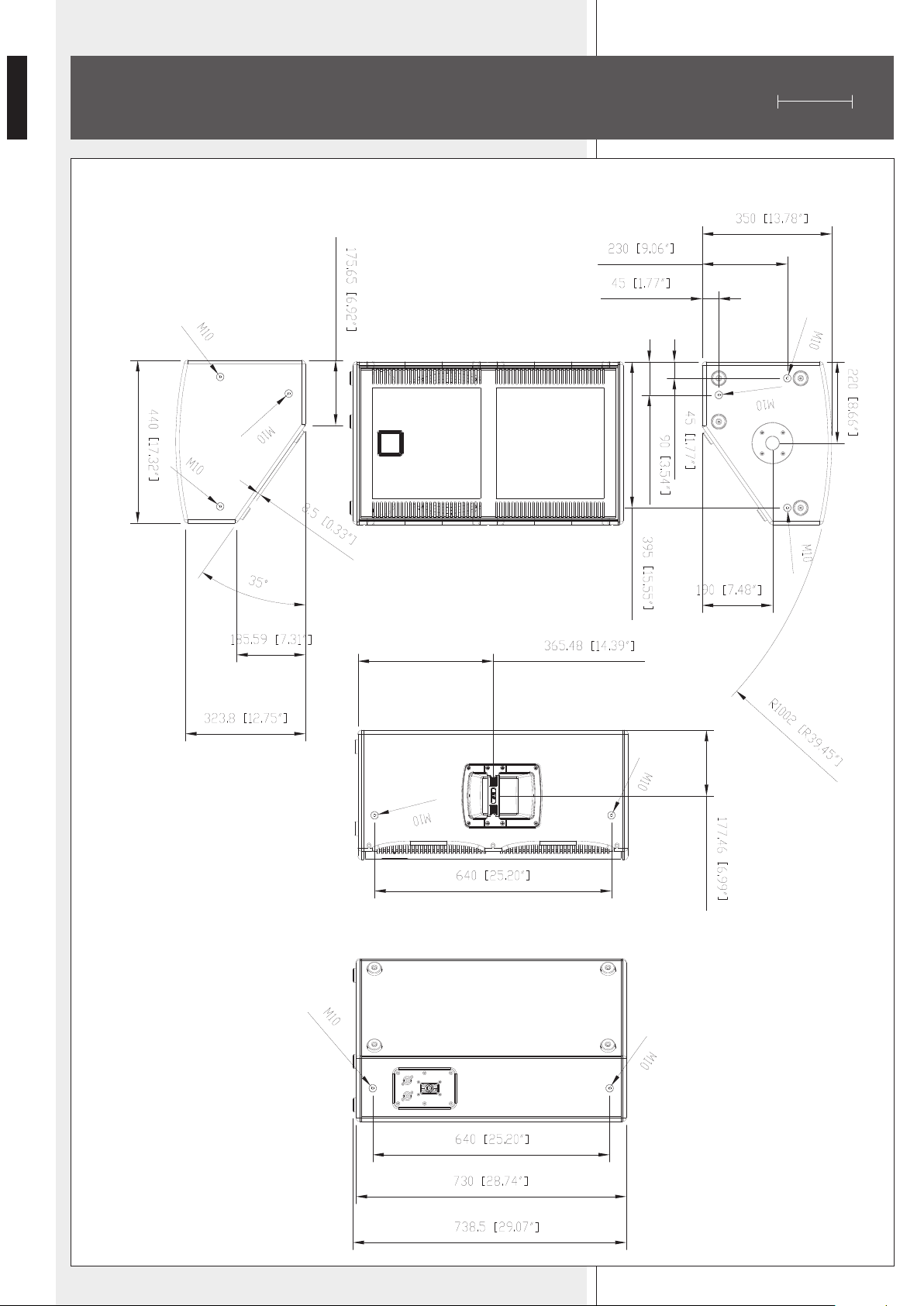
For suspended installation, only use the dedicated anchoring points and do not try to
hang this loudspeaker by using elements that are unsuitable or not specific for this
purpose.
Also check the suitability of the support surface to which the product is anchored (wall,
ceiling, structure, etc.), and the components used for attachment (screw anchors, screws,
brackets not supplied by RCF etc.), which must guarantee the security of the system /
installation over time, also considering, for example, the mechanical vibrations normally
generated by transducers.
9. RCF S.p.A. strongly recommends this product is only installed by professional qualified
installers (or specialised firms) who can ensure a correct installation and certify it
according to the regulations in force.
The entire audio system must comply with the current standards and regulations
regarding electrical systems.
IMPORTANT
SAFETY PRECAUTIONS