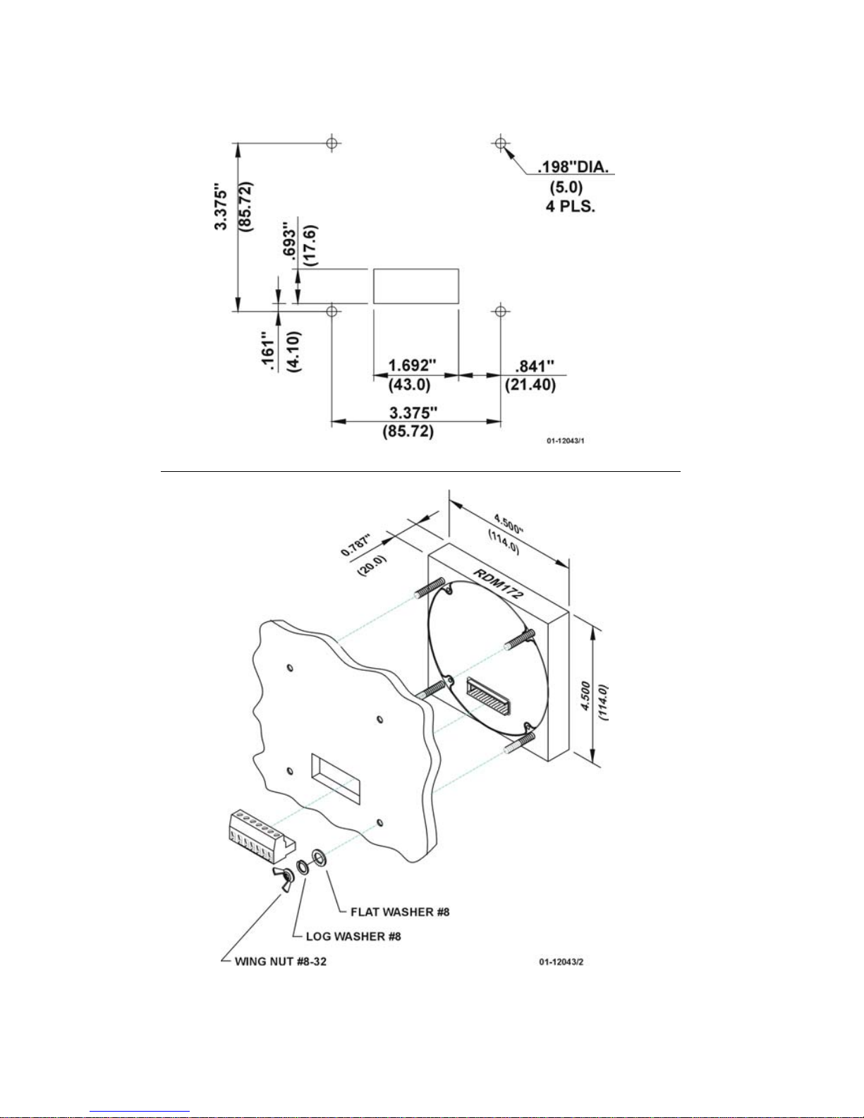
RDM172 Remote Display Module
QUICK GUIDE
The RDM172 is an optional remote display for the PM172 Powermeter.
It features a bright LED display (3 windows with 6 LEDs each), 18 LED
indicators, two communication receive/transmit LEDs, 6 control push-
buttons, and a communication port (RS-485). The RDM172 uses the
Modbus RTU transmission protocol for communication with the PM172
and acts as the Master.
The RDM172 offers approximately the same functions as the PM172
front panel, and supports both the PM172P and PM172E models without
additional adjustment. See the PM172 Installation and Operation Manual
for information on the display panel.
IMPORTANT
Please read instructions contained in this manual before
performing installation, and take note of the following precautions:
1. Ensure that the incoming DC power source is turned OFF
before performing any work on the instrument. Failure to do so
may result in serious or even fatal injury and/or equipment damage.
2. Before connecting the instrument to the power source, check
that your power supply has 12V ±15% voltage and 350mA current.
3. Under no circumstances should the instrument be connected
to a power source if it is damaged.
4. To prevent potential fire or shock hazard, do not expose the
instrument to rain or moisture.
5. Mount the instrument away from heat sources in a dirt-free
environment. Do not operate the instrument in direct sunlight.
6. Setup procedures must be performed only by qualified
personnel familiar with the instrument and its associated electrical
equipment.
7. DO NOT attempt to open the instrument under any
circumstances.
8. Although designed to operate in an electrically noisy
environment, the instrument should not be placed near very high
electric fields. In the event that the instrument is mounted in a
harsh, noisy environment with high potential for electromagnetic
impulses from heavy switch gears, motors or lightning, it is
recommended to install appropriate protective devices such as
lightening and over-voltage arresters to incoming voltage and
communication inputs.