9 Manual | Arya Kit
Assembling instruction
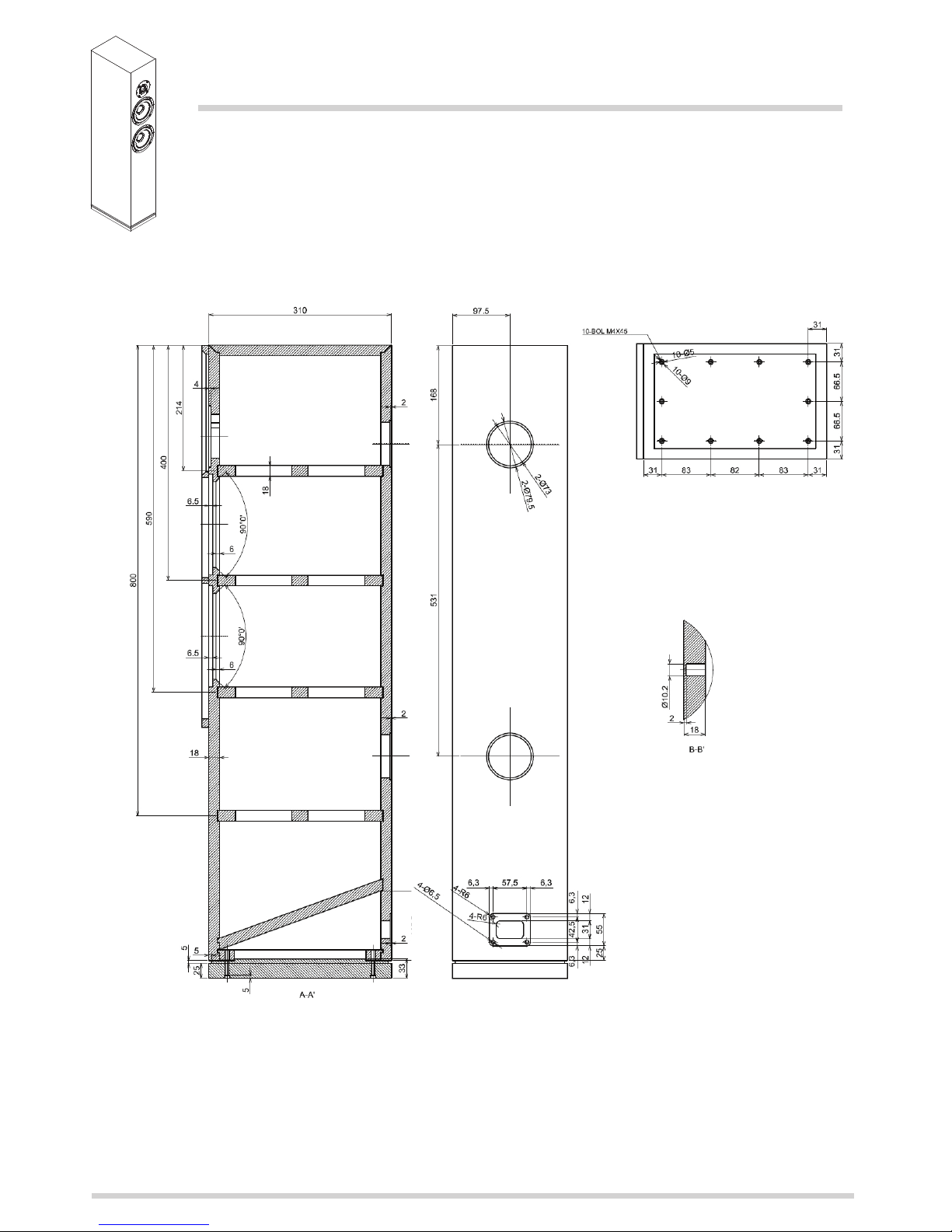
Part list (each cabinet):
- High frequency driver SB29RDC-C000-4 (sold separately).............
- Low frequency drivers 6” SB17MFC35-8 (sold separately).............
- Arya kit crossover (sold separately) ...............................................
- Hex socket screw M4 x 20mm (for drivers)....................................
- Hex socket screw M4 x 30mm (for pedestal) .................................
- Countersunk screw M4 x 20mm (for terminal plate) .....................
- Wood screw 4 x 16 mm for crossover (from kit crossover) ............
- Insert nut M4 (Installed on cabinet) ..............................................
- Stainless Terminal plate .................................................................
- Binding post .................................................................................
- Seal gasket (for terminal plate) .....................................................
- Seal gasket (for pedestal, installed on cabinet) .............................
- Port "are (installed on cabinet) .....................................................
- Port paper tube (installed on cabinet) ...........................................
- Damping .......................................................................................
- Name plate ...................................................................................
- Speaker grill ..................................................................................
Tools needed:
- Hex key 3mm size (for driver and pedestal screw)
- Hex key 2.5mm size (for terminal plate screw)
- Philips screwdriver no. 2 (for crossover screw)
- Soldering iron + tin (for soldering input wire to terminal)
- Multipurpose glue (for attaching the damping and sealing the wire hole)
1 pc
2 pcs
1 pc
12 pcs
10 pcs
4 pcs
6 pcs
26 pcs
1 pc
1 pair
1 pc
1 pc
2 pcs
2 pcs
1 pc
1pc
1 pc