
1
25R-M100
COLOR TELEVISION
Chassis No. SN-010
In the interests of user-safety (Required by safety regulations in some countries) the set should be restored to its
original condition and only parts identical to those specified should be used.
S21O525R-M100
»ELECTRICAL SPECIFICATIONS .........................................................................................................1
»IMPORTANT SERVICE SAFETY PRECAUTION .................................................................................2
»LOCATION OF USER'S CONTROL .....................................................................................................4
»INSTALLATION AND SERVICE INSTRUCTIONS................................................................................5
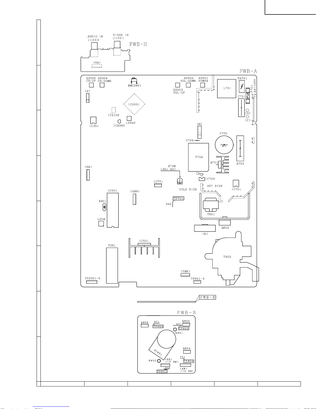
»CHASSIS LAYOUT .............................................................................................................................11
»BLOCK DIAGRAM ..............................................................................................................................12
»SCHEMATIC DIAGRAMS...................................................................................................................13
»PRINTED WIRING BOARD ASSEMBLIES ........................................................................................17
»REPLACEMENT PARTS LIST............................................................................................................22
»PACKING OF THE SET......................................................................................................................29
Page
SHARP CORPORATION
CONTENTS
SERVICE MANUAL
This document has been published to be used for after
sales service only.
The contents are subject to change without notice.
MODEL
POWER INPUT.................................................... 120 V AC 60 Hz
POWER RATING ................................................................... 95 W
PICTURE SIZE ........................................... 2,032cm2(315sq inch)
CONVERGENCE ............................................................. Magnetic
SWEEP DEFLECTION .................................................... Magnetic
FOCUS ............................................... Hi-Bi-Potential Electrostatic
INTERMEDIATE FREQUENCIES
Picture IF Carrier Frequency ..................................... 45.75 MHz
Sound IF Carrier Frequency...................................... 41.25 MHz
Color Sub-Carrier Frequency .................................... 42.17 MHz
(Nominal)
AUDIO POWER
OUTPUT RATING ................................ 1.5W (at 10% distortion)
ELECTRICAL SPECIFICATIONS
SPEAKER
SIZE ...................................................................... 8 cm (Round)
VOICE COIL IMPEDANCE ............................ 32 ohm at 400 Hz
ANTENNA INPUT IMPEDANCE
VHF/UHF.....................................................75 ohm Unbalanced
TUNING RANGES
VHF-Channels...............................................................2 thru 13
UHF-Channels ............................................................14 thru 69
CATV Channels...........................................................1 thru 125
(EIA, Channel Plan U.S.A.)
Specifications are subject to change without
prior notice.
25R-M100