
_____________________________________________________________________________________________________
Topvex SR07, SR09, SR11 E Operation and maintenance instructions
205873 Systemair AB
5
Operation
General
This manual describes the most common function/settings. For more information about other
function/settings please see the attached Corrigo E – Manual. The Corrigo E – Manual can also be
retrieved from www.regin.se in different languages.
Topvex units with Electrical heater have 3 minutes of re-cooling after having been turned off.
N.B. If the fire alarm is activated when the heater is on, the fan stops immediately without re-cooling,
this can cause the overheating protection to trip. See fig.2 where to reset the manual overheating
protection.
Maximum allowed supply air temperature is 35oC.
Set the menu language
Press the OK button while switching on the mains supply.
Press the OK button. Choose language with the UP/DOWN-buttons. Confirm the choice with the OK
button. Press the LEFT button to go back in the menus.
The language can also be changed in main menu, press “Right” arrow 3-times on the control panel.
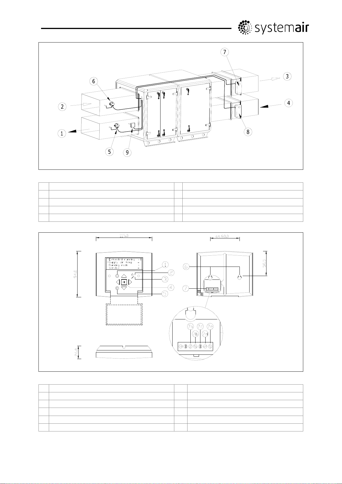
Control panel
Access rights
There are 2different logon levels, Operator level and Service level
Service levels gives read/write access in the settings and parts of the configuration menu.
Operator level permits read/write access to a limited number of settings and parameters.
Password
As default Topvex SR comes with the following password for different levels:
Operator 1111 Service 2222
How to operate
See fig 4.
The menus in the Corrigo E are organized in a horizontal tree structure. The UP/DOWN-buttons are
used to move between menus at the present menu level. The RIGHT/LEFT buttons are used to move
between menu levels. When changing parameters the UP/DOWN buttons are used to increase or
decrease the value of the parameter and the RIGHT/LEFT buttons to move between digits within the
parameter.
The OK button is used to confirm the choice of a parameter setting.
The C button is used to abort an initiated parameter change and restore the original value.
The ALARM button is used to access the alarm list.
Changing parameters
In some menus there are parameters that can be set. This will be indicated by the LED flashing.
To change a parameter, first press the OK button, the LED changes to a steady light. A cursor will
appear at the first settable value. If you wish to change the value, do so by pressing the UP/DOWN
buttons. In numbers containing several digits you can move between the digits using the
LEFT/RIGHT-buttons.
When the desired value is displayed, press OK. Settings outside the intervals are not registered.
Preset values count. If there are further settable values displayed the cursor will automatically move to
the next one. To pass a value without changing it, press RIGHT.
To abort a change and return to the initial setting, press and hold the C-button until the cursor
disappears.