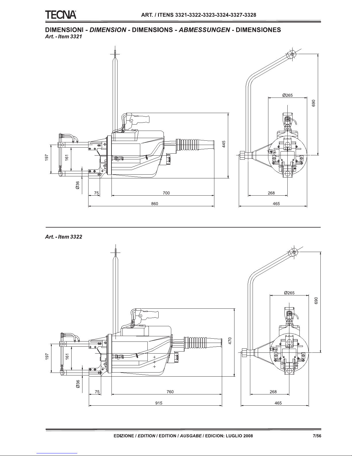
2/56
ART. / ITEMS 3321-3322-3323-3324-3327-3328
EDIZIONE / EDITION / EDITION / AUSGABE / EDICION: LUGLIO 2008 DO-
CUMENTO NUMERO: MAN0000
Dichiariamo sotto la nostra unica responsabilità che il prodotto SALDATRICE A RESISTENZA
Under our sole responsibility we declare the product RESISTANCE WELDER
Déclarons sous notre seule responsabilité que le produit SOUDEUSE PAR RESISTANCE
Declaramos, bajo nuestra exclusiva responsabilidad, que el producto
MAQUINAS DE SOLDADURA POR RESISTENCIA
Wir erklären unter unserer einziger Verantwortung, dass das Produkt PUNKTSCHWEISSZANGE
Modello - Model - Modèle - Modelo - Modell 3321 - 3322 - 3323 - 3324 - 3327 - 3328
Numero di serie - Series number - Numéro de série da/from/de/de/von 01901
Número de serie - Seriennummer a/to/a/a/bis 02000
A cui si riferisce la presente dichiarazione è conforme al seguente standard:
To which this statement refers, conforms with the following standard:
Auquel la présente déclaration se rapporte et est conforme au standard suivant: EN 50063
Al cual se refiere la presente declaración es conforme con el siguiente estándar:
Auf die sich die vorliegende Erklärung bezieht, mit den folgenden Standards übereinstimmt:
E’ conforme alle direttive comunitarie:
It conforms with community directives:
Il est conforme aux directives communautaires:
Es conforme con las directivas comunitarias:
in Übereinstimmung mit den Richtlinien und Normen der Europäischen Gemeinschaft, ist:
CASTEL S. PIETRO TERME, 02/02/2009
S.P.A.
VIA GRIECO 25/27
40024 CASTEL S. PIETRO TERME (BO)
ITALY
DICHIARAZIONE Dl CONFORMITÀ
STATEMENT OF CONFORMITY
DECLARATION DE CONFORMITE
DECLARACIÓN DE CONFORMIDAD
KONFORMITÄTSERKLÄRUNG
Ezio Amadori
Amministratore unico • Sole Administrator
Gérant • Gerente • Alleiniger Geschäftsführer
S.P.A.
VIA GRIECO 25/27
40024 CASTEL S. PIETRO TERME (BO)
ITALY
DICHIARAZIONE DEL COSTRUTTORE
MANUFACTURER DECLARATION
DECLARATION DU CONSTRUCTEUR
DECLARACIÓN DEL FABRICANTE
ERKLÄRUNG DES HERSTELLERS
Dichiariamo sotto la nostra unica responsabilità che il prodotto SALDATRICE A RESISTENZA
Under our sole responsibility we declare the product RESISTANCE WELDER
Déclarons sous notre seule responsabilité que le produit SOUDEUSE PAR RESISTANCE
Declaramos, bajo nuestra exclusiva responsabilidad, que el producto
MAQUINAS DE SOLDADURA POR RESISTENCIA
Wir erklären unter unserer einziger Verantwortung, dass das Produkt PUNKTSCHWEISSZANGE
Modello - Model - Modèle - Modelo - Modell 3321 - 3322 - 3323 - 3324 - 3327 - 3328
Numero di serie - Series number - Numéro de série da/from/de/de/von 01901
Número de serie - Seriennummer a/to/a/a/bis 02000
E’ conforme alle direttive comunitarie:
It conforms with community directives:
Il est conforme aux directives communautaires:
Es conforme con las directivas comunitarias:
in Übereinstimmung mit den Richtlinien und Normen der Europäischen Gemeinschaft, ist:
CASTEL S. PIETRO TERME, 02/02/2009
2006/95/EC
89/336/EEC
Ezio Amadori
Amministratore unico • Sole Administrator
Gérant • Gerente • Alleiniger Geschäftsführer
98/37/CE