
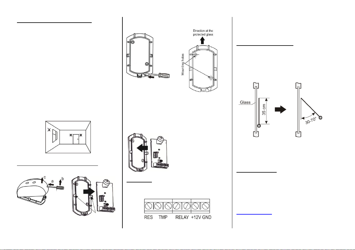
6 INSTALLATION LOCATION
1) Recommended installation height is at least
2m and at a distance not more than 6m from
the most distant spot of protected glass.
2) The detector cannot be used in premises
with high level of acoustic interference.
3) Alarm loop wires should be located far from
power cables.
To eliminate false alarm hazards
1) It is recommended close doors and vents,
switch off fans, loud-speakers and other possi-
ble sources of acoustic interference in the room
during protection period.
2) The detector's location should provide di-
rect visibility of all secured glass parts; masking
the detector with decorative curtains is not al-
lowed, as sensitivity may be lost.
Not recommended installation locations
7 INSTALLATION PROCEDURE
3) Push out blank of
wire insertion hole.
Detector base should be positioned strictly
as per figure!
4) Replace PCB and
perform wiring
(see par.8)
5) Perform AC-channel
testing (see par.9)
8WIRING
Perform wiring to detector`s terminals in
accordance with control panel operating manual.
RES –terminating resistor connection terminal;
TMP –detector tampering control terminals;
RELAY –terminals for detector connection to
alarm loop;
+12V, GND –power supply terminals.
9 AC-CHANNEL TEST
1) Install jumpers on Green, Red, Sens0,
Sens1 plugs. Remove jumper from Mem plug.
2) Close detector.
3) Power detector ON.
Apply non-destructive strike to the most distant
part of the protected glass.
3) At the detection moment the red LED should
light up for 7s and relay shouldopen (check
with control panel) or green LED should dou-
ble-flash one time.
10 WARRANTY
The operation warranty period is 5 years from the date
of operation start-up but no longer than 5 years 6
months from the date of manufacturing subject to the
requirements of Operating Manual.
*For more detailed information refer to detector
Operating Manual available for free from
www.controlex.eu.