
Installation Requirements
NOTE:
• It is most important that this appliance is installed correctly and that operation is correct before use.
Installation shall comply with local gas, health and safety requirements.
• This appliance shall be installed with sufficient ventilation to prevent the occurrence of unacceptable
concentrations of substances harmful to health.
Our Gas Fryers are designed to provide years of satisfactory service and correct installation is essential to achieve the
best performance, efficiency and trouble-free operation.
This appliance must be installed in accordance with National installation codes and in addition, in accordance with
relevant National / Local codes covering gas and fire safety.
Australia:
AS 5601/AG 601 (to be AS 5601)- Gas Installations
New Zealand:
NZS 5261 - Gas Installation.
United Kingdom:
Gas Safety (Installation and Use) Regulations 1998
BS 6173-Installation of Catering Appliances.
BS 5440-1&2 Installation Flueing & Ventilation.
Ireland:
IS 820-Non Domestic Gas Installations.
Installations must be carried out by qualified persons only. Failure to install equipment to the relevant codes and
manufacturer’s specifications shown in this section will void the warranty. Components having adjustments
protected by the manufacturer are only to be adjusted by an authorized service agent. They are not to be adjusted
by the installation person.
Unpacking
• Remove all packaging and transit protection from the appliance including all protective plastic coating from the
exterior stainless steel panels.
• Check equipment and parts for damage. Report any damage immediately to the carrier and distributor.
• Ensure that the 4 adjustable castors are fitted with the protruding centre screw.
• Report any deficiencies to the distributor who supplied the appliance.
• Check that the available gas supply is correct to that shown on the rating plate located on the right hand panel.
Location
1. Installation must allow for a sufficient flow of fresh air for the combustion air supply.
2. Installation must include adequate ventilation means, to prevent dangerous build-up of combustion products.
3. Any gas burning appliance requires adequate clearance and ventilation for optimum and trouble-free operation.
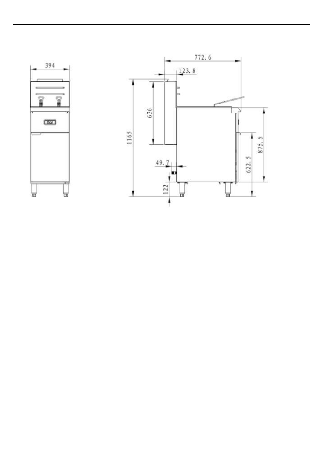
The minimum installation clearances shown below are to be adhered to.
4. Position the appliance in its approximate working position.
5. All air for burner combustion is supplied from underneath the unit. The legs must always be fitted and no
obstructions placed on the underside or around the base of the unit, as obstructions will cause incorrect
operation and / or failure of the appliance.
6. Components having adjustments protected by manufacturer are only allowed to be adjusted by an authorized
service agent. They are not to be adjusted by the installation person.
4
Installation