
MS 87/./. R 03/03 9
18
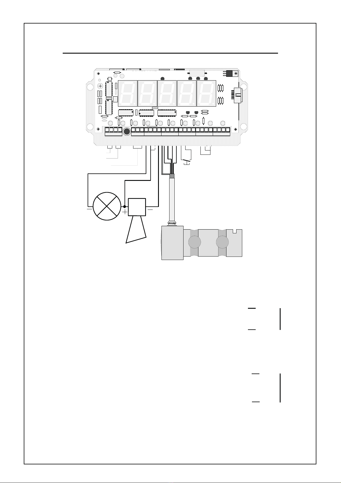
CALI
(auto) Defines the working load limit of the lifting system.
E.g. 20000 Lbs. Crane capacity. Sheaved 4/1: Cali =
20000
19
CALI
E Press E to view this parameter .
20
20000
רUse the arrows to correct the value to 20000
21
20000
E Press E to confirm.
22
CALI
×Press the UP arrows to pass the next stage.
23
StEP
(auto) Defines the incremental step of the display
24
StEP
E Press E to view this parameter .
25
25
רUse the arrows to correct the value witch should be set
as the function of the accuracy required.
26
25
E Press E to confirm.
27
StEP
×Press the UP arrows to pass the next stage.
28
POId
(auto) Calibrate the measurement scale compared to a well-
known load
29
POId
E Press E to view this parameter .
30
0
(auto) The display show the value of the load currently
suspended
31
18725
Lift an accurately known load which should represent
at least 80% to 90% of the capacity of the lifting system,
the display indicates any incorrect value.
32
18725
E Press E to correct this value
33
19975
רUse the arrows to correct the value in unit of
measurement corresponding to the load actually lifted.
Our example : 19975 Lbs.
34
19975
E Press E to confirm.
35
POId
S Press S to return to the beginning of the sequence.
36
19975
S Press S a second time to return to the normal display of
the load.
Calibration is completed.
Note : it is advised to repeat the calibration procedure 2
or 3 times during the first months of service in order to
correct any movement as a result of the "bending-in" of
the equipment.