
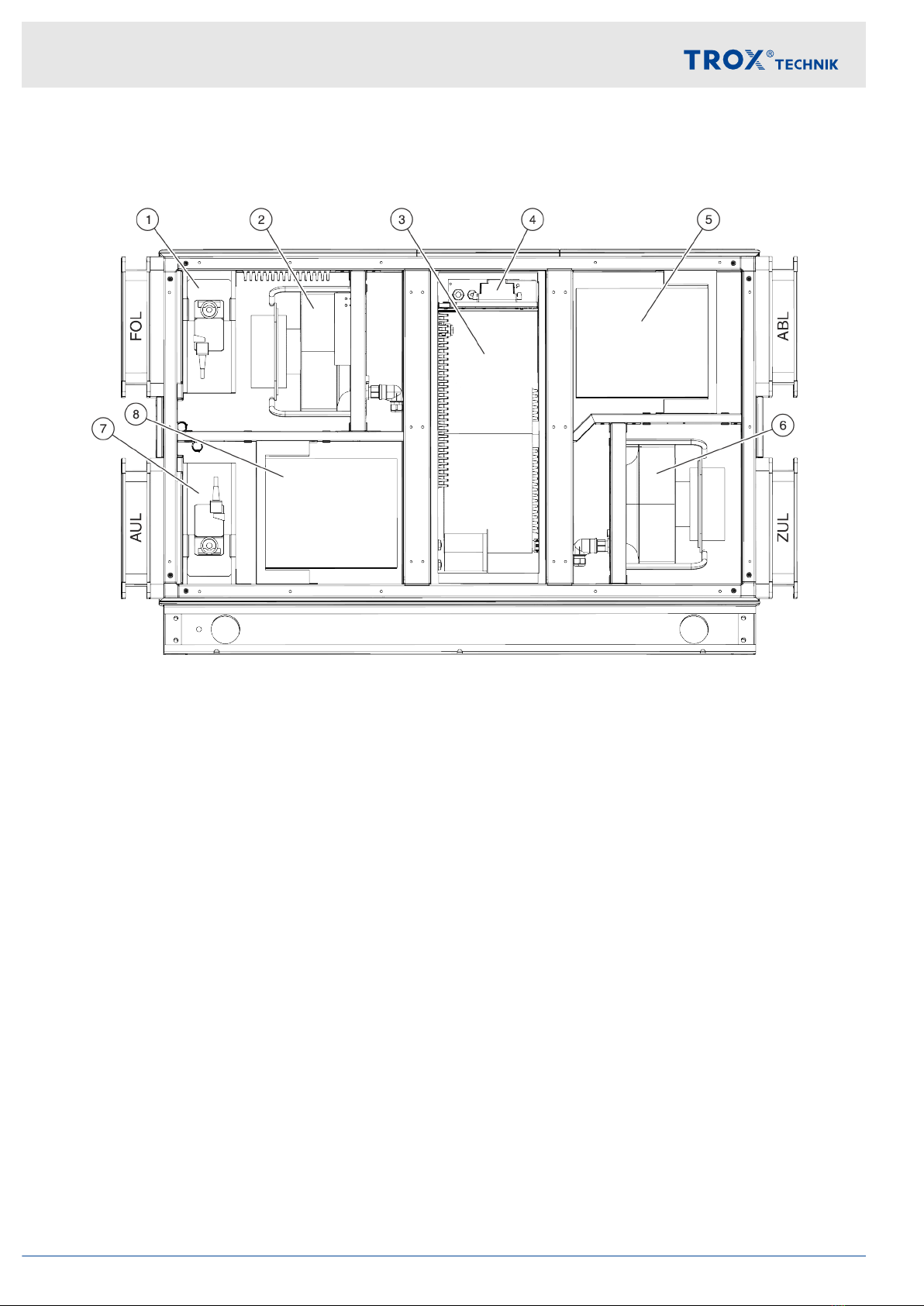
1 Overview............................................................. 6
2 Safety.................................................................. 8
2.1 System owner's responsibility..................... 8
2.2 Personnel requirements.............................. 8
2.3 Personal protective equipment.................... 9
3 Transport and storage.................................... 10
3.1 Delivering the air handling unit.................. 10
3.1.1 Type of delivery...................................... 10
3.1.2 Symbols on the packaging..................... 10
3.2 Delivery check........................................... 10
3.3 Transporting packages.............................. 11
3.3.1 Safety notes for transport....................... 11
3.3.2 Transporting packages by forklift or
pallet truck.............................................. 12
3.3.3 Transporting packages by crane............ 12
3.4 Storing packages....................................... 15
3.5 Unpacking packages................................. 15
4 Installation and assembly............................... 16
4.1 Safety notes on installation and
assembly................................................... 16
4.2 Requirements for the installation loca-
tion............................................................. 16
4.2.1 Requirements for indoor installation....... 16
4.2.2 Requirements for outdoor installation..... 17
4.3 Insulating the air handling unit from vibra-
tions........................................................... 18
4.4 Setting up and assembling air handling
unit/AHU components............................... 18
4.4.1 Setting up air handling unit/AHU compo-
nents....................................................... 18
4.4.2 Before installation................................... 19
4.4.3 Assembling AHU components................ 20
4.4.4 Installing accessories............................. 23
5 Installation........................................................ 25
5.1 Safety notes on installation....................... 25
5.2 Before installation...................................... 25
5.3 Changing operating side........................... 26
5.4 Connecting siphon to air handling unit...... 27
5.5 Connecting the heater/cooler............... 28
5.6 Connecting the air handling unit to power
supply........................................................ 29
5.7 Connecting the air handling unit to the
building...................................................... 30
5.8 Connecting I&C to on-site PC or on-site
network...................................................... 30
6 Initial commissioning...................................... 31
6.1 Safety notes for the initial commis-
sioning....................................................... 31
6.2 Before initial commissioning...................... 31
6.3 Installing AHU components....................... 32
6.3.1 Filter unit.......................................... 32
6.3.2 Heater/cooler.................................... 32
6.3.3 Multileaf dampers................................. 33
6.3.4 Rotary heat exchanger......................... 34
6.3.5 Droplet eliminator................................... 35
6.3.6 Plate heat exchanger........................... 36
6.3.7 Setting up accessories........................... 36
6.4 Switching on the air handling unit.............. 36
6.4.1 Before switching on................................ 36
6.4.2 Switching on........................................... 36
6.5 Configuring the air handling unit................ 37
6.5.1 Setting up X-CUBE controller communi-
cation...................................................... 37
6.5.2 Setting up network communication........ 38
6.6 Logging in to the web server..................... 39
7 Removal and disposal..................................... 40
7.1 Safety notes on removal and disposal...... 40
7.2 Removal.................................................... 41
7.3 Disposal..................................................... 41
8 FAQ................................................................... 42
9 Index................................................................. 45
Appendix.......................................................... 47
A Aligning storage mass.................................. 49
B Motor drive for rotary heat exchanger.......... 55
C Anti-frost heating for siphons....................... 61
D Circuit diagram tray 230 V AC-PHE............. 64
E Circuit diagram tray 230 V AC-RHE............. 78
F Circuit diagram tray 400 V AC-PHE............. 92
G Circuit diagram tray 400 V AC-RHE.......... 106
H Accessories for X-CUBE compact............. 120
Table of contents
Air handling unit X-CUBE compact 5