
GLT-299-7-17 R ev.1
Jan 24, 2022
1
ADDRESS SETTING PORT
Instruction Manual
VDOT-Mini IP Mini Input Module
Before Installation
Please read these instructions carefully and keep for future reference.
The information in this document is subject to change without notice.
For updates please refer to our website.
Note:Follow the requirements for the installation of the product in
accordance with the Specifications. Otherwise it may cause damage to
equipment.
Note:Do not install the product in any location where oil, dust, iron
powder, chemicals, or hydrogen sulphide may occur or affect the product.
It may cause damage to equipment.
This package contains the following items:
Main unit……………………………………………………………………1
Instruction Manual ………………………………………………………1
EOL Resistor (VDOT-RE-10k)………………………………………………1
Sealing label…………………………………………………………………1
General Description
VDOT-MiniIP Mini Input Module is intended for use in addressable two
wire systems. The module monitors and transmits the status (normal,
open, short, or active) of devices equipped with NC/NO dry contacts to a
control panel. The initiating device circuit (IDC) can be wired on
Class B.
General Operation
Normal standby condition: The module receives polling from the control
panel at the regular interval.
Active condition: When the external input is activated, the module
communicates to the control panel the active status.
Trouble condition: The module communicates to the control panel the
open/short status of IDC, depending on the Subtype Setting described
below.
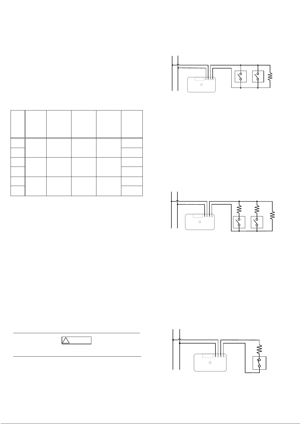
Figure 1
Compatibility Requirement
To ensure proper operation, the module shall be connected to UL listed
control panel series. Any conventional detector cannot be connected
with the module.
Before Installing
Disconnect power to the control panel before installing the module. If
the module is installed in an existing operational system, inform the
operators and local authorities that the system will be temporarily out
of service.
Mounting
Mount or place the module on the back or inside of monitored unit. Its
small size and light weight allow it to be installed without rigid
mounting.
Setting
・Address Setting
Use VDOT-AD2 Programmer for setting the address of the module prior
to installation. VDOT-MiniIP has an address given at random from
factory. Connect the Programmer with the address setting port to
change the address to any of 1-254 (dec), with reference to the
instruction manual of VDOT-AD2 Programmer. The address can be set
regardless of whether power supply from the control panel is turned on
or off. Refer to Figure 1.
72-78 MORFA, ROAD, SWANSEA, SA1 2EN
http://www.velocitydetection.com
Do not use the products outside the rated power supply voltage range
specified in the Specifications. It may cause a fire or damage to
equipment.
CAUTION
!
Do not disassemble, repair, or modify the products. It may cause a fire or
electric shock.
CAUTION
!
Make sure to turn the power off before commencing any wiring work.
Otherwise it may cause electric shock or damage to equipment.
CAUTION
!
mm(in)